Pronájem bytu 2+kk, Prostějov, 50 m2 (ID: 2645004)

Prostějov

15 900 Kč /za měsíc Získejte výhodnou HYPOTÉKU
Exkluzivní partneři v Prostějově

Informace k bytu

Nabízíme k pronájmu nadstandardní nový byt 2+kk v OV s velkou lodžií, komorou a venkovním parkovacím stáním ve zděném bytovém domě ve vyhledávané lokalitě města Prostějov, ul. J. Sedláčka.
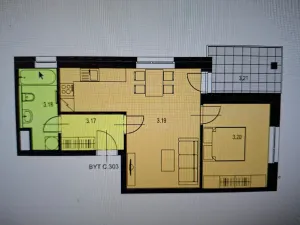
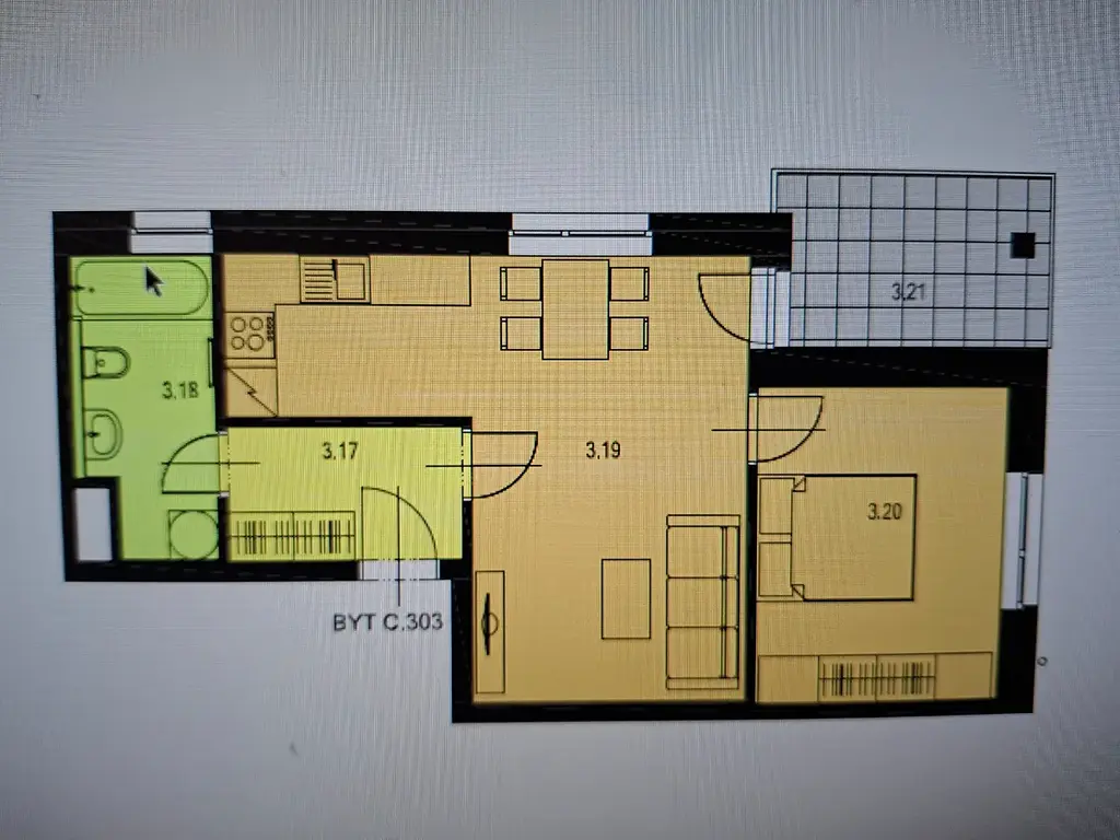
Byt s pěknou dispozicí se nachází ve 3.NP (2.patro) menšího pětipodlažního bytového domu s výtahem a má výměru 59,9 m2 vč. lodžie (6,9 m2) a komory v mezipatře (3,4 m2). Dům byl postaven a zkolaudován v roce 2023, je zděný, s výtahem a parkovacími místy před domem.
V bytě je chodba s věšákovou stěnou a botníkem, pěkná koupelna s vanou se sprchovou zástěnou, umyvadlem se skříňkou, WC, otopným žebříkem (okno, místo pro pračku), útulná ložnice s vestavěnou skříní přes celou hloubku místnosti, světlý obývací pokoj (sestava skříněk) s kuchyňským koutem - moderní kuchyňská linka z kvalitních materiálů na míru s vestavěnými spotřebiči (indukční varná deska, myčka nádobí, elektrická trouba, mikrovlnná trouba, digestoř, LED podsvícené části kuchyně, granitový keramický dřez Franke, baterie Franke). Z obývacího pokoje je přímý vstup na lodžii. Lodžie je osvětlená a je zde zásuvka.
Na podlaze plovoucí podlaha, v koupelně dlažba, plast. okna (trojsklo), plisé roletky, sítě proti hmyzu, garnýže. Vnitřní dveře v provedení lamino, vstupní dveře jsou bezpečnostní. Osvětlení.
Byt se pronajímá prázdný – pouze kuchyňská linka se spotřebiči a vestavěný nábytek v koupelně, ložnici a chodbě, sestava skříněk v obývacím pokoji a osvětlení.
Vytápění a ohřev vody – dálkové, samostatné měřiče energií. Samostatný plynový kotel pro dům. Přípojka internet optika, společná anténa. Rekuperace.
K bytu patří venkovní parkovací místo (za příplatek 1000 Kč/měsíc) a komora v mezipatře domu.
Za domem k využití klidová zóna s posezením.
Byt je světlý a působí vzdušně díky velkým oknům.
Velmi žádaná lokalita k bydlení v pěší vzdálenosti do centra města. V blízkosti bytového domu MHD. V dostupné vzdálenosti je veškeré obč.vybavení (MŠ, ZŠ, lékaři, obchody).
Volné od 1.5.2026. Měs. nájemné 15 900 Kč + zálohy na služby a energie 3 833 Kč, vratná kauce 20 000 Kč, provize RK ve výši 1 měs. nájmu bez energií.
Majitel preferuje 1-2 osoby, bez domácích mazlíčků, nekuřáky, bez zatížení exekucí či insolvencí. Dlouhodobý pronájem.
Kompletní informace o stavu nemovitosti obdržíte u makléře, veškeré uvedené údaje jsou pouze informativní. PENB A.

Parametry bytu

Cena
15 900 Kč /za měsíc
Aktualizováno
16. 4. 2026
Adresa
Prostějov
ID
9771
Stavba
Cihlová
Stav objektu
Novostavba
Patro
3. z 5
Vybaveno
Ne
Vlastnictví
Osobní
Užitná plocha
50 m2
Podlahová plocha
60 m2
Třída energetické náročnosti
A - Mimořádně úsporná
Elektřina
230V
Odpad
Veřejná kanalizace
Komunikace
Asfaltová
Telekomunikace
Internet
Doprava
Silnice, MHD
Voda
Vodovod
Topné těleso
Radiátory
Zdroj topení
Plynový kotel, Ústřední dálkové
Zdroj teplé vody
Plynový kotel, Centrální dálkový ohřev
Sklep
Lodžie
Výtah
Parkování

Kontaktovat makléře

Máte zájem o tento byt?

Tímto, v souladu s nařízením Evropského parlamentu a Rady (EU) 2016/679, v platném znění, prohlašuji, že mi je alespoň 16 let a uděluji tak svůj souhlas se zpracováním zadaných údajů (jméno, telefon, e-mail, ip adresa) společnosti B3 Technology, s.r.o., IČ: 07330600, se sídlem Novostavby 126/23, 435 11 Lom (správce dat), za účelem předání dotazu z tohoto formuláře Vámi vybranému inzerentovi a zpětného kontaktování mé osoby. Osobní údaje bude správce zpracovávat manuálně i automaticky přímo prostřednictvím svých zaměstnanců. Informace předané tímto formulářem budou uloženy v databázi správce maximálně po dobu 10 let. Odvolání souhlasu s uložením a zpracováním poskytnutých dat lze e-mailem na info@vitio.cz. V případě podezření na neoprávněné použití Vámi poskytnutých údajů máte právo předat podnět k šetření Úřadu pro ochranu osobních údajů. Více informací
Chystáte se prodat nemovitost?
Pomůžeme Vám!

Inzerát si prohlédlo 0 lidí

Prodejce

Ing. Ivana Petrlová

Ing. Ivana Petrlová

Hlídací pes

Chcete dostávat emailem podobné nabídky pronájmu bytů 2+kk v Prostějově?

Podobné nemovitosti