Prodej rodinného domu, Ostrovec - Dolní Ostrovec, 134 m2

Dolní Ostrovec

1 790 000 Kč /za nemovitost HYPOTÉKA od 8 000 Kč /za měsíc
Exkluzivní partneři v Ostrovci

Výkup a prodej starého nábytku

Informace k domu

Exkluzivně nabízíme k prodeji chalupu určenou ke 2+1 k rekonstrukci v malebné obci Dolní Ostrovec,
která leží v krásném a klidném prostředí jihočeské přírody nedaleko Písku. Obec je obklopena lesy a
loukami, ideální pro milovníky klidu, turistiky a cyklistiky. Díky zastávce Českých drah v obci je zajištěna
pohodlná dopravní dostupnost i bez vlastního automobilu.

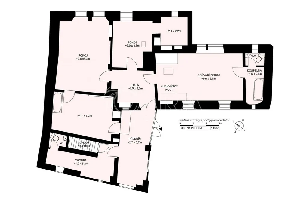
Doporučuji zhlédnutí virtuální prohlídky a plánku, umístěné v galerii.

Chalupa se nachází na pozemku o celkové výměře 1 480 m, z čehož 292 m tvoří zastavěná plocha a
nádvoří a 1 188 m přiléhající zahrada s travním porostem, kam se prochází kolem domu. Objekt nabízí tři
obytné místnosti, halu, koupelnu s vanou a WC, samostatné WC a nebytový prostor bývalou prádelnu.
Dílna se samostatným vchodem.
V domě je zavedena voda z veřejného řádu, užitková voda ve studni, odpady jsou svedeny do jímky.
Vytápění je řešeno lokálně na tuhá paliva v jednotlivých místnostech.
Ohřev vody zajišťuje bojler.

Financování Vám rádi zajistíme.

U dvou snímků byla použita vizualizace pro představu možného stavu po rekonstrukci.
Uvedené výměry jsou orientační. V případě více zájemců bude nemovitost prodána nejlepší nabídce a majitel si vyhrazuje právo vybrat kupujícího na základě jim zvolených kritérií. Veškeré zveřejněné údaje obsažené v tomto inzerátu mají pouze informativní charakter a nejsou nabídkou ve smyslu § 1731 nebo § 1732 občanského zákoníku, ani se nejedná o veřejný příslib dle § 1733 občanského zákoníku

Pro další informace a prohlídku kontaktujte makléřku zakázky Markétu Jenčíkovou.

Parametry domu

Cena
1 790 000 Kč /za nemovitost Spočítat hypotéku
Aktualizováno
13. 4. 2026
Adresa
Dolní Ostrovec
ID
18284
Stavba
Smíšená
Stav objektu
Před rekonstrukcí
Typ objektu
Přízemní
Druh objektu
Samostatný
Užitná plocha
134 m2
Zastavěná plocha
189 m2
Podlahová plocha
134 m2
Plocha pozemku
324 m2
Plocha zahrady
1188 m2
Třída energetické náročnosti
G - Mimořádně nehospodárná
Elektřina
230V, 400V
Odpad
Septik, Jímka
Voda
Vodovod, Studna
Bezbarierový přístup

Kontaktovat makléře

Máte zájem o tento dům?

Tímto, v souladu s nařízením Evropského parlamentu a Rady (EU) 2016/679, v platném znění, prohlašuji, že mi je alespoň 16 let a uděluji tak svůj souhlas se zpracováním zadaných údajů (jméno, telefon, e-mail, ip adresa) společnosti B3 Technology, s.r.o., IČ: 07330600, se sídlem Novostavby 126/23, 435 11 Lom (správce dat), za účelem předání dotazu z tohoto formuláře Vámi vybranému inzerentovi a zpětného kontaktování mé osoby. Osobní údaje bude správce zpracovávat manuálně i automaticky přímo prostřednictvím svých zaměstnanců. Informace předané tímto formulářem budou uloženy v databázi správce maximálně po dobu 10 let. Odvolání souhlasu s uložením a zpracováním poskytnutých dat lze e-mailem na info@vitio.cz. V případě podezření na neoprávněné použití Vámi poskytnutých údajů máte právo předat podnět k šetření Úřadu pro ochranu osobních údajů. Více informací
Chystáte se prodat nemovitost?
Pomůžeme Vám!

Inzerát si prohlédlo 0 lidí

Prodejce

Markéta Jenčíková

Markéta Jenčíková

Hlídací pes

Chcete dostávat emailem podobné nabídky prodeje rodinných domů v Ostrovci?

Podobné nemovitosti