Pronájem bytu 3+1, Vsetín, Mládí, 75 m2 (ID: 2639159)

Mládí, Vsetín

18 500 Kč /za měsíc Získejte výhodnou HYPOTÉKU
Exkluzivní partneři v Vsetíně

Informace k bytu

Ráda Vás provedu a představím Vám k pronájmu nezařízený byt v atraktivní lokalitě Vsetína – ulice Mládí.

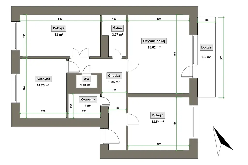
Byt o výměře cca 72m² je v osobním vlastnictví, v původním stavu a nachází se ve 2. nadzemním podlaží panelového domu s výtahem. Díky své dispozici působí velmi prostorně a vzdušně. Nabízí tři neprůchozí pokoje, kuchyni vybavenou spotřebiči s jídelnou, koupelnu s vanou, samostatné WC, šatnu v bytě a praktickou předsíň s úložnými prostory.

K bytu náleží sklepní kóje. Parkování je zajištěno na přilehlém parkovišti přímo u domu.
Výhled do zeleně a na dětské hřiště je velkou výhodou tohoto pěkného bytu.

Bytový dům je po revitalizaci. Bydlení podtrhuje umístění nedaleko centra v blízkosti je i zastávky MHD.

Měsíční nájemné činí 18.500,-Kč včetně služeb, elektrické energie, plynu. Internet není zahrnut v ceně nájmu. Majitel požaduje vratnou jistotu ve výši dvou měsíčních nájmů (2× 18.500,- Kč). Za RK výše jednoho nájmu (18.500,-Kč).

Byt je volný a připraven k okamžitému nastěhování.
Prohlídky jsou možné po předchozí domluvě s makléřkou Martinou. Ráda Vás bytem osobně provedu.

Parametry bytu

Cena
18 500 Kč /za měsíc
Náklady na bydlení
6500
Aktualizováno
12. 4. 2026
Adresa
Mládí, Vsetín
Stavba
Panelová
Stav objektu
Před rekonstrukcí
Patro
3.
Vlastnictví
Osobní
Užitná plocha
75 m2
Sklep
Lodžie

Kontaktovat makléře

Realitní kancelář

MS reality

třída Tomáše Bati 385, Zlín

Chystáte se prodat nemovitost?
Pomůžeme Vám!

Máte zájem o tento byt?

Tímto, v souladu s nařízením Evropského parlamentu a Rady (EU) 2016/679, v platném znění, prohlašuji, že mi je alespoň 16 let a uděluji tak svůj souhlas se zpracováním zadaných údajů (jméno, telefon, e-mail, ip adresa) společnosti B3 Technology, s.r.o., IČ: 07330600, se sídlem Novostavby 126/23, 435 11 Lom (správce dat), za účelem předání dotazu z tohoto formuláře Vámi vybranému inzerentovi a zpětného kontaktování mé osoby. Osobní údaje bude správce zpracovávat manuálně i automaticky přímo prostřednictvím svých zaměstnanců. Informace předané tímto formulářem budou uloženy v databázi správce maximálně po dobu 10 let. Odvolání souhlasu s uložením a zpracováním poskytnutých dat lze e-mailem na info@vitio.cz. V případě podezření na neoprávněné použití Vámi poskytnutých údajů máte právo předat podnět k šetření Úřadu pro ochranu osobních údajů. Více informací
Chystáte se prodat nemovitost?
Pomůžeme Vám!

Inzerát si prohlédlo 0 lidí

Prodejce

Martina Sušňová

Martina Sušňová

Hlídací pes

Chcete dostávat emailem podobné nabídky pronájmu bytů 3+1 v Vsetíně?

Podobné nemovitosti