Pronájem bytu 1+1, Praha - Nové Město, Truhlářská, 38 m2

Truhlářská, Praha, Nové Město

21 000 Kč /za měsíc Získejte výhodnou HYPOTÉKU
Exkluzivní partneři v Praze 1

Stěhovací služby

Výkup a prodej starého nábytku

Informace k bytu

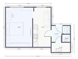
Nabízíme k pronájmu světlý a plně vybavený byt o dispozici 1+1 a celkové výměře 38 m², který se nachází v jedné z nejžádanějších lokalit v centru Prahy – ulice Truhlářská, Praha 1.

Byt je ve velmi dobrém stavu a nabízí komfortní bydlení v samotném srdci města. Je plně vybaven kvalitními spotřebiči a nábytkem – k dispozici je kuchyňská linka se spotřebiči (lednice, varná deska, trouba, digestoř, varná konvice), dále pračka, postel, gauč, televize a vestavěné skříně poskytující dostatek úložného prostoru.

Díky své dispozici je ideální jak pro jednotlivce, tak i pro pár.

Velkou výhodou je samotná lokalita – absolutní centrum Prahy, kde máte vše doslova na dosah ruky. V pěší vzdálenosti najdete restaurace, kavárny, obchody, nákupní centra, fitness centra i veškeré služby.

Dopravní dostupnost je výborná – jen pár minut chůze od domu se nachází stanice metra (linka B – Náměstí Republiky), tramvajové zastávky i autobusové spoje. Rychlé spojení do všech částí Prahy je samozřejmostí.

Občanská vybavenost je na nejvyšší úrovni – v okolí jsou školy, školky, lékárny, pošta i zdravotnická zařízení. Lokalita zároveň nabízí i kulturní vyžití, divadla, kina či historické památky.

Platební podmínky:

Nájem: 21.000 Kč
Poplatky: 1.774 Kč / osoba (+ 500 Kč druhá osoba)
Elektřina: 3.200 Kč

Kauce: 42.000 Kč
Provize: 25.410 Kč

Byt je připraven k nastěhování dle dohody.

Pronajímatel si vyhrazuje právo vybrat nájemce na základě jím zvolených kritérií.

Parametry bytu

Cena
21 000 Kč /za měsíc
Aktualizováno
11. 4. 2026
Adresa
Truhlářská, Praha, Nové Město
ID
977190
Stavba
Cihlová
Stav objektu
Velmi dobrý
Patro
1. z 5
Vybaveno
Ano
Vlastnictví
Osobní
Užitná plocha
38 m2
Podlahová plocha
38 m2
Třída energetické náročnosti
G - Mimořádně nehospodárná
Elektřina
230V
Plyn
Plynovod
Odpad
Veřejná kanalizace
Komunikace
Dlážděná
Telekomunikace
Internet
Doprava
MHD
Voda
Vodovod
Topné těleso
Radiátory
Zdroj topení
Přímotop
Výtah

Kontaktovat makléře

Máte zájem o tento byt?

Tímto, v souladu s nařízením Evropského parlamentu a Rady (EU) 2016/679, v platném znění, prohlašuji, že mi je alespoň 16 let a uděluji tak svůj souhlas se zpracováním zadaných údajů (jméno, telefon, e-mail, ip adresa) společnosti B3 Technology, s.r.o., IČ: 07330600, se sídlem Novostavby 126/23, 435 11 Lom (správce dat), za účelem předání dotazu z tohoto formuláře Vámi vybranému inzerentovi a zpětného kontaktování mé osoby. Osobní údaje bude správce zpracovávat manuálně i automaticky přímo prostřednictvím svých zaměstnanců. Informace předané tímto formulářem budou uloženy v databázi správce maximálně po dobu 10 let. Odvolání souhlasu s uložením a zpracováním poskytnutých dat lze e-mailem na info@vitio.cz. V případě podezření na neoprávněné použití Vámi poskytnutých údajů máte právo předat podnět k šetření Úřadu pro ochranu osobních údajů. Více informací
Chystáte se prodat nemovitost?
Pomůžeme Vám!

Inzerát si prohlédlo 1 lidí

Prodejce

Jonáš Drgač

Jonáš Drgač

Hlídací pes

Chcete dostávat emailem podobné nabídky pronájmu bytů 1+1 v Praze 1?

Podobné nemovitosti