Soccer reality

Pronájem bytu 2+kk, Říčany, Černokostelecká, 51 m2

Černokostelecká, Říčany, Radošovice

21 000 Kč /za měsíc Získejte výhodnou HYPOTÉKU
Exkluzivní partneři v Říčanech

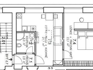
Informace k bytu

Moderní a velmi dobře dispozičně řešený byt se nachází v 2.NP rekonstruované prvorepublikové vily ve vyhledávané lokalitě Říčan. Dispozice bytu 2+kk sestává z prostorného obývacího pokoje s kuchyňským koutem a kuchyňskou linkou, ložnice, koupelny s toaletou a předsíně. V bytě je podlahové vytápění, ohřev vody zajištuje bojler.
Cena nájmu je 21.000- Kč + vyúčtovatelné zálohy na služby ( 550,- Kč/osobu ) + 350,- Kč/měsíc ( internetové připojení ) + elektřina na nájemce. Kauce 21.000,- Kč + provize RK 21.000,- Kč
Velmi dobrá dopravní dostupnost do Prahy jak autem tak i vlakem. V okolí veškerá občanská vybavenost.
Doporučujeme prohlídku.

Parametry bytu

Cena
21 000 Kč /za měsíc
Aktualizováno
10. 4. 2026
Adresa
Černokostelecká, Říčany, Radošovice
ID
0056
Stavba
Cihlová
Stav objektu
Po rekonstrukci
Patro
2. z 3
Vybaveno
Částečně
Vlastnictví
Osobní
Užitná plocha
51 m2
Třída energetické náročnosti
G - Mimořádně nehospodárná
Elektřina
230V
Odpad
Veřejná kanalizace
Komunikace
Asfaltová
Telekomunikace
Internet
Doprava
Vlak, Dálnice, Silnice, MHD, Autobus
Voda
Vodovod
Topné těleso
Podlahové vytápění

Kontaktovat makléře

Realitní kancelář

H&B reality

náměstí Přátelství 1518/2, Praha

Chystáte se prodat nemovitost?
Pomůžeme Vám!

Máte zájem o tento byt?

Tímto, v souladu s nařízením Evropského parlamentu a Rady (EU) 2016/679, v platném znění, prohlašuji, že mi je alespoň 16 let a uděluji tak svůj souhlas se zpracováním zadaných údajů (jméno, telefon, e-mail, ip adresa) společnosti B3 Technology, s.r.o., IČ: 07330600, se sídlem Novostavby 126/23, 435 11 Lom (správce dat), za účelem předání dotazu z tohoto formuláře Vámi vybranému inzerentovi a zpětného kontaktování mé osoby. Osobní údaje bude správce zpracovávat manuálně i automaticky přímo prostřednictvím svých zaměstnanců. Informace předané tímto formulářem budou uloženy v databázi správce maximálně po dobu 10 let. Odvolání souhlasu s uložením a zpracováním poskytnutých dat lze e-mailem na info@vitio.cz. V případě podezření na neoprávněné použití Vámi poskytnutých údajů máte právo předat podnět k šetření Úřadu pro ochranu osobních údajů. Více informací
Chystáte se prodat nemovitost?
Pomůžeme Vám!

Inzerát si prohlédlo 0 lidí

Prodejce

Libor Růžička

Libor Růžička

Hlídací pes

Chcete dostávat emailem podobné nabídky pronájmu bytů 2+kk v Říčanech (okr. Praha-východ)?

Podobné nemovitosti