Pronájem bytu 3+kk, Praha - Řepy, Nevanova, 71 m2

Nevanova, Praha, Řepy

27 000 Kč /za měsíc Získejte výhodnou HYPOTÉKU

(+ poplatky)

Exkluzivní partneři v Praze 6

Stěhovací služby

Výkup a prodej starého nábytku

Informace k bytu

V Pražských Řepích se vůbec nežije špatně! Zvláště, když bydlíte na okraji tohoto poměrně dobře vybaveného sídliště, v bytě s pěknými výhledy.

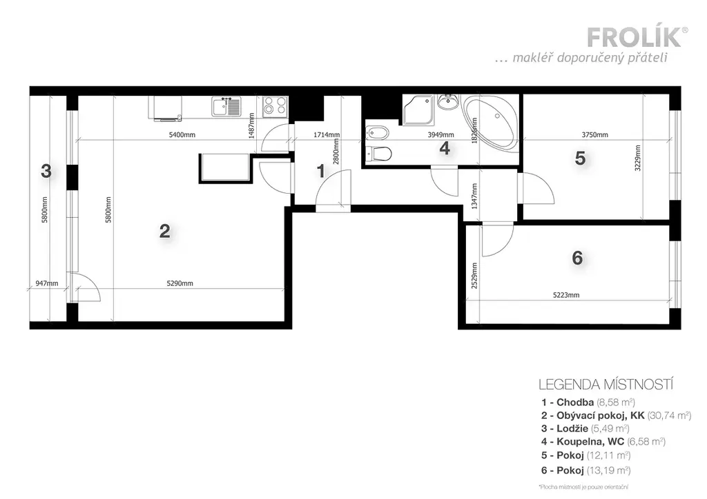
Právě takový byt na Vás čeká ve 3. patře zatepleného panelového domu s výtahem, v ulici Nevanova. Částečně zrekonstruované 3+kk o výměře cca 71 m2, s lodžií (cca 6 m2) a sklepem (cca 2 m2).

Byt má obývací pokoj s částečně otevřeným kuchyňským koutem a lodžií (obojí orientované na jih), dva pokoje (orientované na sever), centrální chodbu, velkou koupelnu s vanou, sprchou, bidetem a WC. V kuchyni bude lednice s mrazákem, myčka, el. trouba, indukční varná deska, digestoř, mikrovlnka. V jednom z pokojů zůstávají dvě šatní skříně. Vstupní dveře do bytu budou bezpečnostní.

Dům má centrální dodávku topení a teplé vody (vše s měřením), plastová okna, je zateplený. Byt je světlý, s pěknými výhledy. Sídliště Řepy nabízí slušnou občanskou vybavenost. Hned za domem jsou dvě mateřské školy, další je o kousek dál, pár kroků od domu je dětské hřiště, nedaleko pak obchodní dům. na druhé straně sídliště je sportovní centrum (bazén, wellness, tenis, víceúčelová krytá hala). Každý si tu prostě najde své.

Byt je ihned volný, připravený k dlouhodobému pronájmu.

Kromě nájemného budete platit zálohy na služby (vodné, stočné, teplá voda, topení, úklid a osvětlení domu, odpad, výtah) v částce 5.000 Kč/měs. (pro 4 osoby) + elektřinu v bytě 1.500 Kč/měs.. Majitelé Vám vše vyúčtují dle skutečných spotřeb. Nájemné + služby + elektřina se platí měsíčně předem, jistota je 2x nájemné, provize je 1x nájemné.

PENB třída B.

Parametry bytu

Cena
27 000 Kč /za měsíc
Poznámka k ceně
+ poplatky
Náklady na bydlení
5 000
Aktualizováno
10. 4. 2026
Adresa
Nevanova, Praha, Řepy
ID
RF 0582
Stavba
Panelová
Stav objektu
Po rekonstrukci
Patro
4. z 8
Vybaveno
Ne
Lokalita objektu
Sídliště
Vlastnictví
Osobní
Užitná plocha
71 m2
Podlahová plocha
76 m2
Třída energetické náročnosti
B - Velmi úsporná
Ukazatel energetické náročnosti
69.5 kWh/m2 za rok
Elektřina
230V
Odpad
Veřejná kanalizace
Komunikace
Asfaltová
Telekomunikace
Telefon, Internet, Kabelová televize
Doprava
Silnice, MHD
Voda
Vodovod
Topné těleso
Radiátory
Zdroj topení
Centrální dálkové
Sklep
Lodžie
Výtah

Kontaktovat makléře

Máte zájem o tento byt?

Tímto, v souladu s nařízením Evropského parlamentu a Rady (EU) 2016/679, v platném znění, prohlašuji, že mi je alespoň 16 let a uděluji tak svůj souhlas se zpracováním zadaných údajů (jméno, telefon, e-mail, ip adresa) společnosti B3 Technology, s.r.o., IČ: 07330600, se sídlem Novostavby 126/23, 435 11 Lom (správce dat), za účelem předání dotazu z tohoto formuláře Vámi vybranému inzerentovi a zpětného kontaktování mé osoby. Osobní údaje bude správce zpracovávat manuálně i automaticky přímo prostřednictvím svých zaměstnanců. Informace předané tímto formulářem budou uloženy v databázi správce maximálně po dobu 10 let. Odvolání souhlasu s uložením a zpracováním poskytnutých dat lze e-mailem na info@vitio.cz. V případě podezření na neoprávněné použití Vámi poskytnutých údajů máte právo předat podnět k šetření Úřadu pro ochranu osobních údajů. Více informací
Chystáte se prodat nemovitost?
Pomůžeme Vám!

Inzerát si prohlédlo 1 lidí

Prodejce

Robert Frolík

Robert Frolík

Hlídací pes

Chcete dostávat emailem podobné nabídky pronájmu bytů 3+kk v Praze 6?

Podobné nemovitosti