Pronájem bytu 3+kk, Praha - Vinohrady, Bělehradská, 106 m2

Bělehradská, Vinohrady - Praha 2

36 200 Kč /za měsíc Získejte výhodnou HYPOTÉKU

(vratná jistota, náklady na bydlení 7695 Kč, poplatek za podnájem)

Exkluzivní partneři v Praze 2

Stěhovací služby

Výkup a prodej starého nábytku

Pojištění a finance

Informace k bytu

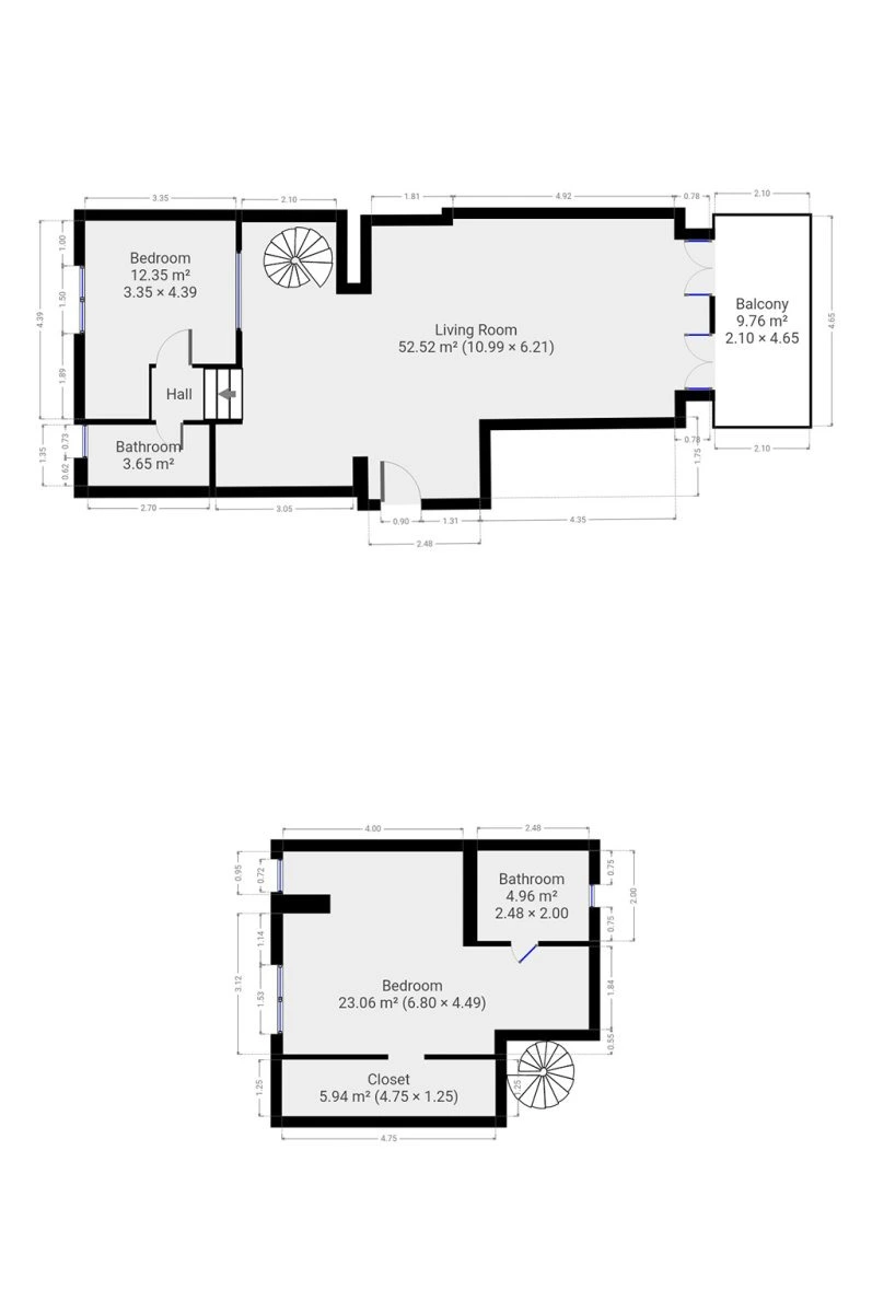
K dlouhodobému podnájmu nabízíme krásný klimatizovaný mezonetový byt o dispozici 3+kk v centru Prahy - Vinohrady. Byt o celkové výměře 106 m2 se nachází v pátém patře cihlového domu s výtahem. K bytu navíc patří krásná terasa s výhledem na Prahu - Vinohrady, plynový gril, jídelní stůl a markýza.

Byt se nabízí plně vybavený. Na chodbě je velká vestavěná skříň. Ve spodním patře se nachází kuchyň s obývací částí a ve vrchním patře 2 ložnice s koupelnami. Kuchyně disponuje elektrickou troubou, myčkou, lednicí, mikrovlnnou troubou, indukční deskou s digestoří a rychlovarnou konvicí. V obývací části pokoje můžeme nalézt obývací stěnu s televizí, rozkládací gauč, jídelní stůl se šesti židlemi a vstup na terasu.
Naproti kuchyni jsou schody, které vedou do druhého patra. Pod a za schody jsou úložné prostory. Vedle kuchyně můžeme nalézt vstup do mezipatra, kde se nachází dětský pokoj a koupelna s toaletou. V druhém patře se nachází pracovní stůl s židlí, druhá koupelna s pračkou a ložnicí. Součástí ložnice je i knihovna a prostorná šatna. Po celém bytě jsou dřevěné a laminátové podlahy a klimatizace. Na oknech jsou elektrické rolety.

Byt je volný k nastěhování od 01.05.2026.

Uvedena energetická kategorie G, jelikož nemáme k dispozici PENB.

Byt pronajímá Ideální nájemce - služba, se kterou budete bydlet bezstarostně a za férových podmínek. Když se něco přihodí, k dispozici jsou správci, kteří s vámi vše vyřeší. Pomůžeme s veškerou administrativou, s nastavením plateb a zajistíme vám speciální pojištění. Pojďte bydlet s námi!

Parametry bytu

Cena
36 200 Kč /za měsíc
Poznámka k ceně
vratná jistota, náklady na bydlení 7695 Kč, poplatek za podnájem
Aktualizováno
29. 4. 2026
Adresa
Bělehradská, Vinohrady - Praha 2
ID
N2828
Stavba
Cihlová
Stav objektu
Velmi dobrý
Patro
5. z 5
Vybaveno
Ano
Typ objektu
Patrový
Lokalita objektu
Centrum obce
Vlastnictví
Osobní
Užitná plocha
106 m2
Podlahová plocha
106 m2
Elektřina
230V
Topení
Lokální plynové
Doprava
Vlak, Dálnice, Silnice, MHD, Autobus
Terasa
Výtah

Kontaktovat makléře

Realitní kancelář

Logo Ideální nájemce

Ideální nájemce

Milady Horákové 1957/13, Brno

Chystáte se prodat nemovitost?
Pomůžeme Vám!

Máte zájem o tento byt?

Tímto, v souladu s nařízením Evropského parlamentu a Rady (EU) 2016/679, v platném znění, prohlašuji, že mi je alespoň 16 let a uděluji tak svůj souhlas se zpracováním zadaných údajů (jméno, telefon, e-mail, ip adresa) společnosti B3 Technology, s.r.o., IČ: 07330600, se sídlem Novostavby 126/23, 435 11 Lom (správce dat), za účelem předání dotazu z tohoto formuláře Vámi vybranému inzerentovi a zpětného kontaktování mé osoby. Osobní údaje bude správce zpracovávat manuálně i automaticky přímo prostřednictvím svých zaměstnanců. Informace předané tímto formulářem budou uloženy v databázi správce maximálně po dobu 10 let. Odvolání souhlasu s uložením a zpracováním poskytnutých dat lze e-mailem na info@vitio.cz. V případě podezření na neoprávněné použití Vámi poskytnutých údajů máte právo předat podnět k šetření Úřadu pro ochranu osobních údajů. Více informací
Chystáte se prodat nemovitost?
Pomůžeme Vám!
Theleadway banner

Inzerát si prohlédlo 7 lidí

Prodejce

Dana Oralová

Dana Oralová

Hlídací pes

Chcete dostávat emailem podobné nabídky pronájmu bytů 3+kk v Praze 2?

Podobné nemovitosti