Soccer reality

Pronájem bytu 1+kk, Praha, 34 m2

Praha 9

22 500 Kč /za měsíc Získejte výhodnou HYPOTÉKU

(poplatky 3.073Kč, kauce 45.000Kč)

Exkluzivní partneři v Praze 9

Stěhovací služby

Výkup a prodej starého nábytku

Informace k bytu

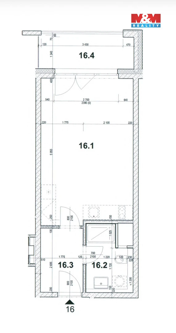
Pronájem bytu 1+kk, 34 m², Praha, ul. Bukačova

Nabízíme k pronájmu světlý byt 1+kk o velikosti 34,9 m² ve 2. NP moderní novostavby v projektu Harfa Living, Praha 9 Libeň. Součástí bytu je lodžie orientovaná do klidného vnitrobloku a sklepní kóje.
Byt disponuje novou kuchyňskou linkou Oresi se spotřebiči Beko a vestavěnou skříní v předsíni ( realizace kuchyňské linky 16.–17. 4.).
Koupelna je provedena ve vyšším standardu (Laufen, Grohe) a nabízí sprchový kout, toaletu, umyvadlo se skříňkou, vyhřívaný žebřík i přípojky na pračku a sušičku.
Byt disponuje optickým internetem (CETIN) a možností instalace venkovních rolet. K bytu náleží sklepní kóje, v domě je výtah a k dispozici je i kočárkárna.
Tramvaj Kabešova přímo u domu (rychlé spojení do centra), autobus i vlak Libeň pár minut chůze, metro Českomoravská a Vysočanská v docházkové vzdálenosti.
Byt je ideální pro jednotlivce nebo pár hledající moderní bydlení v dobře dostupné lokalitě.
Kontaktujte nás pro více informací a domluvte si prohlídku ještě dnes!

Parametry bytu

Cena
22 500 Kč /za měsíc
Poznámka k ceně
poplatky 3.073Kč, kauce 45.000Kč
Aktualizováno
5. 4. 2026
Adresa
Praha 9
ID
938608
Stavba
Panelová
Stav objektu
Velmi dobrý
Vybaveno
Částečně
Lokalita objektu
Klidná část obce
Vlastnictví
Osobní
Užitná plocha
34 m2
Lodžie

Kontaktovat makléře

Realitní kancelář

Logo M&M reality

M&M reality

ulice Krakovská 583/9, Praha

Chystáte se prodat nemovitost?
Pomůžeme Vám!

Máte zájem o tento byt?

Tímto, v souladu s nařízením Evropského parlamentu a Rady (EU) 2016/679, v platném znění, prohlašuji, že mi je alespoň 16 let a uděluji tak svůj souhlas se zpracováním zadaných údajů (jméno, telefon, e-mail, ip adresa) společnosti B3 Technology, s.r.o., IČ: 07330600, se sídlem Novostavby 126/23, 435 11 Lom (správce dat), za účelem předání dotazu z tohoto formuláře Vámi vybranému inzerentovi a zpětného kontaktování mé osoby. Osobní údaje bude správce zpracovávat manuálně i automaticky přímo prostřednictvím svých zaměstnanců. Informace předané tímto formulářem budou uloženy v databázi správce maximálně po dobu 10 let. Odvolání souhlasu s uložením a zpracováním poskytnutých dat lze e-mailem na info@vitio.cz. V případě podezření na neoprávněné použití Vámi poskytnutých údajů máte právo předat podnět k šetření Úřadu pro ochranu osobních údajů. Více informací
Chystáte se prodat nemovitost?
Pomůžeme Vám!

Inzerát si prohlédlo 1 lidí

Prodejce

Petr Doležal

Petr Doležal

Hlídací pes

Chcete dostávat emailem podobné nabídky pronájmu bytů 1+kk v Praze 9?

Podobné nemovitosti