Prodej rodinného domu, Štěkeň, U Zámku, 834 m2

U Zámku, Štěkeň

1 390 000 Kč /za nemovitost HYPOTÉKA od 6 212 Kč /za měsíc
Exkluzivní partneři v Štěkni

Výkup a prodej starého nábytku

Pojištění a finance

Informace k domu

Prodej rodinného domu, 834 m², Štěkeň, ul. U Zámku

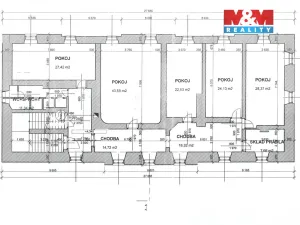
Nabízíme k prodeji rozsáhlý rodinný dům, o charakteru bývalé sokolovny, v obci Štěkeň, určený ke kompletní rekonstrukci. Nemovitost nabízí velkorysé prostory a široké možnosti využití – ideální pro podnikatelský záměr, jako jsou apartmány, penzion, sídlo firmy, komunitní centrum nebo kombinace bydlení a podnikání. Objekt zaujme především svou velikostí a variabilitou dispozic, které umožňují přizpůsobení dle vlastních představ a investičního záměru. Díky charakteru stavby a historii objektu má nemovitost jedinečný potenciál vytvořit originální projekt s přidanou hodnotou. Jedná se o Nemovitou kulturní památku. Obec Štěkeň je malebný městys v Jihočeském kraji, ležící na levém břehu řeky Otavy. Krásný zámek a zámecký park na okraji městyse. V obci naleznete základní občanskou vybavenost a příjemné prostředí pro život i podnikání. Výborná dopravní dostupnost je dalším velkým benefitem – Strakonice jsou vzdálené cca 6 km.

Parametry domu

Cena
1 390 000 Kč /za nemovitost Spočítat hypotéku
Aktualizováno
17. 5. 2026
Adresa
U Zámku, Štěkeň
ID
936896
Stavba
Cihlová
Stav objektu
Špatný
Vybaveno
Ne
Druh objektu
Samostatný
Lokalita objektu
Centrum obce
Vlastnictví
Státní/obecní
Užitná plocha
834 m2
Plocha pozemku
783 m2

Kontaktovat makléře

Realitní kancelář

Logo M&M reality

M&M reality

ulice Krakovská 583/9, Praha

Chystáte se prodat nemovitost?
Pomůžeme Vám!

Máte zájem o tento dům?

Tímto, v souladu s nařízením Evropského parlamentu a Rady (EU) 2016/679, v platném znění, prohlašuji, že mi je alespoň 16 let a uděluji tak svůj souhlas se zpracováním zadaných údajů (jméno, telefon, e-mail, ip adresa) společnosti B3 Technology, s.r.o., IČ: 07330600, se sídlem Novostavby 126/23, 435 11 Lom (správce dat), za účelem předání dotazu z tohoto formuláře Vámi vybranému inzerentovi a zpětného kontaktování mé osoby. Osobní údaje bude správce zpracovávat manuálně i automaticky přímo prostřednictvím svých zaměstnanců. Informace předané tímto formulářem budou uloženy v databázi správce maximálně po dobu 10 let. Odvolání souhlasu s uložením a zpracováním poskytnutých dat lze e-mailem na info@vitio.cz. V případě podezření na neoprávněné použití Vámi poskytnutých údajů máte právo předat podnět k šetření Úřadu pro ochranu osobních údajů. Více informací
Chystáte se prodat nemovitost?
Pomůžeme Vám!
Theleadway banner

Inzerát si prohlédlo 5 lidí

Prodejce

Roman Hýbl

Roman Hýbl

Hlídací pes

Chcete dostávat emailem podobné nabídky prodeje rodinných domů v Štěkni?

Podobné nemovitosti