Prodej zemědělské usedlosti, Staňkovice, 200 m2 (ID: 2625604)

Staňkovice, Tvršice

1 900 000 Kč /za nemovitost HYPOTÉKA od 8 492 Kč /za měsíc
Exkluzivní partneři v Staňkovicích

Okna a dveře

Rekonstrukce

Informace k domu

Nabízíme k prodeji zajímavý dům před rekonstrukcí v obci Tvršice, který představuje skvělou příležitost pro vlastní bydlení, podnikání nebo kombinaci obojího.

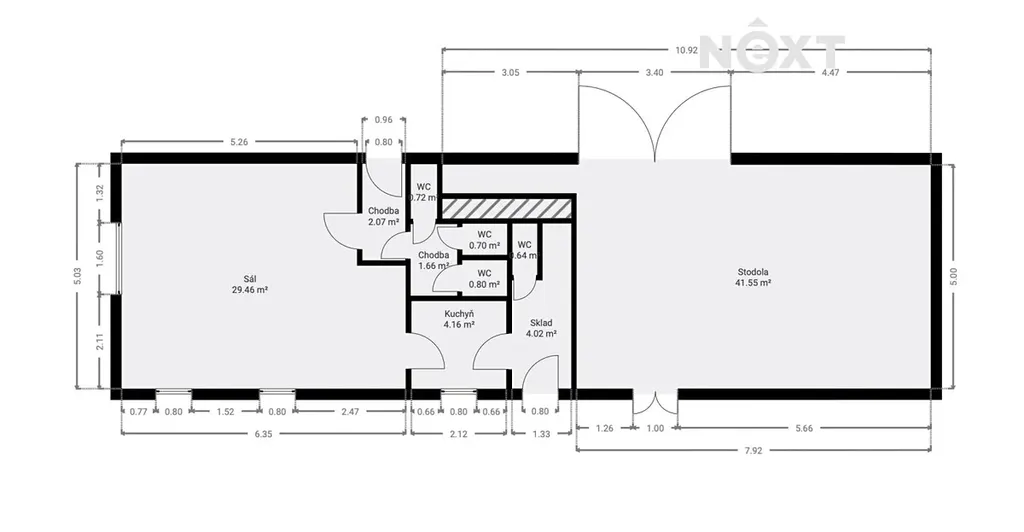
Celková velikost pozemku činní 511m2 se zastavěnou plochou 234m2.

Tento dům naposledy sloužil jako restaurační zařízení s možností vybudování vícero menších bytových jednotek.

Nemovitost nabízí velkorysé prostory a variabilní dispoziční řešení, díky čemuž je vhodná například rodinné bydlení, sídlo firmy, kanceláře, provozovnu, kombinaci bydlení a podnikání, investiční záměr (pronájem, přestavba na bytový dům s menšími jednotkami.)

Dům je určen k rekonstrukci, což umožňuje realizaci dle vlastních představ a potřeb. Velkou výhodou je potenciál využití prostoru, který dává novému majiteli široké možnosti budoucího rozvoje.

Obec Tvršice nabízí klidné venkovské prostředí v malebném kraji řeky Ohře s kompletní občanskou vybaveností v nedalekém Žatci nebo Staňkovicích.
Je zde výborné spojení autobusem a vlakem, a to jak do Žatce, tak do nedalekých Loun.

Hlavní výhody:
- dům s velkým potenciálem
- možnost kombinace bydlení a podniká
- rekonstrukce dle vlastní představy
- zajímavá investiční příležitost

Samozřejmostí je i případná pomoc s financováním koupě domu.

Pro bližší informace a prohlídku domu mě neváhejte kontaktovat. Pro komunikaci uvádějte evidenční číslo zakázky N115330.

Parametry domu

Cena
1 900 000 Kč /za nemovitost Spočítat hypotéku
Aktualizováno
31. 3. 2026
Adresa
Staňkovice, Tvršice
ID
N115330
Stavba
Kamenná
Stav objektu
Před rekonstrukcí
Vybaveno
Ne
Druh objektu
Samostatný
Lokalita objektu
Okraj obce
Užitná plocha
200 m2
Zastavěná plocha
228 m2
Plocha pozemku
511 m2
Třída energetické náročnosti
G - Mimořádně nehospodárná
Bezbarierový přístup
Parkování

Kontaktovat makléře

Máte zájem o tento dům?

Tímto, v souladu s nařízením Evropského parlamentu a Rady (EU) 2016/679, v platném znění, prohlašuji, že mi je alespoň 16 let a uděluji tak svůj souhlas se zpracováním zadaných údajů (jméno, telefon, e-mail, ip adresa) společnosti B3 Technology, s.r.o., IČ: 07330600, se sídlem Novostavby 126/23, 435 11 Lom (správce dat), za účelem předání dotazu z tohoto formuláře Vámi vybranému inzerentovi a zpětného kontaktování mé osoby. Osobní údaje bude správce zpracovávat manuálně i automaticky přímo prostřednictvím svých zaměstnanců. Informace předané tímto formulářem budou uloženy v databázi správce maximálně po dobu 10 let. Odvolání souhlasu s uložením a zpracováním poskytnutých dat lze e-mailem na info@vitio.cz. V případě podezření na neoprávněné použití Vámi poskytnutých údajů máte právo předat podnět k šetření Úřadu pro ochranu osobních údajů. Více informací
Chystáte se prodat nemovitost?
Pomůžeme Vám!

Inzerát si prohlédlo 0 lidí

Prodejce

Tomáš Böhm STYLE

Tomáš Böhm STYLE

Hlídací pes

Chcete dostávat emailem podobné nabídky prodeje zemědělských usedlostí v Staňkovicích (okr. Louny)?

Podobné nemovitosti