Pronájem bytu 2+1, Praha - Vokovice, Irská, 63 m2

Irská, Praha, Vokovice

24 990 Kč /za měsíc Získejte výhodnou HYPOTÉKU
Exkluzivní partneři v Praze 6

Stěhovací služby

Výkup a prodej starého nábytku

Informace k bytu

Hledáte domov, kde se snoubí klidná atmosféra s přírodou, velkorysý prostor a nadstandardní bezpečí? Nabízíme k dlouhodobému pronájmu velmi příjemný a světlý byt o dispozici 2+1 s balkonem v ulici Irská, Praha 6 – Vokovice.

Tento byt není jen místem k přespání, je to skutečný domov v jedné z nejžádanějších částí Prahy, který vám díky recepci zajistí maximální pohodlí a servis.

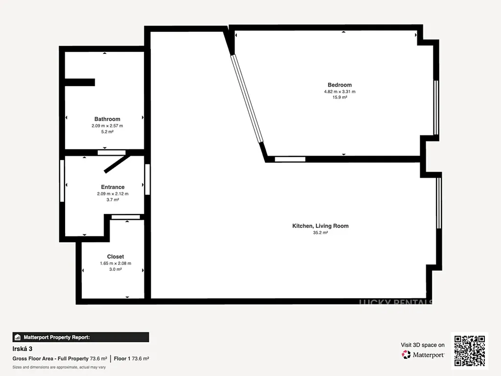
Dispozice a vybavení bytu:
Vstupní chodba tvoří praktické zázemí bytu, ze kterého vstoupíte do koupelny s vanou, toaletou a pračkou. Skutečným bonusem je samostatná šatna, která pojme vše potřebné. Kuchyně je plně vybavena (lednice, trouba s varnou deskou, myčka, mikrovlnná trouba), zatímco obývací pokoj a ložnice nabízejí dostatek úložných prostor, sedací soupravu i postel.

Celý byt prostupuje dostatek přirozeného světla a jeho pomyslným srdcem je velkorysý balkon orientovaný na jižní stranu, který je jako stvořený pro relaxaci.

Bezpečnost a servis: V domě funguje centrální recepce, která se postará o vaše bezpečí i o převzetí zásilek během vaší nepřítomnosti.

Parkování: K bytu je možné si pronajmout garážové stání za příplatek 1.500 Kč/měsíc, případně lze parkovat v rezidenčních zónách přímo před domem.

Lokalita, kterou si zamilujete:
Vokovice patří dlouhodobě mezi nejprestižnější adresy na Praze 6 díky unikátní kombinaci přírody a městské infrastruktury.

Příroda na dosah: Milovníci venkovních aktivit ocení bezprostřední blízkost Divoké Šárky a vodní nádrže Džbán.

Skvělá dostupnost: Stanice metra A (Nádraží Veleslavín / Bořislavka) i zastávky tramvají a autobusů jsou v docházkové vzdálenosti – v centru města jste během chvíle.

Vybavenost: V okolí najdete kompletní síť obchodů, vyhlášené kavárny i veškeré potřebné služby.

Podmínky nájmu:
Měsíční nájemné: 24.990 Kč
Měsíční poplatky: 4.500 Kč (+ případné parkování 1.500 Kč)
Vratná kauce: 35.000 Kč
Provize: 25.000 Kč + 21% DPH

Byt je volný a připravený k okamžitému nastěhování, vybavení bytu je na domluvě.

Zaujal vás tento byt? Prohlédněte si fotografie, projděte si 3D prohlídku a pokud cítíte, že by toto mohl být váš nový domov, neváhejte mě kontaktovat pro osobní prohlídku.

Hledáme nájemníka, který bude k bytu přistupovat jako ke svému vlastnímu a bude chtít udržovat jeho současný stav nejen kvůli majitelům. Majitelé na oplátku nabízí férový přístup.

Právní doložka: Uvedené výměry jsou orientační. Veškeré zveřejněné údaje obsažené v tomto inzerátu mají pouze informativní charakter a nejsou nabídkou ve smyslu § 1731 nebo § 1732 občanského zákoníku, ani se nejedná o veřejný příslib dle § 1733 občanského zákoníku.

Parametry bytu

Cena
24 990 Kč /za měsíc
Aktualizováno
30. 3. 2026
Adresa
Irská, Praha, Vokovice
ID
A16066
Stavba
Skeletová
Stav objektu
Velmi dobrý
Patro
1.
Vybaveno
Částečně
Lokalita objektu
Klidná část obce
Vlastnictví
Družstevní
Užitná plocha
63 m2
Podlahová plocha
75 m2
Balkon
Sklep
Výtah
Parkování

Kontaktovat makléře

Máte zájem o tento byt?

Tímto, v souladu s nařízením Evropského parlamentu a Rady (EU) 2016/679, v platném znění, prohlašuji, že mi je alespoň 16 let a uděluji tak svůj souhlas se zpracováním zadaných údajů (jméno, telefon, e-mail, ip adresa) společnosti B3 Technology, s.r.o., IČ: 07330600, se sídlem Novostavby 126/23, 435 11 Lom (správce dat), za účelem předání dotazu z tohoto formuláře Vámi vybranému inzerentovi a zpětného kontaktování mé osoby. Osobní údaje bude správce zpracovávat manuálně i automaticky přímo prostřednictvím svých zaměstnanců. Informace předané tímto formulářem budou uloženy v databázi správce maximálně po dobu 10 let. Odvolání souhlasu s uložením a zpracováním poskytnutých dat lze e-mailem na info@vitio.cz. V případě podezření na neoprávněné použití Vámi poskytnutých údajů máte právo předat podnět k šetření Úřadu pro ochranu osobních údajů. Více informací
Chystáte se prodat nemovitost?
Pomůžeme Vám!

Inzerát si prohlédlo 0 lidí

Prodejce

Jaromír Hodyc

Jaromír Hodyc

Hlídací pes

Chcete dostávat emailem podobné nabídky pronájmu bytů 2+1 v Praze 6?

Podobné nemovitosti