Pronájem bytu 3+kk, Praha - Vinohrady, Nad Primaskou, 56 m2

Nad Primaskou, Praha 10

24 000 Kč /za měsíc Získejte výhodnou HYPOTÉKU

(Cena za měsíční pronájem bytu činí 24 000 Kč + poplatky ve výši 3 300 Kč, elektřina se převádí na nájemce. Kauce je ve výši 48 000 Kč. Odměna RK jeden měsíční nájem.)

Exkluzivní partneři v Praze 10

Stěhovací služby

Výkup a prodej starého nábytku

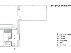
Informace k bytu

Nabízíme vám byt k pronájmu ve vyhledávané atraktivní čtvrti – na pražských Vinohradech. Jedná se o klidnou lokalitu u vilkové čtvrti nedaleko stanice Metra A Strašnická.

V zastoupení majitele nabízíme pronájem příjemného bytu po celkové rekonstrukci, v úžasné pražské čtvrti v bloku cihlových domů které prošly částečnou revitalizací – plastová okna, nový výtah a rozvody. Prestižní adresa se snadnou dostupností do centra a zároveň okolí plné zeleně, obchůdků a restaurací.

Byt 3+kk o podlahové ploše 56 m2 se nachází ve 5. nadzemním podlaží cihlového domu ze 70. let. Náleží k němu zděný sklep, který má další 2 m2. Obývací pokoj s kuchyní a menší pokoj jsou orientovány na sever do vnitrobloku a na jižní straně do ulice se nachází větší z ložnic.

Byt prošel v tomto roce celkovou rekonstrukcí – vznikla nová větší koupelna s vanou a výklenkem pro pračku a sušičku, nový kuchyňský kout s indukční varnou deskou, elektrickou troubou, myčkou, digestoří a lednicí. Nové jsou rozvody vody a elektřiny, vinylové podlahy, dveře vč. vstupních a úložné prostory v chodbě.

Okolí je plné zeleně, parků a sportovišť. Prolíná se tu městský životní styl s přírodou a sportovním vyžitím. Zde budete žít ve velmi zajímavé a žádané lokalitě. Tady budete bydlet na tom správném místě.

Cena za měsíční pronájem bytu činí 24 000 Kč + poplatky ve výši 3 300 Kč, elektřina se převádí na nájemce. Kauce je ve výši 48 000 Kč. Odměna RK jeden měsíční nájem.

Zaujala vás tato nabídka? Hledáte klidný domov pro svou rodinu a zároveň chcete využívat možnosti městského zázemí?

Neváhejte a sjednejte si přesný termín a čas prohlídky. Budu se na vás těšit.

Parametry bytu

Cena
24 000 Kč /za měsíc
Poznámka k ceně
Cena za měsíční pronájem bytu činí 24 000 Kč + poplatky ve výši 3 300 Kč, elektřina se převádí na nájemce. Kauce je ve výši 48 000 Kč. Odměna RK jeden měsíční nájem.
Aktualizováno
26. 3. 2026
Adresa
Nad Primaskou, Praha 10
ID
19272
Stavba
Cihlová
Stav objektu
Po rekonstrukci
Patro
5. z 5
Vybaveno
Ne
Lokalita objektu
Klidná část obce
Vlastnictví
Osobní
Užitná plocha
56 m2
Zastavěná plocha
1677 m2
Podlahová plocha
58 m2
Třída energetické náročnosti
E - Nehospodárná
Plyn
Plynovod
Odpad
Veřejná kanalizace
Komunikace
Asfaltová
Voda
Vodovod
Sklep

Kontaktovat makléře

Máte zájem o tento byt?

Tímto, v souladu s nařízením Evropského parlamentu a Rady (EU) 2016/679, v platném znění, prohlašuji, že mi je alespoň 16 let a uděluji tak svůj souhlas se zpracováním zadaných údajů (jméno, telefon, e-mail, ip adresa) společnosti B3 Technology, s.r.o., IČ: 07330600, se sídlem Novostavby 126/23, 435 11 Lom (správce dat), za účelem předání dotazu z tohoto formuláře Vámi vybranému inzerentovi a zpětného kontaktování mé osoby. Osobní údaje bude správce zpracovávat manuálně i automaticky přímo prostřednictvím svých zaměstnanců. Informace předané tímto formulářem budou uloženy v databázi správce maximálně po dobu 10 let. Odvolání souhlasu s uložením a zpracováním poskytnutých dat lze e-mailem na info@vitio.cz. V případě podezření na neoprávněné použití Vámi poskytnutých údajů máte právo předat podnět k šetření Úřadu pro ochranu osobních údajů. Více informací
Chystáte se prodat nemovitost?
Pomůžeme Vám!

Inzerát si prohlédlo 0 lidí

Prodejce

Mgr. Jana Čermochová

Mgr. Jana Čermochová

Hlídací pes

Chcete dostávat emailem podobné nabídky pronájmu bytů 3+kk v Praze 10?

Podobné nemovitosti