Pronájem bytu 3+kk, Praha - Hlubočepy, Högerova, 66 m2

Högerova, Hlubočepy - Praha 5

28 000 Kč /za měsíc Získejte výhodnou HYPOTÉKU

(vratná jistota, náklady na bydlení 7.781 Kč v případě 4 dospělých osob, poplatek za podnájem)

Exkluzivní partneři v Praze 5

Stěhovací služby

Výkup a prodej starého nábytku

Pojištění a finance

Informace k bytu

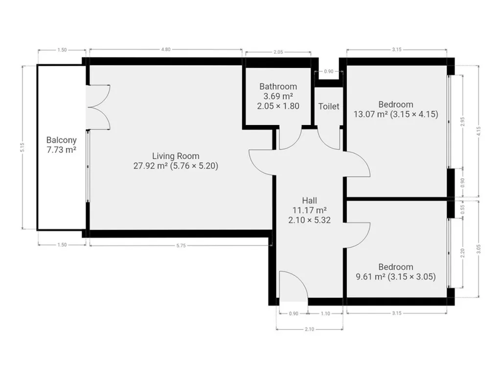
K dlouhodobému podnájmu nabízíme byt o dispozici 3+kk v klidné lokalitě Praha - Hlubočepy. Byt o celkové výměře 66m2 se nachází ve třetím podlaží domu s výtahem. K bytu patří i balkon a garážové stání.

Byt se nabízí částečně vybavený, viz fotografie. Kuchyně disponuje lednicí, myčkou, elektrickou troubou, varnou deskou, mikrovlnnou troubou, digestoří a dostatkem úložného prostoru. V chodbě jsou k dispozici vestavěné skříně. V koupelně je vana se zástěnou, umyvadlo a pračka. Toaleta je umístěna samostatně. Nadstandartní je určitě přítomnost klimatizace v obývacím pokoji na jižní straně.

V okolí domu najdeme restaurace, supermarket Albert, základní a mateřskou školu, lékárnu atd. Čtyři minuty chůze od domu je vzdálená tramvajová schůzka Poliklinika Barrandov.

Majitel preferuje zájemce bez domácích mazlíčků.

Byt je volný k nastěhování od 1.7.2026.

Uvedena energetická kategorie G, jelikož nemáme k dispozici PENB.

Byt pronajímá Ideální nájemce - služba, se kterou budete bydlet bezstarostně a za férových podmínek. Když se něco přihodí, k dispozici jsou správci, kteří s vámi vše vyřeší. Pomůžeme s veškerou administrativou, s nastavením plateb a zajistíme vám speciální pojištění. Pojďte bydlet s námi!

Parametry bytu

Cena
28 000 Kč /za měsíc
Poznámka k ceně
vratná jistota, náklady na bydlení 7.781 Kč v případě 4 dospělých osob, poplatek za podnájem
Aktualizováno
26. 3. 2026
Adresa
Högerova, Hlubočepy - Praha 5
ID
N3961
Stavba
Panelová
Stav objektu
Velmi dobrý
Patro
3. z 6
Vybaveno
Ne
Typ objektu
Patrový
Lokalita objektu
Klidná část obce
Vlastnictví
Osobní
Užitná plocha
66 m2
Podlahová plocha
66 m2
Elektřina
230V
Topení
Ústřední dálkové
Balkon
Výtah
Parkování

Kontaktovat makléře

Realitní kancelář

Logo Ideální nájemce

Ideální nájemce

Milady Horákové 1957/13, Brno

Chystáte se prodat nemovitost?
Pomůžeme Vám!

Máte zájem o tento byt?

Tímto, v souladu s nařízením Evropského parlamentu a Rady (EU) 2016/679, v platném znění, prohlašuji, že mi je alespoň 16 let a uděluji tak svůj souhlas se zpracováním zadaných údajů (jméno, telefon, e-mail, ip adresa) společnosti B3 Technology, s.r.o., IČ: 07330600, se sídlem Novostavby 126/23, 435 11 Lom (správce dat), za účelem předání dotazu z tohoto formuláře Vámi vybranému inzerentovi a zpětného kontaktování mé osoby. Osobní údaje bude správce zpracovávat manuálně i automaticky přímo prostřednictvím svých zaměstnanců. Informace předané tímto formulářem budou uloženy v databázi správce maximálně po dobu 10 let. Odvolání souhlasu s uložením a zpracováním poskytnutých dat lze e-mailem na info@vitio.cz. V případě podezření na neoprávněné použití Vámi poskytnutých údajů máte právo předat podnět k šetření Úřadu pro ochranu osobních údajů. Více informací
Chystáte se prodat nemovitost?
Pomůžeme Vám!
Theleadway banner

Inzerát si prohlédlo 5 lidí

Prodejce

Dana Oralová

Dana Oralová

Hlídací pes

Chcete dostávat emailem podobné nabídky pronájmu bytů 3+kk v Praze 5?

Podobné nemovitosti