Pronájem skladu, Plzeň - Východní Předměstí, Jateční, 4870 m2 (ID: 2614387)

Jateční, Plzeň, Východní Předměstí

Cena na vyžádání /za metr čtvereční / měsíc Získejte výhodnou HYPOTÉKU
Exkluzivní partneři v Plzni

Stěhovací služby

Pojištění a finance

Informace k nemovitosti

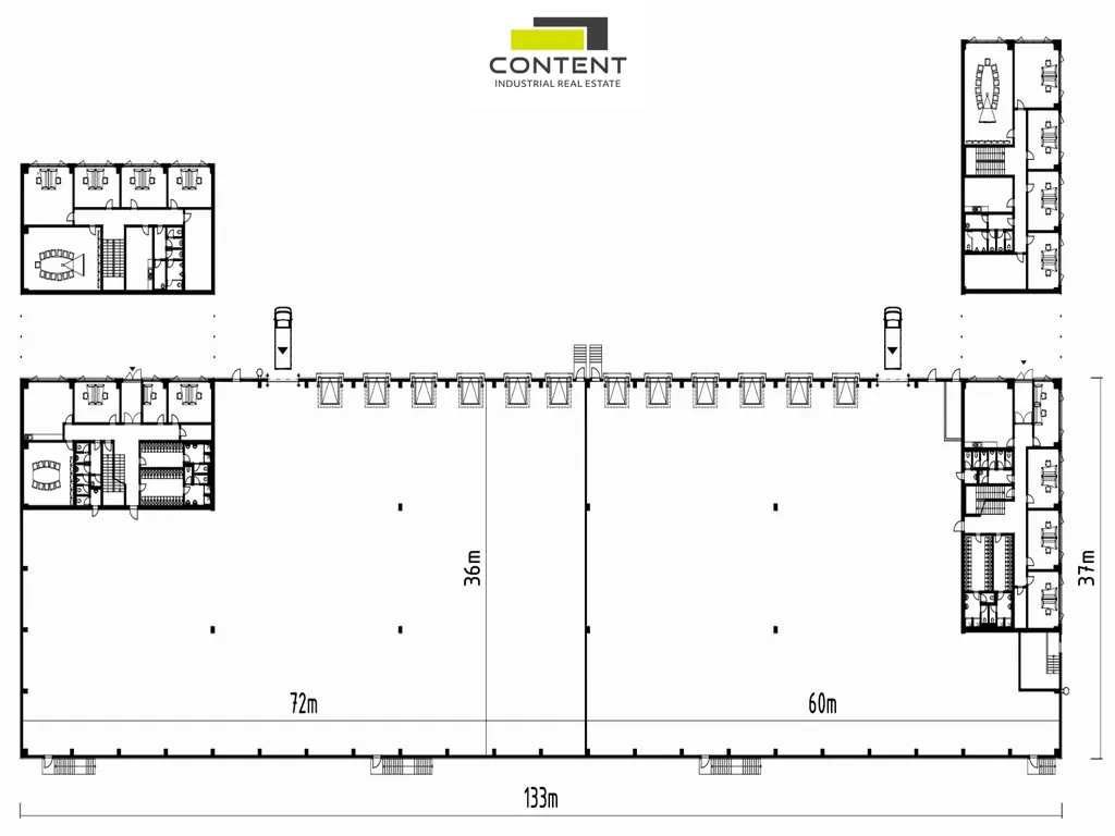
Pronájem skladu, výrobních prostor 4870 m² Plzeň 4- Jateční ulice.

V zastoupení majitele a bez provize nabízíme samostatnou jednotku o výměře 4870 m² v nově vznikajícím areálu Nová Jateční vedle plně obsazeného retail parku Intercora. Areál se nachází vedle frekventované ulice Jateční a zároveň na budoucím východním obchvatu Plzně, což zajišťuje vynikající dopravní dostupnost i obchodní exponovanost.

- 4870 m² dostupných (k dispozici 2Q/2027 – hala B), stavební povolení vydáno
- výška prostoru 10 m
- kanceláře a sociální zázemí dle požadavků nájemce
- parkovací místa přímo před jednotkou
- bezprašné podlahy s minimální nosností 5 t/m²
- přímý vjezd z úrovně terénu
- hydraulické rampy
- možnost dispozičních úprav podle potřeb klienta
- lze dělit od cca 1100 m²
- MHD v docházkové vzdálenosti, v areálu plánované nabíjecí stanice
- příjezd a parkování TIR bezproblémové, manipulační a parkovací plochy
- BREAM Excellent
- možnost instalace FVE
- v areálu jsou k dispozici další skladové a obchodní jednotky o velikosti od 570 m² až po 4870 m²

Cena za pronájem na dotaz.
V případě zájmu nás kontaktujte, rádi zodpovíme Vaše dotazy.

Parametry nemovitosti

Cena
Cena na vyžádání
Aktualizováno
10. 4. 2026
Adresa
Jateční, Plzeň, Východní Předměstí
ID
N7123
Stavba
Skeletová
Stav objektu
Novostavba
Typ objektu
Přízemní
Lokalita objektu
Rušná část obce
Užitná plocha
4870 m2
Třída energetické náročnosti
B - Velmi úsporná
Parkování

Kontaktovat makléře

Realitní kancelář

Logo CONTENT REALITY s.r.o.

CONTENT REALITY s.r.o.

Průmyslová 1472/11, Praha 10

Chystáte se prodat nemovitost?
Pomůžeme Vám!

Máte zájem o tuto nemovistost?

Tímto, v souladu s nařízením Evropského parlamentu a Rady (EU) 2016/679, v platném znění, prohlašuji, že mi je alespoň 16 let a uděluji tak svůj souhlas se zpracováním zadaných údajů (jméno, telefon, e-mail, ip adresa) společnosti B3 Technology, s.r.o., IČ: 07330600, se sídlem Novostavby 126/23, 435 11 Lom (správce dat), za účelem předání dotazu z tohoto formuláře Vámi vybranému inzerentovi a zpětného kontaktování mé osoby. Osobní údaje bude správce zpracovávat manuálně i automaticky přímo prostřednictvím svých zaměstnanců. Informace předané tímto formulářem budou uloženy v databázi správce maximálně po dobu 10 let. Odvolání souhlasu s uložením a zpracováním poskytnutých dat lze e-mailem na info@vitio.cz. V případě podezření na neoprávněné použití Vámi poskytnutých údajů máte právo předat podnět k šetření Úřadu pro ochranu osobních údajů. Více informací
Chystáte se prodat nemovitost?
Pomůžeme Vám!
Theleadway banner

Inzerát si prohlédlo 4 lidí

Prodejce

Matěj Ježek

Matěj Ježek

Hlídací pes

Chcete dostávat emailem podobné nabídky pronájmu skladů v Plzni?

Podobné nemovitosti