Prodej chalupy, Rokytnice nad Jizerou - Dolní Rokytnice, 155 m2 (ID: 2609651)

Dolní Rokytnice

6 290 000 Kč /za nemovitost HYPOTÉKA od 28 112 Kč /za měsíc
Exkluzivní partneři v Rokytnici nad Jizerou

Rekonstrukce

Úklidové služby

Informace k domu

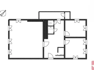
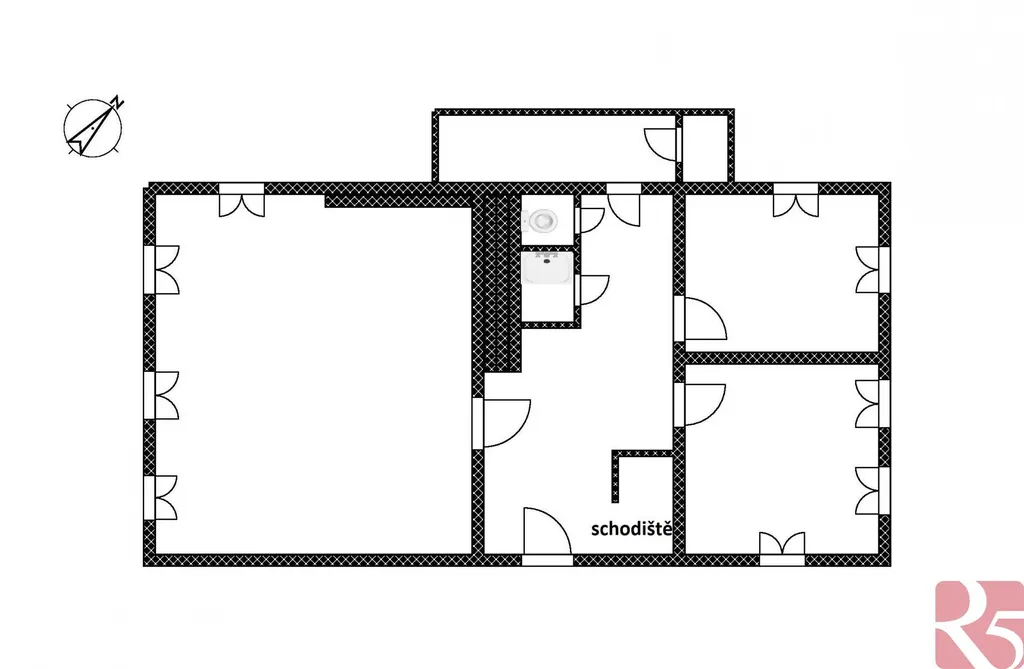
Jedinečná roubenka v srdci Krkonoš. Historický roubený dům z 19. století s pozemkem a parkovištěm, využitelný jako chata, chalupa či rodinný dům. Užitná plocha 155 m2 (6+kk).

Krásné místo s panoramatickou vyhlídkou na klidném místě, ale přesto 10 minut pěšky do centra (autobus, obchody, restaurace).
Široké horské louky a hluboký les hned u objektu, stejně jako několik turistických tras, které vás rychle dovedou jak na hřebeny Krkonoš, tak k peřejím řeky Jizery anebo do bučin Jizerských hor.

V zimě je už pouhým pohledem z okna na výběr několik špičkových ski areálů. V bezprostředním okolí se nachází jak horský areál Horní Domky Lysá hora, tak rodinný Studenov, na dosah jsou pak sjezdovky v Harrachově, na Pasekách, či v Jablonci nad Jizerou. V areálu na Lysé hoře se také nachází 2 540 metrů dlouhá červená sjezdovka, která si získala klasifikaci FIS.

Jde o historický dům bez dramatických zásahů do původní roubené konstrukce.

V přízemí velká společenská místnost 33m2 a dva pokoje, 11 a 13m2. V patře jsou pak tři obytné velké místnosti s dřevěnými stěnami. Dům je okamžitě obyvatelný. Napojený je na místní kanalizaci, vodovod a elektřinu. Vytápění moderním plynovým kondenzačním kotlem s dálkovým ovládáním.

Objekt je podsklepený, jeden sklep je přístupný ze zahrady, druhý z předsíně.

Velká slunná zahrada 730 m2 nabízí romantické posezení, protéká jí také malý potůček. Nabízí se dostavět venkovní posezení nebo otevřenou verandu.
U chaty jsou dvě místa na parkování.

Koupě této nemovitosti je skvělá investice, vzhledem ke strategickému umístění kousek od turistického centra a zároveň v oáze klidu.

Pro více informací a domluvení prohlídky kontaktujte makléře.

Parametry domu

Cena
6 290 000 Kč /za nemovitost Spočítat hypotéku
Aktualizováno
15. 3. 2026
Adresa
Dolní Rokytnice
ID
R519556
Stavba
Dřevěná
Stav objektu
Dobrý
Typ objektu
Patrový
Druh objektu
Samostatný
Lokalita objektu
Klidná část obce
Užitná plocha
155 m2
Zastavěná plocha
136 m2
Podlahová plocha
155 m2
Plocha pozemku
867 m2
Plocha zahrady
731 m2
Třída energetické náročnosti
G - Mimořádně nehospodárná
Elektřina
230V, 400V
Odpad
Veřejná kanalizace
Topení
Ústřední plynové
Komunikace
Asfaltová
Telekomunikace
Internet
Doprava
Silnice
Voda
Vodovod
Topné těleso
Krbová kamna
Zdroj topení
Plynový kotel, Krbová kamna
Zdroj teplé vody
Plynový kotel
Sklep
Bezbarierový přístup
Parkování

Kontaktovat makléře

Realitní kancelář

Logo REALITY 5

REALITY 5

Hvězdova 1594/19, Praha

Chystáte se prodat nemovitost?
Pomůžeme Vám!

Máte zájem o tento dům?

Tímto, v souladu s nařízením Evropského parlamentu a Rady (EU) 2016/679, v platném znění, prohlašuji, že mi je alespoň 16 let a uděluji tak svůj souhlas se zpracováním zadaných údajů (jméno, telefon, e-mail, ip adresa) společnosti B3 Technology, s.r.o., IČ: 07330600, se sídlem Novostavby 126/23, 435 11 Lom (správce dat), za účelem předání dotazu z tohoto formuláře Vámi vybranému inzerentovi a zpětného kontaktování mé osoby. Osobní údaje bude správce zpracovávat manuálně i automaticky přímo prostřednictvím svých zaměstnanců. Informace předané tímto formulářem budou uloženy v databázi správce maximálně po dobu 10 let. Odvolání souhlasu s uložením a zpracováním poskytnutých dat lze e-mailem na info@vitio.cz. V případě podezření na neoprávněné použití Vámi poskytnutých údajů máte právo předat podnět k šetření Úřadu pro ochranu osobních údajů. Více informací
Chystáte se prodat nemovitost?
Pomůžeme Vám!

Inzerát si prohlédlo 0 lidí

Prodejce

Miloslav Shejbal

Miloslav Shejbal

Hlídací pes

Chcete dostávat emailem podobné nabídky prodeje chalup v Rokytnici nad Jizerou?

Podobné nemovitosti