Prodej rodinného domu, Žďár nad Sázavou - Žďár nad Sázavou 1, Veselská, 78 m2

Veselská, Žďár nad Sázavou 1

6 490 000 Kč /za nemovitost HYPOTÉKA od 29 006 Kč /za měsíc

(včetně provize a právních služeb)

Exkluzivní partneři v Žďáře nad Sázavou

Informace k domu

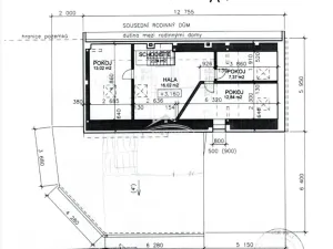
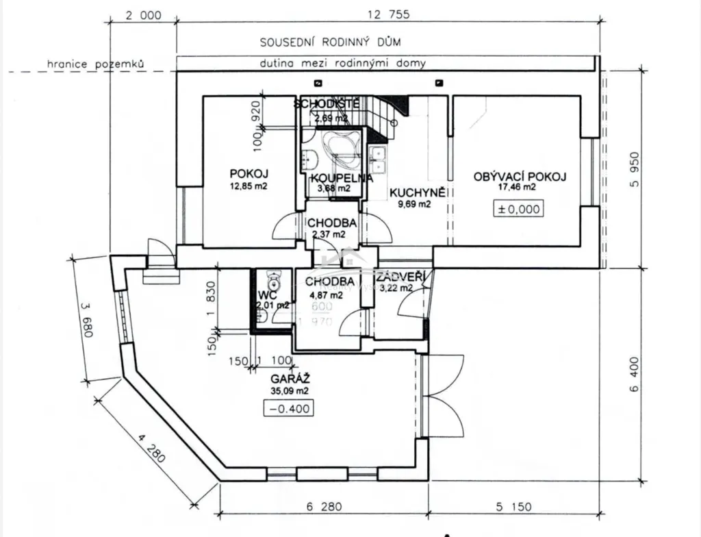
Nabízíme k prodeji rodinný dům o dispozici 2+kk s možností rozšíření o další 3 obytné místnosti v podkroví, na které je platná projektová dokumentace (vizualizace naleznete na konci foto galerie).

Současná obytná plocha domu činí přibližně 78 m². Dalších cca 33 m² nabízí podkroví, které je již připravené k dokončení a umožňuje vybudování až tří dalších pokojů. Nemovitost tak nabízí potenciál pro rozšíření na plnohodnotné rodinné bydlení.

Vybavená kuchyňská linka, koupelna s vanou, samostatné WC, plastová okna dvojskla. Vytápění je řešeno elektrokotlem, doplněným krbovou vložkou s výměníkem, která umožňuje efektivní vytápění domu v zimním období. Dům je vybaven zabezpečovacím systémem s alarmem.
Součástí domu je také prostorná garáž, kterou je možné změnit na další obytnou místnost, na pozemku je také praktické venkovní zázemí – pergola s krbem a udírnou, která vytváří příjemné místo pro posezení s rodinou nebo přáteli. K dispozici je rovněž zahradní stavba vhodná pro uskladnění nářadí nebo zahradní techniky.
Dům byl postaven přibližně v letech 1960–1966 z cihelného zdiva a nachází se na klidném místě s menší zahradou a je napojen na obecní vodovod a kanalizaci. Elektroinstalace je provedena v mědi s rozvody 220/380 V. Plyn není do domu zaveden.

Nemovitost nabízí kombinaci klidného bydlení a možnosti dalšího rozšíření podle vlastních představ. Díky připravenému podkroví a dobrému technickému zázemí představuje zajímavou příležitost jak pro vlastní bydlení, tak pro investici.

Základní informace:
dispozice: 2+kk
obytná plocha: cca 78 m²
podkroví připravené k dokončení: cca 33 m² (možnost až 3 pokojů)
plastová okna s dvojskly
elektřina 220/380 V v mědi
obecní vodovod a kanalizace
elektrokotel + krbová vložka s výměníkem
pergola s krbem a udírnou
zabezpečovací systém – alarm
Průkaz energetické náročnosti budovy (PENB) je aktuálně ve zpracování, z tohoto důvodu je dočasně uváděna energetická třída G.

Možnost financování hypotékou nebo stavebním spořením!

Parametry domu

Cena
6 490 000 Kč /za nemovitost Spočítat hypotéku
Poznámka k ceně
včetně provize a právních služeb
Aktualizováno
11. 3. 2026
Adresa
Veselská, Žďár nad Sázavou 1
ID
5221
Stavba
Cihlová
Stav objektu
Dobrý
Typ objektu
Přízemní
Druh objektu
Rohový
Lokalita objektu
Klidná část obce
Užitná plocha
78 m2
Zastavěná plocha
140 m2
Podlahová plocha
257 m2
Plocha pozemku
117 m2
Třída energetické náročnosti
G - Mimořádně nehospodárná
Elektřina
230V, 400V
Odpad
Veřejná kanalizace
Topení
Lokální tuhá paliva, Lokální elektrické, Ústřední tuhá paliva, Ústřední elektrické
Telekomunikace
Telefon, Internet
Doprava
Vlak, MHD, Autobus
Voda
Vodovod
Garáž
Parkování

Kontaktovat makléře

Realitní kancelář

Logo Reality Vysočina s.r.o.

Reality Vysočina s.r.o.

Beckovského 2045, Havlíčkův Brod

Chystáte se prodat nemovitost?
Pomůžeme Vám!

Máte zájem o tento dům?

Tímto, v souladu s nařízením Evropského parlamentu a Rady (EU) 2016/679, v platném znění, prohlašuji, že mi je alespoň 16 let a uděluji tak svůj souhlas se zpracováním zadaných údajů (jméno, telefon, e-mail, ip adresa) společnosti B3 Technology, s.r.o., IČ: 07330600, se sídlem Novostavby 126/23, 435 11 Lom (správce dat), za účelem předání dotazu z tohoto formuláře Vámi vybranému inzerentovi a zpětného kontaktování mé osoby. Osobní údaje bude správce zpracovávat manuálně i automaticky přímo prostřednictvím svých zaměstnanců. Informace předané tímto formulářem budou uloženy v databázi správce maximálně po dobu 10 let. Odvolání souhlasu s uložením a zpracováním poskytnutých dat lze e-mailem na info@vitio.cz. V případě podezření na neoprávněné použití Vámi poskytnutých údajů máte právo předat podnět k šetření Úřadu pro ochranu osobních údajů. Více informací
Chystáte se prodat nemovitost?
Pomůžeme Vám!

Inzerát si prohlédlo 0 lidí

Prodejce

Adam Chlubný

Adam Chlubný

Hlídací pes

Chcete dostávat emailem podobné nabídky prodeje rodinných domů v Žďáře nad Sázavou?

Podobné nemovitosti