Remax Monarcha

Pronájem bytu 2+1, Olomouc, tř. Kosmonautů, 51 m2

tř. Kosmonautů, Olomouc, Hodolany

18 000 Kč /za měsíc Získejte výhodnou HYPOTÉKU

(+ 2200,- Zálohy na služby, + provize RK, včetně právního servisu)

Exkluzivní partneři v Olomouci

Informace k bytu

Vážení klienti. Představujeme Vám hezký byt 2+1 se dvěma lodžiemi ve výborné lokalitě.

Nacházíme se na ulici tř. Kosmonautů v blízkosti centra města a pár minut chůze od hlavního nádraží, městských parků a horního náměstí.

V této části města můžete očekávat kompletní občanskou vybavenost včetně škol, školek, obchodů, tramvajové a autobusové zastávky pro pohodlné spojení do centra.

Při příjezdu na prohlídku se potkáme před udržovaných osmipodlažním panelovým domem, který prošel kompletní revitalizací. Bytový dům má zateplenou fasádu včetně výměny oken, střechy, stupaček a výtahu.

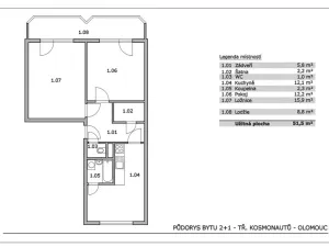
Předmětem prodeje je byt o dispozici 2+1 a užitné ploše 54 m² se zasklenou dvojitou lodžií, který je umístěný v 8. nadzemním podlaží s úžasným výhledem do okolí.

Byt je díky velkoformátovým oknům a orientaci velmi dobře prosvětlený a nabízí příjemné klima i v letních měsících.

Dispozice bytu nabízí chodbu s praktickou šatnou, ze které se vstupuje na oddělenou toaletu, do kuchyně s místem pro jídelní stůl a linku s vestavěnými spotřebiči, ze které se vchází do koupelny s vanou, umyvadlem a místem pro pračku. Na druhé straně jednotky jsou pak dva samostatné pokoje orientované na jižní stranu. Výhodou jsou dvě vzájemně propojené lodžie.
Příslušenství bytu tvoří komora na patře a sklep.

Nájem: 18 000,- Kč
Zálohy na služby: 2200,- Kč (nezahrnuje internet)
+ Přepis elektrické energie a plynu na nájemce (cca 2500,- Kč)
Vratná kauce 25 000,- kč
Rezervační poplatek 18 000,- Kč + DPH

Pro více informací prosím volejte certifikovaného realitního makléře.

Parametry bytu

Cena
18 000 Kč /za měsíc
Poznámka k ceně
+ 2200,- Zálohy na služby, + provize RK, včetně právního servisu
Aktualizováno
11. 3. 2026
Adresa
tř. Kosmonautů, Olomouc, Hodolany
ID
00216
Stavba
Cihlová
Stav objektu
Dobrý
Patro
8. z 8
Vybaveno
Ano
Lokalita objektu
Rušná část obce
Vlastnictví
Osobní
Užitná plocha
51 m2
Třída energetické náročnosti
D - Méně úsporná
Ukazatel energetické náročnosti
154 kWh/m2 za rok
Elektřina
230V
Voda
Vodovod
Sklep
Lodžie
Výtah

Kontaktovat makléře

Realitní kancelář

hanakreality.cz

tř. Kosmonautů 1288/1, Olomouc

Chystáte se prodat nemovitost?
Pomůžeme Vám!

Máte zájem o tento byt?

Tímto, v souladu s nařízením Evropského parlamentu a Rady (EU) 2016/679, v platném znění, prohlašuji, že mi je alespoň 16 let a uděluji tak svůj souhlas se zpracováním zadaných údajů (jméno, telefon, e-mail, ip adresa) společnosti B3 Technology, s.r.o., IČ: 07330600, se sídlem Novostavby 126/23, 435 11 Lom (správce dat), za účelem předání dotazu z tohoto formuláře Vámi vybranému inzerentovi a zpětného kontaktování mé osoby. Osobní údaje bude správce zpracovávat manuálně i automaticky přímo prostřednictvím svých zaměstnanců. Informace předané tímto formulářem budou uloženy v databázi správce maximálně po dobu 10 let. Odvolání souhlasu s uložením a zpracováním poskytnutých dat lze e-mailem na info@vitio.cz. V případě podezření na neoprávněné použití Vámi poskytnutých údajů máte právo předat podnět k šetření Úřadu pro ochranu osobních údajů. Více informací
Chystáte se prodat nemovitost?
Pomůžeme Vám!

Inzerát si prohlédlo 0 lidí

Prodejce

Bc. Pavel Indrák

Bc. Pavel Indrák

Hlídací pes

Chcete dostávat emailem podobné nabídky pronájmu bytů 2+1 v Olomouci?

Podobné nemovitosti