Prodej rodinného domu, Prackovice nad Labem, 190 m2 (ID: 2605473)

Prackovice nad Labem, Litochovice nad Labem

9 750 000 Kč /za nemovitost HYPOTÉKA od 43 577 Kč /za měsíc

(včetně DPH, včetně poplatků, včetně provize, včetně právního servisu)

Exkluzivní partneři v Prackovicích nad Labem

Okna a dveře

Rekonstrukce

Informace k domu

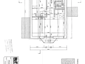
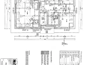
Nabízíme Vám ke koupi krásný rodinný dům zkolaudovaný v roce 2010 v klidné obci Litochovice nad Labem. Dům je postaven na pozemku o 1.684 m2 na kraji obce, pro rodinu, která hledá klid, je poloha domu perfektní. Nemovitost je v současnosti rozdělena na dva samostatně obyvatelné prostory, které jdou ale využívat současně. V přízemí je byt s terasou o ploše cca 100 m2 a má samostatný vchod z pozemku, podlahu tvoří převážně dlažba. Do vrchního, podkrovního bytu s balkonem se dá dostat také zvenku samostatným vchodem nebo využít propojení mezi byty skrze schody uvnitř interiéru, zde je kvalitní lino.
Dům je vytápěn elektrokotlem Protherm a ohřev vody je zajištěn 200 litrovým bojlerem zn. Dražice. V celém domě je podlahové vytápění a pro větší komfort nechali majitelé v podkroví nainstalovat také klimatizaci.
Obec Litochovice n. Labem zajišťuje napojení na obecní kanalizaci a vodovod. Na pozemku je navíc studna, kterou majitelé využívají na splachování wc a praní.
Přízemní byt je zateplen 10 cm vatou a podkrovní byt 15 cm.
Na pozemku je velmi prostorná garáž, která má plochu 32 m2. Dále je zde bazén a pergola pro letní posezení u grilu.
Věřím, že dům se velmi rychle najde nového majitele a poskytne tak příjemné a klidné zázemí této obce a zároveň nabídne rychlou dostupnost jak směrem do Ústí nad Labem a dále Německa, tak i na druhý směr k Praze.

Parametry domu

Cena
9 750 000 Kč /za nemovitost Spočítat hypotéku
Poznámka k ceně
včetně DPH, včetně poplatků, včetně provize, včetně právního servisu
Aktualizováno
11. 3. 2026
Adresa
Prackovice nad Labem, Litochovice nad Labem
ID
00104-3
Stavba
Cihlová
Stav objektu
Velmi dobrý
Vybaveno
Částečně
Druh objektu
Samostatný
Lokalita objektu
Okraj obce
Užitná plocha
190 m2
Zastavěná plocha
116 m2
Plocha pozemku
1679 m2
Plocha zahrady
1563 m2
Třída energetické náročnosti
G - Mimořádně nehospodárná
Elektřina
230V
Odpad
Veřejná kanalizace
Voda
Vodovod, Studna
Topné těleso
Podlahové vytápění, Krb, Klimatizace
Zdroj topení
Elektrokotel, Krb
Zdroj teplé vody
Elektrokotel, Bojler - elektro
Garáž
Výtah
Bazén

Kontaktovat makléře

Realitní kancelář

FINREPS s.r.o.

Terezínská 174/82, Lovosice

Chystáte se prodat nemovitost?
Pomůžeme Vám!

Máte zájem o tento dům?

Tímto, v souladu s nařízením Evropského parlamentu a Rady (EU) 2016/679, v platném znění, prohlašuji, že mi je alespoň 16 let a uděluji tak svůj souhlas se zpracováním zadaných údajů (jméno, telefon, e-mail, ip adresa) společnosti B3 Technology, s.r.o., IČ: 07330600, se sídlem Novostavby 126/23, 435 11 Lom (správce dat), za účelem předání dotazu z tohoto formuláře Vámi vybranému inzerentovi a zpětného kontaktování mé osoby. Osobní údaje bude správce zpracovávat manuálně i automaticky přímo prostřednictvím svých zaměstnanců. Informace předané tímto formulářem budou uloženy v databázi správce maximálně po dobu 10 let. Odvolání souhlasu s uložením a zpracováním poskytnutých dat lze e-mailem na info@vitio.cz. V případě podezření na neoprávněné použití Vámi poskytnutých údajů máte právo předat podnět k šetření Úřadu pro ochranu osobních údajů. Více informací
Chystáte se prodat nemovitost?
Pomůžeme Vám!

Inzerát si prohlédlo 0 lidí

Prodejce

Martina Capouchová

Martina Capouchová

Hlídací pes

Chcete dostávat emailem podobné nabídky prodeje rodinných domů v Prackovicích nad Labem?

Podobné nemovitosti