Pronájem bytu 2+1, Praha - Záběhlice, Púchovská, 50 m2

Púchovská, Záběhlice - Praha 4

21 000 Kč /za měsíc Získejte výhodnou HYPOTÉKU

(vratná jistota, náklady na bydlení 6099 Kč, poplatek za podnájem)

Exkluzivní partneři v Praze 4

Stěhovací služby

Výkup a prodej starého nábytku

Informace k bytu

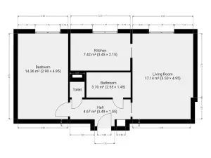
K dlouhodobému podnájmu nabízíme krásný byt o dispozici 2+1 v klidné lokalitě Praha 4 - Záběhlice. Byt o celkové výměře 50 m2 se nachází v 1. patře cihlového domu bez výtahu. K bytu patří i sklep a obyvatelům domu je k dispozici kočárkárna.

Byt se nabízí částečně vybavený. Kuchyně disponuje lednicí, myčkou, elektrickou troubou, varnou deskou, mikrovlnnou troubou, digestoří a jídelním stolem s 2 židlemi. Obývací pokoj je nezařízený. Součástí ložnice je vestavěná šatní skříň. V koupelně je vana , umyvadlo a zrcadlo. Toaleta je umístěna samostatně. V předsíni, kuchyni, koupelně a WC dlažba, v obývacím pokoji a ložnici plovoucí podlahy, ústřední vytápění i ohřev vody, přípojka na internet, čerstvě vymalováno, po generálním úklidu.

V okolí domu najdeme jedno z největších parkových náměstí v Praze, protínané dvěma alejovými třídami, které spolu s revitalizovaným prostorem náměstí vytvářejí park ve tvaru kříže. Obvod náměstí je lemován obytnými, převážně rodinnými domy, v přízemí některých jsou obchody či jiné provozovny. Střed celého prostoru je tvořen zelení, v severnější části se nacházejí dětská hřiště. V blízkosti domu se také nachází prodejna Tesco Expres, základní a mateřská škola, poliklinika s lékárnou, cukrárna, OD Centrum s širokou nabídkou obchodů a služeb atd. Čtyři minuty chůze od domu je vzdálena autobusová zastávka Spořilov (10 minut jízdy na stanici metra Budějovická). Velkou výhodou lokality je, že zde nejsou parkovací zóny.

Byt je volný k nastěhování od 01.05.2026.

Energetická třída: G (neuvedeno).

Parametry bytu

Cena
21 000 Kč /za měsíc
Poznámka k ceně
vratná jistota, náklady na bydlení 6099 Kč, poplatek za podnájem
Aktualizováno
10. 3. 2026
Adresa
Púchovská, Záběhlice - Praha 4
ID
N4739
Stavba
Cihlová
Stav objektu
Velmi dobrý
Patro
2. z 4
Vybaveno
Částečně
Typ objektu
Patrový
Lokalita objektu
Klidná část obce
Vlastnictví
Osobní
Užitná plocha
50 m2
Podlahová plocha
50 m2
Třída energetické náročnosti
G - Mimořádně nehospodárná
Elektřina
230V
Topení
Ústřední dálkové
Doprava
Vlak, Dálnice, Silnice, MHD, Autobus
Voda
Vodovod
Sklep
Výtah

Kontaktovat makléře

Máte zájem o tento byt?

Tímto, v souladu s nařízením Evropského parlamentu a Rady (EU) 2016/679, v platném znění, prohlašuji, že mi je alespoň 16 let a uděluji tak svůj souhlas se zpracováním zadaných údajů (jméno, telefon, e-mail, ip adresa) společnosti B3 Technology, s.r.o., IČ: 07330600, se sídlem Novostavby 126/23, 435 11 Lom (správce dat), za účelem předání dotazu z tohoto formuláře Vámi vybranému inzerentovi a zpětného kontaktování mé osoby. Osobní údaje bude správce zpracovávat manuálně i automaticky přímo prostřednictvím svých zaměstnanců. Informace předané tímto formulářem budou uloženy v databázi správce maximálně po dobu 10 let. Odvolání souhlasu s uložením a zpracováním poskytnutých dat lze e-mailem na info@vitio.cz. V případě podezření na neoprávněné použití Vámi poskytnutých údajů máte právo předat podnět k šetření Úřadu pro ochranu osobních údajů. Více informací
Chystáte se prodat nemovitost?
Pomůžeme Vám!

Inzerát si prohlédlo 0 lidí

Prodejce

Miloslava Kačerová

Miloslava Kačerová

Hlídací pes

Chcete dostávat emailem podobné nabídky pronájmu bytů 2+1 v Praze 4?

Podobné nemovitosti