Prodej rodinného domu, Rožmberk nad Vltavou, 198 m2 (ID: 2600594)

Rožmberk nad Vltavou

5 990 000 Kč /za nemovitost HYPOTÉKA od 26 772 Kč /za měsíc
Exkluzivní partneři v Rožmberku nad Vltavou

Výkup a prodej starého nábytku

Informace k domu

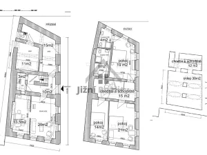
Nabízíme Vám k prodeji krásný rodinný dům o velikosti 4+1, který se nachází v atraktivní lokalitě a turisticky vyhledávaném prostředí Šumavy v obci Rožmberk nad Vltavou. Dům prošel v roce 2015 velmi zdařilou kompletní rekonstrukcí se zachováním původních stavebních prvku a je kulturní památkou.
Nemovitost má velice lukrativní polohu v centru obce a byl postaven v roce okolo roku 1850. Dům se nachází na vlastním pozemku o velikosti 130 m2, zastavěná plocha domu je 114 m2, užitná plocha je 198,5 m2, obytná 153,5 m2.
V nemovitosti se nachází krásný 30 m2 sklep + schodiště. V přízemí domu se nachází obývací pokoj, kuchyň, chodba se schodištěm, WC, sklad, zádveří a spíž. V prvním patře se nachází tři pokoje (dva s koupelnou a WC), dále koupelna s WC a chodba. V podkroví lze vybudovat ještě další pokoje.
Vytápění domu je krbovými kamny a přímotopy, ohřev vody - bojler. Elektrika 220/380, napojení na obecní vodovod, kanalizaci. Nemovitost je možné financovat hypotečním úvěrem. V nemovitosti dříve bydlel Jiří Šalamoun, autor Maxipsa Fíka. V případě jakýchkoliv Vašich dotazů, nebo by jste měli zájem o prohlídku, mne neváhejte kontaktovat.

Parametry domu

Cena
5 990 000 Kč /za nemovitost Spočítat hypotéku
Aktualizováno
5. 3. 2026
Adresa
Rožmberk nad Vltavou
ID
N00324
Stavba
Cihlová
Stav objektu
Po rekonstrukci
Druh objektu
Samostatný
Lokalita objektu
Centrum obce
Užitná plocha
198 m2
Zastavěná plocha
114 m2
Plocha pozemku
130 m2
Třída energetické náročnosti
G - Mimořádně nehospodárná
Elektřina
230V
Odpad
Veřejná kanalizace
Topení
Lokální tuhá paliva, Lokální elektrické
Doprava
Silnice, Autobus
Voda
Místní zdroj vody
Sklep
Bezbarierový přístup

Kontaktovat makléře

Realitní kancelář

Jižní reality s.r.o.

Lannov/3a tř. 1372, České Budějovice

Chystáte se prodat nemovitost?
Pomůžeme Vám!

Máte zájem o tento dům?

Tímto, v souladu s nařízením Evropského parlamentu a Rady (EU) 2016/679, v platném znění, prohlašuji, že mi je alespoň 16 let a uděluji tak svůj souhlas se zpracováním zadaných údajů (jméno, telefon, e-mail, ip adresa) společnosti B3 Technology, s.r.o., IČ: 07330600, se sídlem Novostavby 126/23, 435 11 Lom (správce dat), za účelem předání dotazu z tohoto formuláře Vámi vybranému inzerentovi a zpětného kontaktování mé osoby. Osobní údaje bude správce zpracovávat manuálně i automaticky přímo prostřednictvím svých zaměstnanců. Informace předané tímto formulářem budou uloženy v databázi správce maximálně po dobu 10 let. Odvolání souhlasu s uložením a zpracováním poskytnutých dat lze e-mailem na info@vitio.cz. V případě podezření na neoprávněné použití Vámi poskytnutých údajů máte právo předat podnět k šetření Úřadu pro ochranu osobních údajů. Více informací
Chystáte se prodat nemovitost?
Pomůžeme Vám!

Inzerát si prohlédlo 1 lidí

Prodejce

Jiří Plch

Jiří Plch

Hlídací pes

Chcete dostávat emailem podobné nabídky prodeje rodinných domů v Rožmberku nad Vltavou?

Podobné nemovitosti