Pronájem bytu 4+kk, Mokrá-Horákov - Mokrá, 127 m2 (ID: 2599923)

Mokrá-Horákov

35 000 Kč /za měsíc Získejte výhodnou HYPOTÉKU

(vratná jistota , náklady na bydlení 4727 Kč, poplatek za podnájem)

Exkluzivní partneři v Mokré

Informace k bytu

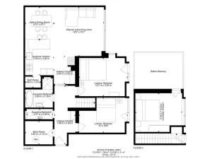
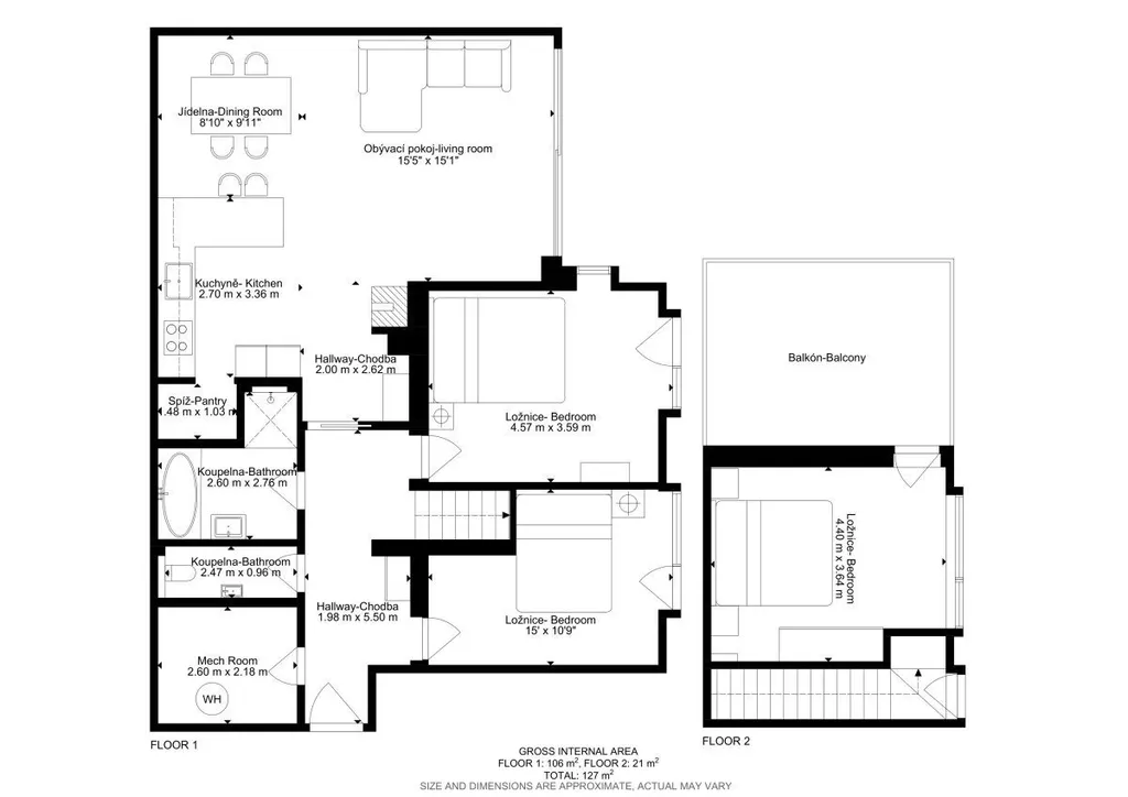
K dlouhodobému pronájmu nabízíme luxusní byt v krásném rodinném domě o celkové užitné ploše [127 m²] s prostornou terasou a zahradou o velikosti přibližně [250 m²]. Dům má dvě podlaží a k dispozici jsou také dvě parkovací stání přímo u nemovitosti. Nemovitost je částečně vybavená dle fotografií a nabízí velmi komfortní bydlení v klidném prostředí nedaleko Brna.

V prvním patře se nachází prostorný obývací pokoj propojený s kuchyňským koutem, jehož součástí je také sedací souprava. Kuchyňská linka je plně vybavena spotřebiči včetně myčky nádobí. Dále je zde koupelna s vanou a toaletou, technická místnost a dva samostatné pokoje vhodné například jako ložnice, dětský pokoj či pracovna. Ve druhém patře se nachází další pokoj a velká terasa, která poskytuje příjemné místo k relaxaci i posezení.

Dům se nachází v krásné a klidné lokalitě v blízkosti Brna s velmi dobrou dostupností do centra města. Autem se do centra dostanete přibližně za 15 minut, veřejnou dopravou (autobus a MHD) přibližně za 40 minut. V okolí je k dispozici základní občanská vybavenost, například pošta, mateřská škola, knihovna, koupaliště a další služby.

Dům je k dispozici od 1. 5. 2026.

První čtyři fotografie jsou vizualizace s nábytkem.

Byt pronajímá Ideální nájemce – služba, se kterou budete bydlet bezstarostně a za férových podmínek. Když se něco přihodí, k dispozici jsou správci, kteří s vámi vše vyřeší. Pomůžeme s veškerou administrativou, s nastavením plateb a zajistíme vám speciální pojištění. Pojďte bydlet s námi!

Parametry bytu

Cena
35 000 Kč /za měsíc
Poznámka k ceně
vratná jistota , náklady na bydlení 4727 Kč, poplatek za podnájem
Aktualizováno
16. 4. 2026
Adresa
Mokrá-Horákov
ID
N6099
Stavba
Cihlová
Stav objektu
Velmi dobrý
Patro
1. z 2
Vybaveno
Částečně
Typ objektu
Patrový
Lokalita objektu
Klidná část obce
Vlastnictví
Osobní
Užitná plocha
127 m2
Podlahová plocha
127 m2
Plocha zahrady
125 m2
Třída energetické náročnosti
B - Velmi úsporná
Elektřina
230V
Výtah
Parkování

Kontaktovat makléře

Máte zájem o tento byt?

Tímto, v souladu s nařízením Evropského parlamentu a Rady (EU) 2016/679, v platném znění, prohlašuji, že mi je alespoň 16 let a uděluji tak svůj souhlas se zpracováním zadaných údajů (jméno, telefon, e-mail, ip adresa) společnosti B3 Technology, s.r.o., IČ: 07330600, se sídlem Novostavby 126/23, 435 11 Lom (správce dat), za účelem předání dotazu z tohoto formuláře Vámi vybranému inzerentovi a zpětného kontaktování mé osoby. Osobní údaje bude správce zpracovávat manuálně i automaticky přímo prostřednictvím svých zaměstnanců. Informace předané tímto formulářem budou uloženy v databázi správce maximálně po dobu 10 let. Odvolání souhlasu s uložením a zpracováním poskytnutých dat lze e-mailem na info@vitio.cz. V případě podezření na neoprávněné použití Vámi poskytnutých údajů máte právo předat podnět k šetření Úřadu pro ochranu osobních údajů. Více informací
Chystáte se prodat nemovitost?
Pomůžeme Vám!

Inzerát si prohlédlo 6 lidí

Prodejce

Miloslava Kačerová

Miloslava Kačerová

Hlídací pes

Chcete dostávat emailem podobné nabídky pronájmu bytů 4+kk v Mokré?

Podobné nemovitosti