Pronájem bytu 1+kk, Praha - Vinohrady, Soběslavská, 20 m2

Soběslavská, Vinohrady - Praha 3

14 000 Kč /za měsíc Získejte výhodnou HYPOTÉKU

(vratná jistota, náklady na bydlení 4 512 Kč, poplatek za podnájem)

Exkluzivní partneři v Praze 3

Stěhovací služby

Výkup a prodej starého nábytku

Informace k bytu

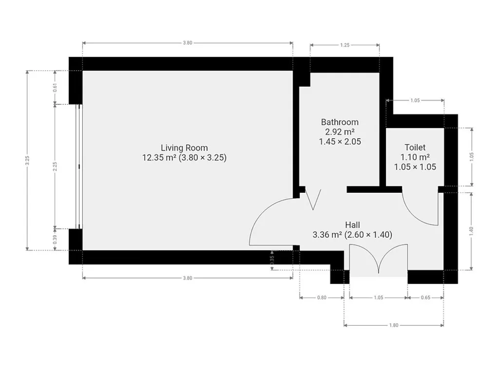
Nabízíme k podnájmu vybavený byt 1+kk o velikosti 20 m², který se nachází ve 3. patře cihlového domu s výtahem. Byt je ideální pro jednotlivce nebo pár hledající klidné bydlení v atraktivní lokalitě s výbornou dopravní dostupností.

Při vstupu do bytu je k dispozici menší šatní skříň a botník. Hlavní obytná místnost je propojena s kuchyňským koutem, kde se nachází trouba, varná deska, varná konvice a lednice. V pokoji jsou praktické úložné skříňky a rozkládací sedací souprava vhodná ke každodennímu spaní.

Byt se nachází v žádané lokalitě pražských Vinohrad. Stanice metra A – Želivského je vzdálena 4 minuty chůze, tramvajová zastávka Olšanské hřbitovy je taktéž do 4 minut. Obchodní centrum Flora je vzdálené cca 15 minut chůze. V okolí najdete množství kaváren, restaurací a obchodů.

Byt je volný od 01.06.2026.

Uvedena energetická kategorie G, jelikož nemáme k dispozici PENB.

Byt pronajímá Ideální nájemce - služba, se kterou budete bydlet bezstarostně a za férových podmínek. Když se něco přihodí, k dispozici jsou správci, kteří s vámi vše vyřeší. Pomůžeme s veškerou administrativou, s nastavením plateb a zajistíme vám speciální pojištění. Pojďte bydlet s námi!

Parametry bytu

Cena
14 000 Kč /za měsíc
Poznámka k ceně
vratná jistota, náklady na bydlení 4 512 Kč, poplatek za podnájem
Aktualizováno
2. 3. 2026
Adresa
Soběslavská, Vinohrady - Praha 3
ID
N6458
Stavba
Cihlová
Stav objektu
Dobrý
Patro
3. z 7
Vybaveno
Částečně
Typ objektu
Patrový
Lokalita objektu
Klidná část obce
Vlastnictví
Osobní
Užitná plocha
20 m2
Podlahová plocha
20 m2
Třída energetické náročnosti
G - Mimořádně nehospodárná
Elektřina
230V
Topení
Ústřední elektrické
Doprava
Vlak, Dálnice, Silnice, MHD, Autobus
Výtah

Kontaktovat makléře

Máte zájem o tento byt?

Tímto, v souladu s nařízením Evropského parlamentu a Rady (EU) 2016/679, v platném znění, prohlašuji, že mi je alespoň 16 let a uděluji tak svůj souhlas se zpracováním zadaných údajů (jméno, telefon, e-mail, ip adresa) společnosti B3 Technology, s.r.o., IČ: 07330600, se sídlem Novostavby 126/23, 435 11 Lom (správce dat), za účelem předání dotazu z tohoto formuláře Vámi vybranému inzerentovi a zpětného kontaktování mé osoby. Osobní údaje bude správce zpracovávat manuálně i automaticky přímo prostřednictvím svých zaměstnanců. Informace předané tímto formulářem budou uloženy v databázi správce maximálně po dobu 10 let. Odvolání souhlasu s uložením a zpracováním poskytnutých dat lze e-mailem na info@vitio.cz. V případě podezření na neoprávněné použití Vámi poskytnutých údajů máte právo předat podnět k šetření Úřadu pro ochranu osobních údajů. Více informací
Chystáte se prodat nemovitost?
Pomůžeme Vám!

Inzerát si prohlédlo 0 lidí

Prodejce

Miloslava Kačerová

Miloslava Kačerová

Hlídací pes

Chcete dostávat emailem podobné nabídky pronájmu bytů 1+kk v Praze 3?

Podobné nemovitosti