Soccer reality

Pronájem bytu 4+kk, Praha - Kbely, Semilská, 112 m2

Semilská, Kbely - Praha 19

37 000 Kč /za měsíc Získejte výhodnou HYPOTÉKU

(vratná jistota, náklady na bydlení 7.200,-Kč poplatek za podnájem)

Exkluzivní partneři v Praze 9

Stěhovací služby

Výkup a prodej starého nábytku

Informace k bytu

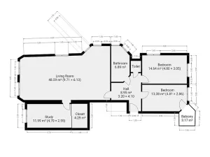
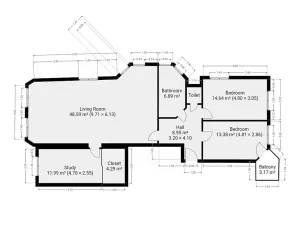
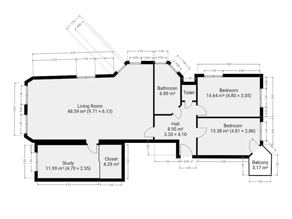
K dlouhodobému podnájmu Vám nabízíme krásný, plně vybavený byt o dispozici 4kk a výměrou nadstandartních 112m2 s vlastním garážovým stáním.

Byt se nachází ve 2. patře cihlového domu v pražských Kbelích. Skládá se z velké centrální chodby, ložnice se vstupem na balkón, dětského pokoje, velmi prostorné, samostatné koupelny s vanou, dvěma umyvadly a pračkou a oddělenou toaletou.

V bytě je dále velký obývací pokoj společný s kuchyňským koutem a pracovna / pokoj pro hosty, který navazuje na velmi prostornou šatnu.

Prakticky řešená kuchyně ve tvaru "U" je zařízena ve vysokém standardu, všemi vestavnými spotřebiči - myčka, lednice, varná deska, trouba, mikrovlnná trouba a digestoř. Kuchyně je velmi prakticky řešená s nadstandartním množstvím úložného prostoru.

K bytu také náleží garážové parkovací stání.

Byt se nachází ve velmi klidné lokalitě, s veškerou občanskou vybaveností na dosah. Základní i mateřská škola je od domu necelých 5 minut chůze. Autobusová zastávka poté dvě minuty.

Ve Kbelích také najdete kompletní občanskou vybavenost, několik menších obchodů s potravinami, dětská hřiště, sportovní i turistické vyžití.

Byt je k dispozici od 1.5.

Zálohové platby už obsahují zálohy na elektřinu a pojištění domácnosti.

Parametry bytu

Cena
37 000 Kč /za měsíc
Poznámka k ceně
vratná jistota, náklady na bydlení 7.200,-Kč poplatek za podnájem
Aktualizováno
25. 2. 2026
Adresa
Semilská, Kbely - Praha 19
ID
N5243
Stavba
Cihlová
Stav objektu
Velmi dobrý
Patro
2. z 4
Vybaveno
Ano
Typ objektu
Patrový
Lokalita objektu
Okraj obce
Vlastnictví
Osobní
Užitná plocha
112 m2
Podlahová plocha
112 m2
Třída energetické náročnosti
C - Úsporná
Elektřina
230V
Topení
Ústřední dálkové
Doprava
Vlak, Dálnice, Silnice, MHD, Autobus
Balkon
Garáž
Výtah
Bezbarierový přístup
Parkování

Kontaktovat makléře

Máte zájem o tento byt?

Tímto, v souladu s nařízením Evropského parlamentu a Rady (EU) 2016/679, v platném znění, prohlašuji, že mi je alespoň 16 let a uděluji tak svůj souhlas se zpracováním zadaných údajů (jméno, telefon, e-mail, ip adresa) společnosti B3 Technology, s.r.o., IČ: 07330600, se sídlem Novostavby 126/23, 435 11 Lom (správce dat), za účelem předání dotazu z tohoto formuláře Vámi vybranému inzerentovi a zpětného kontaktování mé osoby. Osobní údaje bude správce zpracovávat manuálně i automaticky přímo prostřednictvím svých zaměstnanců. Informace předané tímto formulářem budou uloženy v databázi správce maximálně po dobu 10 let. Odvolání souhlasu s uložením a zpracováním poskytnutých dat lze e-mailem na info@vitio.cz. V případě podezření na neoprávněné použití Vámi poskytnutých údajů máte právo předat podnět k šetření Úřadu pro ochranu osobních údajů. Více informací
Chystáte se prodat nemovitost?
Pomůžeme Vám!

Inzerát si prohlédlo 1 lidí

Prodejce

Miloslava Kačerová

Miloslava Kačerová

Hlídací pes

Chcete dostávat emailem podobné nabídky pronájmu bytů 4+kk v Praze 9?

Podobné nemovitosti