Pronájem bytu 2+1, Ostrava, Otakara Jeremiáše, 57 m2

Otakara Jeremiáše, Ostrava, Poruba

13 000 Kč /za měsíc Získejte výhodnou HYPOTÉKU

(Cena nájmu BEZ služeb, kauce a provize)

Exkluzivní partneři v Ostravě

Informace k bytu

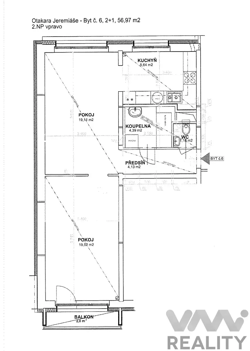
Nabízíme pronájem bytu 2+1 o celkové ploše 57 m2 s lodžií ve II. NP (1. poschodí) v domě na ulici Otakara Jeremiáše v Ostravě-Porubě. Byt je po kompletní rekonstrukci. Kuchyň je vybavená linkou, kdy součástí je kombinovaný sporák, digestoř, myčka a lednice. Koupelna a toaleta jsou oddělené, v koupelně je vana. K dispozici je sklepní kóje.

Podlahy v bytě jsou v kombinaci plovoucí podlaha a dlažba, celý byt má stropní světla a na oknech jsou žaluzie. Byt je velmi hezký, světlý, nachází se v klidné lokalitě Poruby ve směru na Opavu v blízkosti nákupního centra Globus.

Cena za nájem je 13.000,- Kč bez záloh na služby spojených s užíváním bytu, které se pohybují ve výši cca 4.500,- za měsíc (teplo-dálkové od Veolia, teplá a studená voda, elektřina pro byt, plyn-vaření, úklid a elektřina společných prostor, internet). Vratná kauce/jistota je stanovena ve výši 30.000,- Kč a provize 13.000,- Kč.

Nabízíme možnost dlouhodobého pronájmu, jedná se o nájemní bydlení, kdy pronajímatel je vlastník domu.

K dispozici ihned.

V případě jakýchkoliv dotazů nás kontaktujte, doporučujeme prohlídku.

Parametry bytu

Cena
13 000 Kč /za měsíc
Poznámka k ceně
Cena nájmu BEZ služeb, kauce a provize
Aktualizováno
25. 2. 2026
Adresa
Otakara Jeremiáše, Ostrava, Poruba
ID
0371
Stavba
Panelová
Stav objektu
Velmi dobrý
Patro
2. z 4
Vybaveno
Ne
Vlastnictví
Osobní
Užitná plocha
57 m2
Podlahová plocha
57 m2
Třída energetické náročnosti
C - Úsporná
Elektřina
230V
Odpad
Veřejná kanalizace
Komunikace
Asfaltová
Doprava
Silnice, MHD, Autobus
Voda
Vodovod
Topné těleso
Radiátory
Zdroj topení
Ústřední dálkové
Sklep
Lodžie

Kontaktovat makléře

Máte zájem o tento byt?

Tímto, v souladu s nařízením Evropského parlamentu a Rady (EU) 2016/679, v platném znění, prohlašuji, že mi je alespoň 16 let a uděluji tak svůj souhlas se zpracováním zadaných údajů (jméno, telefon, e-mail, ip adresa) společnosti B3 Technology, s.r.o., IČ: 07330600, se sídlem Novostavby 126/23, 435 11 Lom (správce dat), za účelem předání dotazu z tohoto formuláře Vámi vybranému inzerentovi a zpětného kontaktování mé osoby. Osobní údaje bude správce zpracovávat manuálně i automaticky přímo prostřednictvím svých zaměstnanců. Informace předané tímto formulářem budou uloženy v databázi správce maximálně po dobu 10 let. Odvolání souhlasu s uložením a zpracováním poskytnutých dat lze e-mailem na info@vitio.cz. V případě podezření na neoprávněné použití Vámi poskytnutých údajů máte právo předat podnět k šetření Úřadu pro ochranu osobních údajů. Více informací
Chystáte se prodat nemovitost?
Pomůžeme Vám!

Inzerát si prohlédlo 0 lidí

Prodejce

Lenka Bernatíková

Lenka Bernatíková

Hlídací pes

Chcete dostávat emailem podobné nabídky pronájmu bytů 2+1 v Ostravě?

Podobné nemovitosti