Prodej bytu 3+kk, Frýdek-Místek - Místek, Karla Hynka Máchy, 81 m2

Karla Hynka Máchy, Frýdek-Místek

6 000 000 Kč /za nemovitost HYPOTÉKA od 26 816 Kč /za měsíc
Exkluzivní partneři v Frýdku-Místku

Informace k bytu

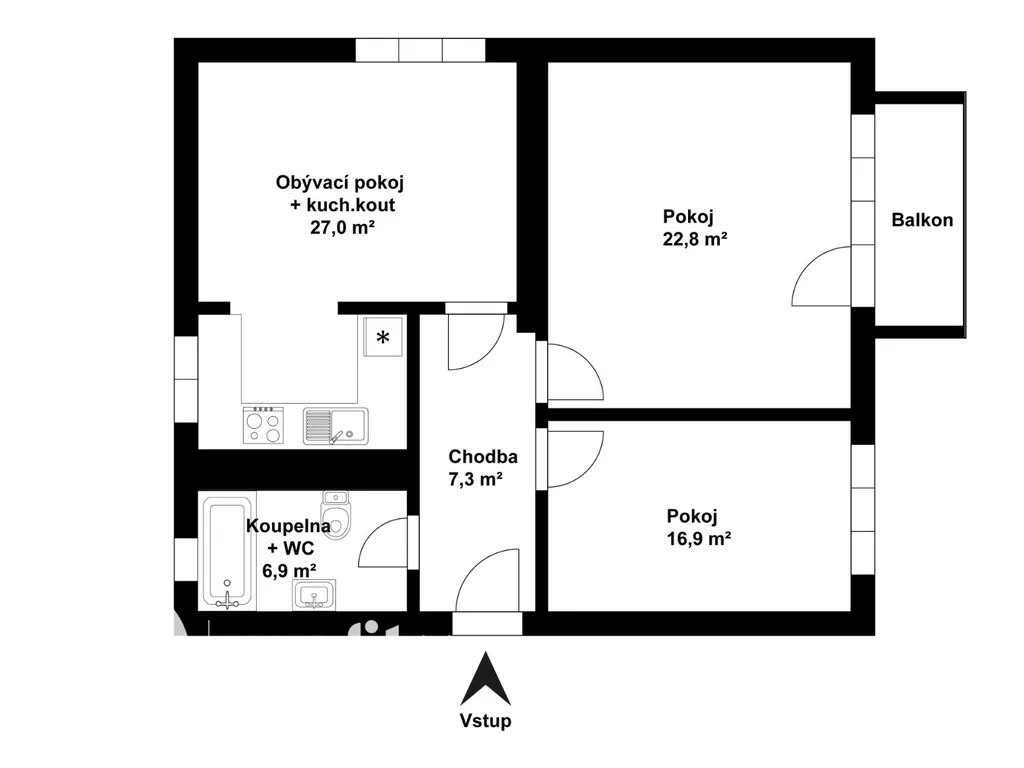
Prostorný 3+kk (81 m²) s balkonem v cihlovém domě po revitalizaci – Karla Hynka Máchy, Frýdek-Místek

Hledáte byt, který má „to, co lidé chtějí“? Poctivá cihlová zástavba, klidný dům po revitalizaci (zateplení, plastová okna) a k tomu velkorysá výměra 81 m² – přesně takový si nyní můžete koupit.

Byt prošel kompletní rekonstrukcí, elektroinstalace v mědi, sadrokartonové podhledy, led osvětlení, nové omítky, sanita, zkrátka vše je hotové a ve stavu jako nové.

Dispozice je řešena jako 3+kk, nachází se v 1. podlaží, pokoje jsou neprůchozí, takže každý člen domácnosti má své soukromí. Jako příjemný bonus je tu balkon.

Interiér je laděný do elegantního a nadčasového stylu bílá / dub – působí čistě, útulně a moderně, a zároveň se snadno doladí jakýmkoli nábytkem a doplňky. Byt má příjemnou atmosféru, kde se budete cítit doma hned po příchodu.

Lokalita? Tady je to o pohodlí. Doslova pár metrů od domu máte řeku a cyklostezku – ideální na procházky, běh nebo kolo. A stejně tak pár metrů je i nákupní středisko FRÝDA, takže každodenní nákupy vyřídíte během chvilky. Celkově je tu skvělá dostupnost služeb i města pěšky během pár minut.

Parkování je před domem, jako běžně v lokalitě.

Shrnutí hlavních benefitů:

+ dispozice 3+kk
+ 81 m² + balkon
+ cihlový dům po revitalizaci (zateplení, plastová okna)
+ 1. podlaží
+ neprůchozí pokoje
+ moderní dekor bílá / dub
+ řeka, cyklostezka, nákupní centrum FRÝDA doslova pár metrů od domu - vše důležité v docházkové vzdálenosti !

Pokud chcete byt, který spojuje prostor, praktičnost a perfektní polohu pro každodenní život i volný čas, tohle je velmi silný kandidát. Pro více informací a domluvení prohlídky mě neváhejte kontaktovat.

Parametry bytu

Cena
6 000 000 Kč /za nemovitost Spočítat hypotéku
Aktualizováno
24. 2. 2026
Adresa
Karla Hynka Máchy, Frýdek-Místek
ID
1858
Stavba
Cihlová
Stav objektu
Po rekonstrukci
Patro
1. z 4
Vlastnictví
Osobní
Užitná plocha
81 m2
Třída energetické náročnosti
G - Mimořádně nehospodárná
Elektřina
230V
Odpad
Veřejná kanalizace
Komunikace
Asfaltová
Doprava
Vlak, Dálnice, Silnice, MHD, Autobus
Voda
Vodovod
Balkon

Kontaktovat makléře

Máte zájem o tento byt?

Tímto, v souladu s nařízením Evropského parlamentu a Rady (EU) 2016/679, v platném znění, prohlašuji, že mi je alespoň 16 let a uděluji tak svůj souhlas se zpracováním zadaných údajů (jméno, telefon, e-mail, ip adresa) společnosti B3 Technology, s.r.o., IČ: 07330600, se sídlem Novostavby 126/23, 435 11 Lom (správce dat), za účelem předání dotazu z tohoto formuláře Vámi vybranému inzerentovi a zpětného kontaktování mé osoby. Osobní údaje bude správce zpracovávat manuálně i automaticky přímo prostřednictvím svých zaměstnanců. Informace předané tímto formulářem budou uloženy v databázi správce maximálně po dobu 10 let. Odvolání souhlasu s uložením a zpracováním poskytnutých dat lze e-mailem na info@vitio.cz. V případě podezření na neoprávněné použití Vámi poskytnutých údajů máte právo předat podnět k šetření Úřadu pro ochranu osobních údajů. Více informací
Chystáte se prodat nemovitost?
Pomůžeme Vám!

Inzerát si prohlédlo 2 lidí

Prodejce

Karina Marešová

Karina Marešová

Hlídací pes

Chcete dostávat emailem podobné nabídky prodeje bytů 3+kk v Frýdku-Místku?

Podobné nemovitosti