Pronájem bytu 1+kk, Praha - Uhříněves, Douchova, 32 m2

Douchova, Praha 10 - Uhříněves

17 000 Kč /za měsíc Získejte výhodnou HYPOTÉKU

(zálohy 2500 Kč + elektřina, jistota 17 000 Kč, včetně DPH, bez poplatků, + provize RK, včetně právního servisu, cena k jednání)

Exkluzivní partneři v Praze 10

Stěhovací služby

Výkup a prodej starého nábytku

Informace k bytu

Pronájem nového bytu 1+kk 32 m² s terasou, sklepem a parkovacím místem, Praha - Uhříněves

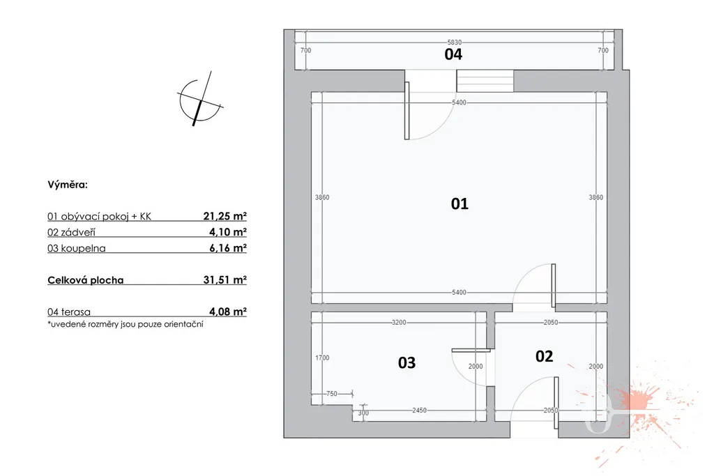
V Douchově ulici v pražské Uhříněvsi vznikl prostor, který dává smysl těm, kdo hledají klid a funkčnost v jednom. Jednopokojový byt se nachází v novostavbě a působí čistě, vzdušně a velmi příjemně.

Hlavní obytná část je propojena s kuchyňským koutem vybaveným varnou deskou, troubou a digestoří. Podlahové vytápění zajišťuje komfort v chladnějších měsících, předokenní rolety zase soukromí a příjemnou regulaci světla.

Na obytný prostor navazuje malá terasa – ideální místo na ranní kávu nebo tiché zakončení dne. K bytu patří také sklep a vlastní parkovací stání, což výrazně zpříjemňuje každodenní užívání.

Lokalita je klidná a rezidenční. Vlaková zastávka je vzdálena přibližně 8 minut chůze. Základní potraviny a menší obchody jsou dostupné během několika minut pěšky, větší nákupy pak pohodlně v rámci Uhříněvsi.

Měsíční nájemné činí 17 000 Kč, zálohy na služby 2 500 Kč měsíčně a elektřina se převádí na nájemníka.
Pro úspěšný start v novém bydlení bude Vaše celková prvotní investice představovat 53 500 Kč, zahrnující první nájemné se zálohami, vratnou jistotu a provizi.

Nabízím Vám bydlení, které je současné, praktické a zároveň klidné.

Těším se na prohlídku, při níž Vám byt ráda představím.

Parametry bytu

Cena
17 000 Kč /za měsíc
Poznámka k ceně
zálohy 2500 Kč + elektřina, jistota 17 000 Kč, včetně DPH, bez poplatků, + provize RK, včetně právního servisu, cena k jednání
Aktualizováno
24. 2. 2026
Adresa
Douchova, Praha 10 - Uhříněves
ID
00020
Stavba
Smíšená
Stav objektu
Novostavba
Lokalita objektu
Klidná část obce
Vlastnictví
Osobní
Užitná plocha
32 m2
Třída energetické náročnosti
B - Velmi úsporná
Ukazatel energetické náročnosti
74 kWh/m2 za rok

Kontaktovat makléře

Realitní kancelář

Hana Čermín Kaslová

U Hostavického potoka 830/24, Praha 9

Chystáte se prodat nemovitost?
Pomůžeme Vám!

Máte zájem o tento byt?

Tímto, v souladu s nařízením Evropského parlamentu a Rady (EU) 2016/679, v platném znění, prohlašuji, že mi je alespoň 16 let a uděluji tak svůj souhlas se zpracováním zadaných údajů (jméno, telefon, e-mail, ip adresa) společnosti B3 Technology, s.r.o., IČ: 07330600, se sídlem Novostavby 126/23, 435 11 Lom (správce dat), za účelem předání dotazu z tohoto formuláře Vámi vybranému inzerentovi a zpětného kontaktování mé osoby. Osobní údaje bude správce zpracovávat manuálně i automaticky přímo prostřednictvím svých zaměstnanců. Informace předané tímto formulářem budou uloženy v databázi správce maximálně po dobu 10 let. Odvolání souhlasu s uložením a zpracováním poskytnutých dat lze e-mailem na info@vitio.cz. V případě podezření na neoprávněné použití Vámi poskytnutých údajů máte právo předat podnět k šetření Úřadu pro ochranu osobních údajů. Více informací
Chystáte se prodat nemovitost?
Pomůžeme Vám!

Inzerát si prohlédlo 1 lidí

Prodejce

Hana Čermín Kaslová

Hana Čermín Kaslová

Hlídací pes

Chcete dostávat emailem podobné nabídky pronájmu bytů 1+kk v Praze 10?

Podobné nemovitosti