Pronájem bytu 2+1, Lanškroun, Zborovská, 57 m2

Zborovská, Lanškroun, Žichlínské Předměstí

7 436 Kč /za měsíc Získejte výhodnou HYPOTÉKU
Exkluzivní partneři v Lanškrouně

Informace k bytu

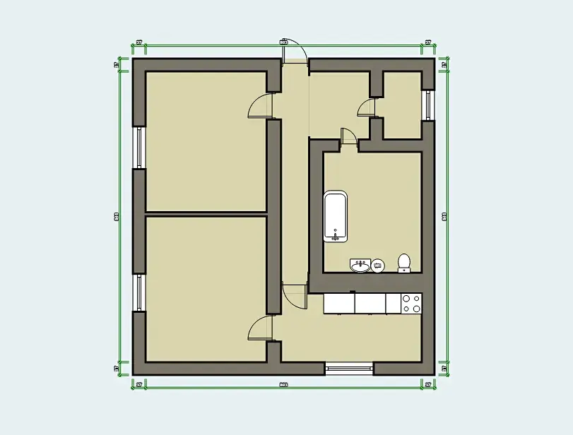
Dovolujeme si Vám nabídnout k pronájmu byt o dispozici 2+1, nacházející se v klidné části města Lanškroun. Jedná se o byt ve druhém patře cihlového domu, který je po kompletní rekonstrukci.

Byt disponuje užitnou plochou 57 m2, což poskytuje dostatek prostoru pro pohodlné bydlení. Součástí pronájmu je také sklep o ploše 12 m2, který nabízí další úložné možnosti pro vaše osobní věci. Byt se nachází ve vlastnictví státní/obecní, což může být výhodou pro mnoho nájemníků.

S nastěhováním je možné počítat od 1. dubna 2026, takže máte dostatek času na přípravu na přesun do nového domova. Pro zájemce je připravena možnost prohlídky 11.března 2026.

Žadatelem o nájem bytu v majetku Města Lanškroun může být osoba, která:

je starší 18 let
je občanem České republiky a má trvalý pobyt na území města Lanškroun (k.ú. Lanškroun a Dolní Třešňovec) v délce minimálně 3 roky, nebo je v pracovním poměru u zaměstnavatele se sídlem či provozovnou na území města Lanškroun (nutno doložit potvrzením od zaměstnavatele) a to déle než 3 měsíce ke dni podání přihlášky
je občanem České republiky a má trvalý pobyt  ve správním obvodu obce s rozšířenou působností Lanškroun v délce minimálně 3 roky
je příslušníkem jiného členského státu Evropské unie a má v České republice potvrzen přechodný pobyt a místo pobytu hlášeno na území města Lanškroun v délce 3 roky nebo je zaměstnán u zaměstnavatele se sídlem či provozovnou na území města Lanškroun a to déle než 3 měsíce ke dni podání přihlášky
je příslušníkem jiného členského státu Evropské unie a má v České republice potvrzen přechodný pobyt a místo pobytu hlášeno ve správním obvodu obce s rozšířenou působností Lanškroun  v  délce minimálně 3 roky.
nemá žádné vlastnické nebo spoluvlastnické a jemu obdobné právo k bytu, k bytovému domu nebo rodinnému domu a ani je neužívá právem odpovídající věcnému břemeni
je bezdlužná vůči městu a jeho organizacím

Parametry bytu

Cena
7 436 Kč /za měsíc
Aktualizováno
23. 2. 2026
Adresa
Zborovská, Lanškroun, Žichlínské Předměstí
Stavba
Cihlová
Stav objektu
Dobrý
Patro
2.
Vlastnictví
Státní/obecní
Užitná plocha
57 m2
Sklep

Kontaktovat makléře

Máte zájem o tento byt?

Tímto, v souladu s nařízením Evropského parlamentu a Rady (EU) 2016/679, v platném znění, prohlašuji, že mi je alespoň 16 let a uděluji tak svůj souhlas se zpracováním zadaných údajů (jméno, telefon, e-mail, ip adresa) společnosti B3 Technology, s.r.o., IČ: 07330600, se sídlem Novostavby 126/23, 435 11 Lom (správce dat), za účelem předání dotazu z tohoto formuláře Vámi vybranému inzerentovi a zpětného kontaktování mé osoby. Osobní údaje bude správce zpracovávat manuálně i automaticky přímo prostřednictvím svých zaměstnanců. Informace předané tímto formulářem budou uloženy v databázi správce maximálně po dobu 10 let. Odvolání souhlasu s uložením a zpracováním poskytnutých dat lze e-mailem na info@vitio.cz. V případě podezření na neoprávněné použití Vámi poskytnutých údajů máte právo předat podnět k šetření Úřadu pro ochranu osobních údajů. Více informací
Chystáte se prodat nemovitost?
Pomůžeme Vám!

Inzerát si prohlédlo 3 lidí

Prodejce

Michaela Vídeňská

Michaela Vídeňská

Hlídací pes

Chcete dostávat emailem podobné nabídky pronájmu bytů 2+1 v Lanškrouně?

Podobné nemovitosti