Pronájem bytu 3+kk, Srubec - Stará Pohůrka, Dolní, 135 m2

Dolní, Srubec, Stará Pohůrka

26 000 Kč /za měsíc Získejte výhodnou HYPOTÉKU

(+ 5.000, Kč zálohy na služby včetně EI pro byt)

Exkluzivní partneři v Srubci

Výkup a prodej starého nábytku

Informace k bytu

Pronájem bytu 3+kk s terasou a parkováním, České Budějovice

Luxus s výhledem na celé město. Západy slunce se sklenkou vína pozorované z pohodlí terasy bytu 3+kk, který nabízí 135 m² užitné plochy. Pokud máte rádi prostor a moderní bydlení jste tady správně.
Nabízíme k pronájmu byt 3+kk o celkové ploše 135 m², který se nachází ve 3. NP novostavby bytového domu na Staré Pohůrce v Českých Budějovicích.

• pronájem bytu 3+kk s terasou o celkové ploše 135 m²
• luxusní bydlení s výhledem na celé město
• částečně vybavený interiér
• design a technologie
• dvě vyhrazená parkovací stání
• výborná dopravní dostupnost
Jen obytný prostor nabízí 48 m² podlahové plochy, takže máte takový běžný byt 2+kk jen v obýváku. Tady se prostě mačkat nebudete.
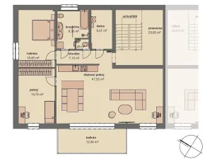
Přístup k hlavnímu vchodu bytového domu je řešen ze zadní zahrádky. Dále po krátkém vnitřním schodišti ke vstupním dveřím bytu. Vstupujeme do otevřené galerie s pracovnou (20,65 m²). Navazující chodba zajištuje vstup do již zmíněného obytného prostoru s kuchyňským koutem (47,55 m²) a přímým vstupem na terasu (13 m²). Kuchyně je vybavena moderní kuchyňskou linou, barovým pultem a v obytném prostoru se nachází sedací souprava a další vybavení. Z obytného prostoru je přístupný pokoj (15,75 m²). Z chodby je vstup do koupelny (8,30 m²), samostatné WC místnosti, šatny (6,57 m²) a ložnice (16,45 m²). Koupelna je vybavena vanou, sprchovým koutem s WalkIn zástěnou, umyvadlem, toaletou a pračkou. V ložnici i v pokoji se nachází dvoulůžkové postele a skříně.
Byt je vytápěn vlastním plynovým kotlem a nechybí řízené větrání s rekuperací tepla. Dvě parkovací stání k bytu jsou vyhrazena na přilehlém parkovišti.
Lokalita samotná je klidným místem v zástavbě rodinných domů. V docházkové vzdálenosti se nachází obchod a zastávky MHD. V okolí jsou mateřské a základní školy. Autem jste za dvě minuty na nájezdu D3, ale díky tunelu Pohůrka nemáte o dálnici ani ponětí.
Výše měsíčního nájemného činní 26.000, Kč, zálohy na služby 5.000, Kč. Vratná kauce ve výši dvou čistých měsíčních nájmů. Odměna za zprostředkování 26.000, Kč plus DPH 21%.

Parametry bytu

Cena
26 000 Kč /za měsíc
Poznámka k ceně
+ 5.000, Kč zálohy na služby včetně EI pro byt
Aktualizováno
20. 2. 2026
Adresa
Dolní, Srubec, Stará Pohůrka
ID
974917
Stavba
Cihlová
Stav objektu
Novostavba
Vybaveno
Částečně
Vlastnictví
Osobní
Užitná plocha
135 m2
Třída energetické náročnosti
G - Mimořádně nehospodárná

Kontaktovat makléře

Realitní kancelář

CENTURY 21 Facon Reality

Brigádnická 1723/4, České Budějovice

Chystáte se prodat nemovitost?
Pomůžeme Vám!

Máte zájem o tento byt?

Tímto, v souladu s nařízením Evropského parlamentu a Rady (EU) 2016/679, v platném znění, prohlašuji, že mi je alespoň 16 let a uděluji tak svůj souhlas se zpracováním zadaných údajů (jméno, telefon, e-mail, ip adresa) společnosti B3 Technology, s.r.o., IČ: 07330600, se sídlem Novostavby 126/23, 435 11 Lom (správce dat), za účelem předání dotazu z tohoto formuláře Vámi vybranému inzerentovi a zpětného kontaktování mé osoby. Osobní údaje bude správce zpracovávat manuálně i automaticky přímo prostřednictvím svých zaměstnanců. Informace předané tímto formulářem budou uloženy v databázi správce maximálně po dobu 10 let. Odvolání souhlasu s uložením a zpracováním poskytnutých dat lze e-mailem na info@vitio.cz. V případě podezření na neoprávněné použití Vámi poskytnutých údajů máte právo předat podnět k šetření Úřadu pro ochranu osobních údajů. Více informací
Chystáte se prodat nemovitost?
Pomůžeme Vám!

Inzerát si prohlédlo 0 lidí

Prodejce

Aleš Facon

Aleš Facon

Hlídací pes

Chcete dostávat emailem podobné nabídky pronájmu bytů 3+kk v Srubci?

Podobné nemovitosti