Prodej rodinného domu, Třinec - Konská, 133 m2

Třinec, Konská

8 190 000 Kč HYPOTÉKA od 36 604 Kč /za měsíc

(včetně provize RK)

Exkluzivní partneři v Třinci

Informace k domu

Prodej dům Rodinný, 133m², Třinec, Konská

Představujeme vám rodinný dům se zahradou, který se nachází v klidné lokalitě města Třince-Konská. Tento dům vás okouzlí nejen svou polohou, ale i moderním interiérem, který prošel kompletní rekonstrukcí. Můžete se rovnou nastěhovat a začít si užívat pohodlí, který tento domov nabízí.

Kuchyň je srdcem tohoto domu, vybavená moderní kuchyňskou linkou v atraktivních barvách a vestavěnými spotřebiči, včetně velké myčky Philco, kvalitní trouby De Dietrich a mikrovlnné trouby stejné značky. Interiér je laděn do příjemných zemitých tónů, což vytváří hřejivou atmosféru, ve které se budete cítit jako doma.

Zahrada je prostorná a nabízí vzrostlé stromy, které zajišťují potřebné soukromí. Najdete zde vybudované posezení, zahradní domek pro úschovu zahradních potřeb, použitelný skleník a studnu s užitkovou vodou, což z ní činí ideální místo pro relaxaci a rodinné aktivity.

Dům se nachází v zastavěné části obce Konská, kde máte vše potřebné na dosah ruky. Zastávka autobusu je vzdálena pouhých 7 minut pěší chůze (470 m), základní a mateřská škola 10 minut (600 m), letní koupaliště 15 minut (900 m) a restaurace jen 1 km daleko. Do nejbližších měst, jako je Český Těšín (11 km, 16 min) a Třinec (4 km, 8 min), se dostanete snadno autem, a sjezd na dálnici je vzdálen pouze 4 km.

Základní informace:

Kolaudace r. 1970

Kompletní rekonstrukce r. 2025

Zastavěná plocha domu 91 m²

Užitná plocha 133 m²

Zahrada o výměře 887 m²

Garáž má výměru 27 m²

Vytápění je řešeno podlahovým topením pomocí kotle s průtokovým ohřevem vody značky BAXI.


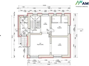
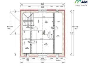
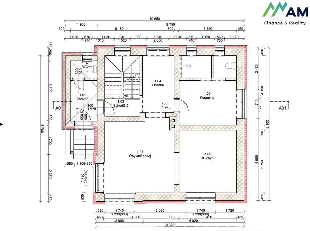
Dispozice domu:

1. PP schodiště, kotelnu a garáž (58 m²)

1. NP zádveří, WC, schodiště, chodbu, koupelnu s WC, obývací pokoj a kuchyň (65 m²)

2. NP schodiště, šatna I, pokoj, šatna II, ložnice (68 m²)


Napojení domu:

elektřina, plyn, vodovod, kanalizace, což zajišťuje komfortní a bezproblémové bydlení.


Neváhejte a přijďte se podívat na tento krásný rodinný dům, který může být vaším novým domovem.

Najdeme pro vás i vhodné financování dle vašich potřeb prostřednictvím hypotečního specialisty s dlouholetou praxí.

Parametry domu

Cena
8 190 000 Kč Spočítat hypotéku
Poznámka k ceně
včetně provize RK
Aktualizováno
18. 2. 2026
Adresa
Třinec, Konská
ID
1807
Stavba
Cihlová
Stav objektu
Po rekonstrukci
Vybaveno
Částečně
Druh objektu
Samostatný
Lokalita objektu
Klidná část obce
Užitná plocha
133 m2
Zastavěná plocha
91 m2
Plocha pozemku
887 m2
Třída energetické náročnosti
C - Úsporná

Kontaktovat makléře

Máte zájem o tento dům?

Tímto, v souladu s nařízením Evropského parlamentu a Rady (EU) 2016/679, v platném znění, prohlašuji, že mi je alespoň 16 let a uděluji tak svůj souhlas se zpracováním zadaných údajů (jméno, telefon, e-mail, ip adresa) společnosti B3 Technology, s.r.o., IČ: 07330600, se sídlem Novostavby 126/23, 435 11 Lom (správce dat), za účelem předání dotazu z tohoto formuláře Vámi vybranému inzerentovi a zpětného kontaktování mé osoby. Osobní údaje bude správce zpracovávat manuálně i automaticky přímo prostřednictvím svých zaměstnanců. Informace předané tímto formulářem budou uloženy v databázi správce maximálně po dobu 10 let. Odvolání souhlasu s uložením a zpracováním poskytnutých dat lze e-mailem na info@vitio.cz. V případě podezření na neoprávněné použití Vámi poskytnutých údajů máte právo předat podnět k šetření Úřadu pro ochranu osobních údajů. Více informací
Chystáte se prodat nemovitost?
Pomůžeme Vám!

Inzerát si prohlédlo 0 lidí

Prodejce

Gabriela Berbrová

Gabriela Berbrová

Hlídací pes

Chcete dostávat emailem podobné nabídky prodeje rodinných domů v Třinci?

Podobné nemovitosti