Pronájem bytu 3+kk, Soběšovice, 87 m2

Horní Soběšovice

45 000 Kč /za měsíc Získejte výhodnou HYPOTÉKU
Exkluzivní partneři v Soběšovicích

Informace k bytu

Hledáte místo, kde budete mít přírodu, vodu a slunce doslova na dosah?

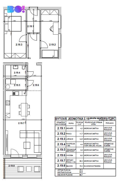
BO! Reality vám s velkou radostí představuje k pronájmu zcela nový řadový rodinný dům o dispozici 3+kk a podlahové ploše 87,8 m², nacházející se v srdci Horních Soběšovic, jen pár kroků od přehrady.
Ideální pro ty, kteří milují klid, procházky u vody, ranní slunce na terase a večerní západy s vůní lesa. Místo, kde si odpočinete, nadechnete se a budete opravdu doma.

Dispozice a vybavení:

Kompletně nový a plně vybavený apartmán 3+kk 87,8 m² a terasa 15,2 m².
Kuchyně na míru včetně moderních spotřebičů: lednice s mrazákem, mikrovlnná trouba, elektrická trouba, varná deska, myčka nádobí a digestoř.
V kuchyni stůl a židle, v obývacím pokoji pohodlný gauč a konferenční stolek.
Ložnice s postelí a nočními stolky – připravená k nastěhování.
Koupelna s pračkou, sušičkou a žebříkovým radiátorem.
Podlahové topení pro maximální komfort po celý rok.
Klimatizace pro horké letní dny.
Alarm a trezor pro vaše bezpečí a klid.
Parkovací místo přímo před domem.

Lokalita a okolí:

Příroda a voda na dosah: procházky kolem přehrady, běhání, cyklostezky, paddleboard, koupání, rybaření.
Slunné dny u vody a večery s výhledem – dokonalé místo pro relax i aktivní život.
Občanská vybavenost v blízkém okolí: obchody, kavárny a restaurace, dětská hřiště, základní občanské služby.
Dobrá dostupnost do okolních měst, klidná a bezpečná lokalita.

Podmínky nájmu:

Nájem: 45.000 Kč měsíčně. Záloha na služby: 6.000 Kč (voda, elektřina).
Vratná jistota (kauce) ve výši tří měsíčních nájmů a administrativní poplatek realitní kanceláři ve výši jednoho měsíčního nájemného + DPH.
Možnost trvalého pobytu a vhodné k dlouhodobému bydlení.

Tento řadový rodinný dům je ideální volbou pro jednotlivce, páry i ty, kdo hledají druhý domov u vody.
Pokud chcete žít v harmonii s přírodou a mít přitom veškerý komfort moderního bydlení, ozvěte se – rádi vás provedeme.

Srdce vás sem přivede, klid a slunce si vás tu udrží.

BO! spolu tvoříme příběhy...

Parametry bytu

Cena
45 000 Kč /za měsíc
Aktualizováno
12. 2. 2026
Adresa
Horní Soběšovice
ID
8025
Stavba
Cihlová
Stav objektu
Velmi dobrý
Patro
2. z 2
Vybaveno
Ano
Lokalita objektu
Klidná část obce
Vlastnictví
Osobní
Užitná plocha
87 m2
Podlahová plocha
99 m2
Třída energetické náročnosti
B - Velmi úsporná
Elektřina
230V
Odpad
Veřejná kanalizace
Komunikace
Betonová, Dlážděná, Asfaltová
Telekomunikace
Internet, Ostatní
Doprava
Silnice, MHD, Autobus
Voda
Vodovod
Terasa
Bezbarierový přístup
Parkování
Nízkoenergetický

Kontaktovat makléře

Máte zájem o tento byt?

Tímto, v souladu s nařízením Evropského parlamentu a Rady (EU) 2016/679, v platném znění, prohlašuji, že mi je alespoň 16 let a uděluji tak svůj souhlas se zpracováním zadaných údajů (jméno, telefon, e-mail, ip adresa) společnosti B3 Technology, s.r.o., IČ: 07330600, se sídlem Novostavby 126/23, 435 11 Lom (správce dat), za účelem předání dotazu z tohoto formuláře Vámi vybranému inzerentovi a zpětného kontaktování mé osoby. Osobní údaje bude správce zpracovávat manuálně i automaticky přímo prostřednictvím svých zaměstnanců. Informace předané tímto formulářem budou uloženy v databázi správce maximálně po dobu 10 let. Odvolání souhlasu s uložením a zpracováním poskytnutých dat lze e-mailem na info@vitio.cz. V případě podezření na neoprávněné použití Vámi poskytnutých údajů máte právo předat podnět k šetření Úřadu pro ochranu osobních údajů. Více informací
Chystáte se prodat nemovitost?
Pomůžeme Vám!

Inzerát si prohlédlo 1 lidí

Prodejce

Darina Pekárková

Darina Pekárková

Hlídací pes

Chcete dostávat emailem podobné nabídky pronájmu bytů 3+kk v Soběšovicích?

Podobné nemovitosti