Prodej chaty, Loučná nad Desnou - Rejhotice, 116 m2

Loučná nad Desnou, Rejhotice

14 219 766 Kč /za nemovitost HYPOTÉKA od 63 554 Kč /za měsíc

(bez poplatků, včetně provize, včetně právního servisu)

Exkluzivní partneři v Loučné nad Desnou

Pojištění a finance

Informace k domu

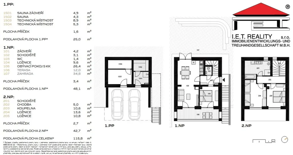
Ve výhradním zastoupení Vám nabízíme rekreační chatu 4+kk o velikosti 116 m² moderního typu pro náročné rekreanty, kteří vyžadují veškeré výhody soukromého bydlení v kombinaci s možnostmi hromadné rekreace. Zděná chata o třech podlažích se dvěma krytými parkovacími místy poskytuje dostatek místa pro celou rodinu.

V 1.PP se nachází technické zázemí a prostor pro umístění wellness. V 1.NP se nachází obývací pokoj s výstupem na terasu a s kuch. linkou, dále pokoj a WC. Ve 2.NP se nachází dvě ložnice a velká koupelna s vanou, sprchovým koutem a dvěma umyvadly. Za chatou je zahrada pro venkovní posezení. Před chatou bude velká parkovací plocha s prvky zeleně a s 6 dobíjecími stanicemi pro elektromobily.

Chata je dodávána na klíč s kompletním vybavením, jak je vidět na vizualizacích. Provedení interiéru bude dokončeno ve smluvně podložených standardech. Samostatně stojící chata je součástí developerského projektu investičního rekreačního resortu, který se skládá ze čtyř samostatně stojících objektů. Resort tvoří tři samostatně stojící chatky a hlavní budova s 19 ubytovacími jednotkami. Pokud si říkáte, že nebudete mít čas chatu využívat po celý rok, můžete si chatu pořídit jako investiční rekreační objekt, který je možno svěřit do správy správci, který Vám zajistí trvalý výnos z jejího pronájmu po celý rok.

Cely resort se nachází v obci Loučná nad Desnou, kde dnes žije cca 1500 stálých obyvatel. K občanské vybavenosti patří ZŠ a MŠ, praktický lékař, pošta, knihovna, lékárna, veřejná sportoviště jako minigolf, skatepark, dále pak dětské hřiště, bikepark, čerpací stanice, nabíjecí stanice pro elektromobily, mnohé restaurace a kavárny, kulturní zázemí atd.
Přímo 300 metrů chůze od resortu se nachází Ski centrum OÁZA, za 5 minut jízdy autem se dostanete do většího Ski areálu Kouty s nejdelší sjezdovkou na Moravě, dále pak do SKI areálu na Červenohorském sedle.
Z Loučné také můžete vyrazit pěšky, na běžkách nebo na kole na spoustu turistických výletů, třeba na Dlouhé stráně, Praděd, Šerák, nebo Karlovy Studánky.

Momentálně se dokončují stavební práce a chata bude připravená k užívání od 1.7.2026. K prodeji máme také apartmány v hlavní budově o dispozici od 1+kk až po 3+kk. S financováním Vám určitě pomůže náš finanční specialista. Velice rád Vás osobně vezmu na prohlídku, na které Vám poskytnu veškeré podrobné informace a věřím, že Vás tato nabídka zaujme.

Parametry domu

Cena
14 219 766 Kč /za nemovitost Spočítat hypotéku
Poznámka k ceně
bez poplatků, včetně provize, včetně právního servisu
Aktualizováno
12. 2. 2026
Adresa
Loučná nad Desnou, Rejhotice
ID
IETO838528
Stavba
Cihlová
Stav objektu
Novostavba
Vybaveno
Ano
Typ objektu
Patrový
Druh objektu
Samostatný
Lokalita objektu
Klidná část obce
Užitná plocha
116 m2
Zastavěná plocha
58 m2
Podlahová plocha
116 m2
Plocha pozemku
58 m2
Plocha zahrady
35 m2
Třída energetické náročnosti
B - Velmi úsporná
Ukazatel energetické náročnosti
109 kWh/m2 za rok
Elektřina
230V
Odpad
ČOV pro celý objekt
Topení
Jiné
Doprava
Vlak, Silnice, MHD, Autobus
Voda
Studna
Sklep
Terasa
Výtah
Parkování

Kontaktovat makléře

Máte zájem o tento dům?

Tímto, v souladu s nařízením Evropského parlamentu a Rady (EU) 2016/679, v platném znění, prohlašuji, že mi je alespoň 16 let a uděluji tak svůj souhlas se zpracováním zadaných údajů (jméno, telefon, e-mail, ip adresa) společnosti B3 Technology, s.r.o., IČ: 07330600, se sídlem Novostavby 126/23, 435 11 Lom (správce dat), za účelem předání dotazu z tohoto formuláře Vámi vybranému inzerentovi a zpětného kontaktování mé osoby. Osobní údaje bude správce zpracovávat manuálně i automaticky přímo prostřednictvím svých zaměstnanců. Informace předané tímto formulářem budou uloženy v databázi správce maximálně po dobu 10 let. Odvolání souhlasu s uložením a zpracováním poskytnutých dat lze e-mailem na info@vitio.cz. V případě podezření na neoprávněné použití Vámi poskytnutých údajů máte právo předat podnět k šetření Úřadu pro ochranu osobních údajů. Více informací
Chystáte se prodat nemovitost?
Pomůžeme Vám!
Theleadway banner

Inzerát si prohlédlo 7 lidí

Prodejce

Ing. Martin Klíma

Ing. Martin Klíma

Hlídací pes

Chcete dostávat emailem podobné nabídky prodeje chat v Loučné nad Desnou?

Podobné nemovitosti