Prodej pozemku, Ostrava - Michálkovice, Tvrdého, 11902 m2

Tvrdého, Ostrava, Michálkovice

Exkluzivní partneři v Ostravě

Informace k pozemku

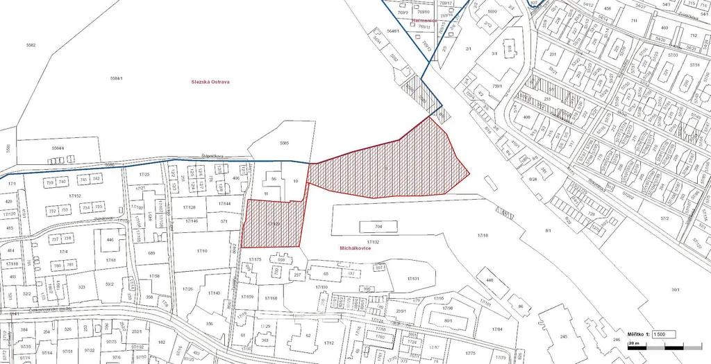
Prodej pozemků o celkové výměře 11 902 m² v k. ú. Michálkovice

Nabízíme k prodeji pozemky p. č. 17/129 a p. č. 9 o celkové výměře 11 902 m² v k. ú. Michálkovice.

Pozemky jsou přístupné z městské komunikace ul. Tvrdého.

Dle územního plánu jsou pozemky vedeny jako lesy.

Pozemek p. č. 17/129 se má potenciál na změnu územního plánu na bydlení nebo lehký průmysl, neboť se nachází vedle pozemků jak pro bydlení, tak pro lehký průmysl.

Pozemky jsou zcela porostlé stromy a keři.

Pozemky nejsou pronajaté.

Parametry pozemku

Cena
1 754 840 Kč Spočítat hypotéku
Aktualizováno
12. 2. 2026
Adresa
Tvrdého, Ostrava, Michálkovice
ID
01249
Plocha pozemku
11902 m2

Kontaktovat makléře

Máte zájem o tento pozemek?

Tímto, v souladu s nařízením Evropského parlamentu a Rady (EU) 2016/679, v platném znění, prohlašuji, že mi je alespoň 16 let a uděluji tak svůj souhlas se zpracováním zadaných údajů (jméno, telefon, e-mail, ip adresa) společnosti B3 Technology, s.r.o., IČ: 07330600, se sídlem Novostavby 126/23, 435 11 Lom (správce dat), za účelem předání dotazu z tohoto formuláře Vámi vybranému inzerentovi a zpětného kontaktování mé osoby. Osobní údaje bude správce zpracovávat manuálně i automaticky přímo prostřednictvím svých zaměstnanců. Informace předané tímto formulářem budou uloženy v databázi správce maximálně po dobu 10 let. Odvolání souhlasu s uložením a zpracováním poskytnutých dat lze e-mailem na info@vitio.cz. V případě podezření na neoprávněné použití Vámi poskytnutých údajů máte právo předat podnět k šetření Úřadu pro ochranu osobních údajů. Více informací
Chystáte se prodat nemovitost?
Pomůžeme Vám!

Inzerát si prohlédlo 0 lidí

Prodejce

Marie Teperová

Marie Teperová

Hlídací pes

Chcete dostávat emailem podobné nabídky prodeje pozemků v Ostravě?

Podobné nemovitosti