Soccer reality

Prodej rodinného domu, Praha - Hostavice, 330 m2 (ID: 2579588)

Praha, Hostavice

Cena na vyžádání /za nemovitost Získejte výhodnou HYPOTÉKU
Exkluzivní partneři v Praze 9

Stěhovací služby

Výkup a prodej starého nábytku

Informace k domu

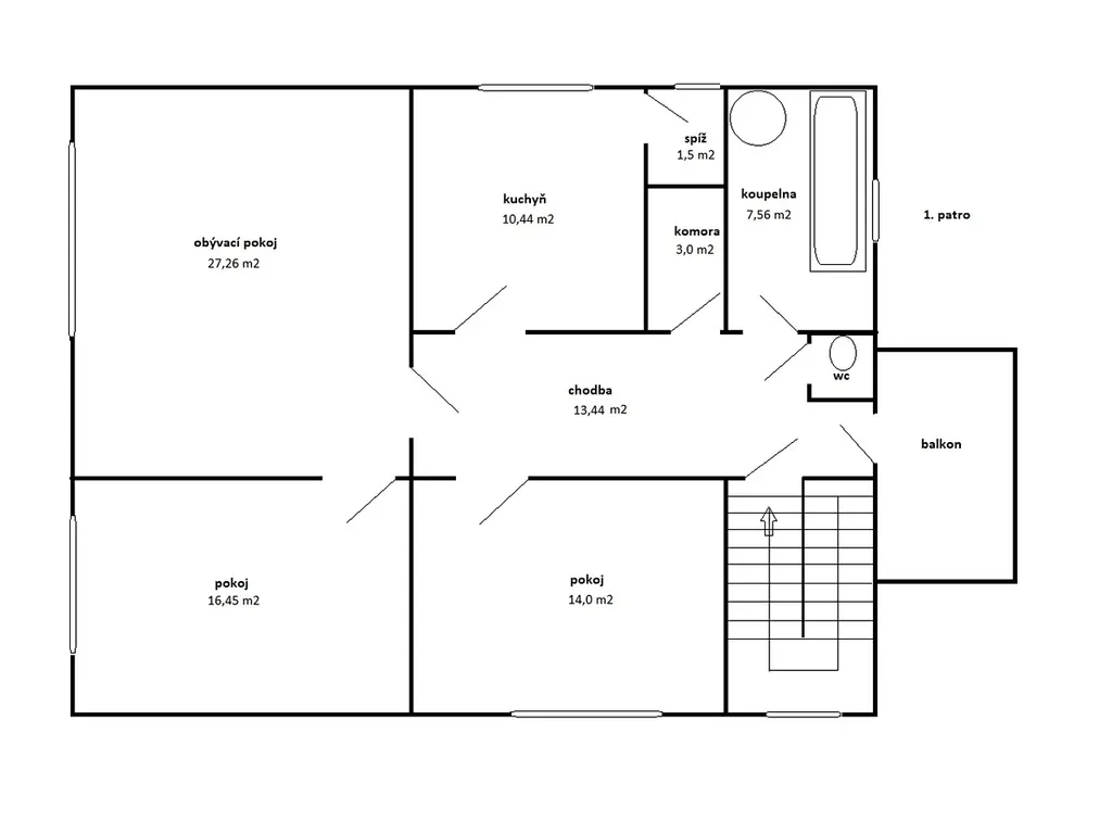
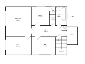
Nabízíme k prodeji dvougenerační rodinný dům o celkové podlahové ploše 330 m2. Dům pochází z 80. let a je pečlivě udržován. Skládá se ze dvou samostatných bytových jednotek o dispozici 3+1, každá o celkové ploše cca 100 m2 (viz. plánek) se společným schodištěm. V suterénu domu se kromě sklepů nachází prostorná dvojgaráž s el. otevíráním vrat. Teplo v celém domě zajišťuje plynový kotel. Dům má plastová okna a je obklopen zahradou (430 m2) se zahradním domkem.
Nachází se v klidné vilové čtvrti. V blízkosti jsou obchody, restaurace, školka a autobusová zastávka, ze které se dostanete za 7 min. na stanici metra Rajská zahrada, za 16 min. na stanici metra Palmovka nebo za 15 min. na stanici metra Depo Hostivař. Dále je možné využívat blízkou stanici Českých drah s dojezdem 13 min. na Masarykovo nádraží.
Ukazatel energetické náročnosti: G* (v tuto chvíli probíhá vypracování PENB, údaj bude aktualizován).

Parametry domu

Cena
Cena na vyžádání Spočítat hypotéku
Aktualizováno
10. 2. 2026
Adresa
Praha, Hostavice
Stavba
Cihlová
Stav objektu
Velmi dobrý
Druh objektu
Samostatný
Lokalita objektu
Klidná část obce
Užitná plocha
330 m2
Zastavěná plocha
128 m2
Plocha pozemku
558 m2
Plocha zahrady
430 m2
Třída energetické náročnosti
G - Mimořádně nehospodárná
Plyn
Plynovod
Odpad
Veřejná kanalizace
Doprava
Vlak, Dálnice, MHD, Autobus
Voda
Vodovod
Topné těleso
Radiátory
Zdroj topení
Plynový kotel
Zdroj teplé vody
Plynový kotel
Garáž
Sklep

Kontaktovat makléře

Máte zájem o tento dům?

Tímto, v souladu s nařízením Evropského parlamentu a Rady (EU) 2016/679, v platném znění, prohlašuji, že mi je alespoň 16 let a uděluji tak svůj souhlas se zpracováním zadaných údajů (jméno, telefon, e-mail, ip adresa) společnosti B3 Technology, s.r.o., IČ: 07330600, se sídlem Novostavby 126/23, 435 11 Lom (správce dat), za účelem předání dotazu z tohoto formuláře Vámi vybranému inzerentovi a zpětného kontaktování mé osoby. Osobní údaje bude správce zpracovávat manuálně i automaticky přímo prostřednictvím svých zaměstnanců. Informace předané tímto formulářem budou uloženy v databázi správce maximálně po dobu 10 let. Odvolání souhlasu s uložením a zpracováním poskytnutých dat lze e-mailem na info@vitio.cz. V případě podezření na neoprávněné použití Vámi poskytnutých údajů máte právo předat podnět k šetření Úřadu pro ochranu osobních údajů. Více informací
Chystáte se prodat nemovitost?
Pomůžeme Vám!

Inzerát si prohlédlo 1 lidí

Prodejce

Jiří Černý

Jiří Černý

Hlídací pes

Chcete dostávat emailem podobné nabídky prodeje rodinných domů v Praze 9?

Podobné nemovitosti