Pronájem skladu, Lišov, Hůrecká, 350 m2

Hůrecká, Lišov

35 000 Kč /za měsíc Získejte výhodnou HYPOTÉKU

(+ energie, bez DPH, včetně právního servisu)

Exkluzivní partneři v Lišově

Výkup a prodej starého nábytku

Informace k nemovitosti

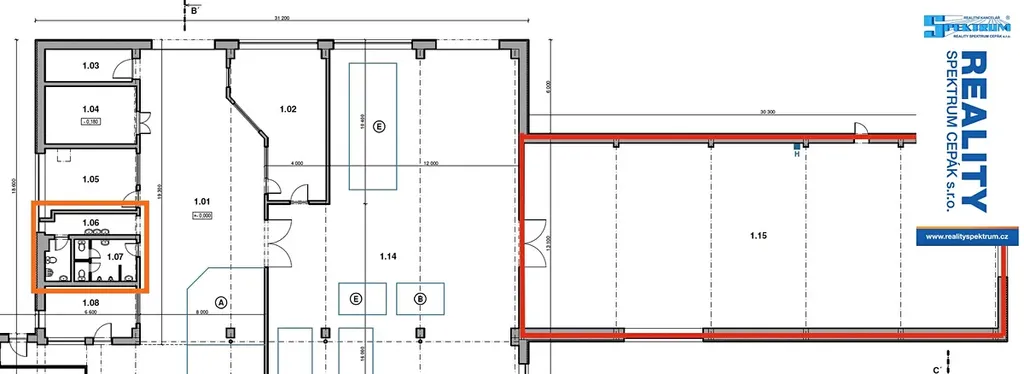
Pronájem vytápěných skladovacích prostorů v komerčním areálu. Budova jako celek má využitelnou výměru 2.357m2 a je rozdělena na tři samostatné provozní části. Nabízíme Vám pronájem jedné části o výměře 350m2 s mostovým jeřábem o nosnosti 3,2t. Prostory mají provozní výšku 6m. Vjezdová vrata mají rozměr 4m šířka x 4,5m výška. Budova sloužila jako sklad pro těžké výrobky. Sociální zařízení jsou v budově. Prostory jsou vytápěné moderními topidly ROBUR (možnost regulace jednotlivých sekcí). Elektrický příkon 140kW (200A), je možné i navýšení. K dispozici jsou velké venkovní manipulační plochy a parkovací plochy pro zaměstnance i návštěvy. Přístup do areálu je 24/7. Areál má stálou ostrahu a vrátnici. Možnost pronájmu dalších prostorů v areálu (informace na tel. 607 177 472). --- Nájemné: 35.000,- Kč/měs. + el. a plyn dle skutečné spotřeby. --- Provozní paušál za služby v areálu: 20.000,- Kč/měs. (voda, úklid, odpad atd.). --- Uvedené ceny jsou bez DPH.

Parametry nemovitosti

Cena
35 000 Kč /za měsíc
Poznámka k ceně
+ energie, bez DPH, včetně právního servisu
Aktualizováno
7. 2. 2026
Adresa
Hůrecká, Lišov
ID
953350 Lišov
Stavba
Cihlová
Stav objektu
Velmi dobrý
Lokalita objektu
Okraj obce
Užitná plocha
350 m2
Třída energetické náročnosti
C - Úsporná
Ukazatel energetické náročnosti
702 kWh/m2 za rok
Elektřina
230V, 400V
Komunikace
Asfaltová
Telekomunikace
Internet
Doprava
Dálnice, Silnice, Autobus
Topné těleso
Jiné
Zdroj topení
Jiné
Parkování

Kontaktovat makléře

Máte zájem o tuto nemovistost?

Tímto, v souladu s nařízením Evropského parlamentu a Rady (EU) 2016/679, v platném znění, prohlašuji, že mi je alespoň 16 let a uděluji tak svůj souhlas se zpracováním zadaných údajů (jméno, telefon, e-mail, ip adresa) společnosti B3 Technology, s.r.o., IČ: 07330600, se sídlem Novostavby 126/23, 435 11 Lom (správce dat), za účelem předání dotazu z tohoto formuláře Vámi vybranému inzerentovi a zpětného kontaktování mé osoby. Osobní údaje bude správce zpracovávat manuálně i automaticky přímo prostřednictvím svých zaměstnanců. Informace předané tímto formulářem budou uloženy v databázi správce maximálně po dobu 10 let. Odvolání souhlasu s uložením a zpracováním poskytnutých dat lze e-mailem na info@vitio.cz. V případě podezření na neoprávněné použití Vámi poskytnutých údajů máte právo předat podnět k šetření Úřadu pro ochranu osobních údajů. Více informací
Chystáte se prodat nemovitost?
Pomůžeme Vám!

Inzerát si prohlédlo 1 lidí

Prodejce

REALITY SPEKTRUM CEPÁK s.r.o.

REALITY SPEKTRUM CEPÁK s.r.o.

Hlídací pes

Chcete dostávat emailem podobné nabídky pronájmu skladů v Lišově (okr. České Budějovice)?

Podobné nemovitosti