Prodej chaty, Šťáhlavy - Šťáhlavice, 86 m2

Šťáhlavy, okres plzeň-město, Šťáhlavice

2 590 000 Kč /za nemovitost HYPOTÉKA od 11 576 Kč /za měsíc
Exkluzivní partneři v Šťáhlavech

Stěhovací služby

Pojištění a finance

Informace k domu

Představujeme k prodeji chatku s garáží a zahradou u obce Šťáhlavice nedaleko zámku Kozel, konkrétně na adrese Šťáhlavice č.ev. 137.

Podívejte se na samostatnou stránku v odkaze ve videoprohlídce.

Informace o lokalitě:
Chata je umístěná v chatové osadě kousek od řeky Úslavy a zámku Kozel na okraji obce Šťáhlavice. Je situovaná v lese s možností parkovat na přilehlém parkovišti pár kroků od chaty, v případě potřeby je možné zajet až k chatě. Chata je vzdálená 5 km od Šťáhlav, kde nalezneme veškerou občanskou vybavenost a 8 km od Starého Plzence.

Informace o chatě:
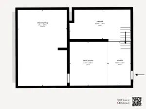
Chata byla postavena v roce 1972. Je obklopena vlastním pozemkem o velikosti 321 m2, na kterém stojí kromě chaty i garáž s vybudovanou koupelnou a malá kůlna. Chata je zděná, má jedno podlaží a podkroví. Její dispozice je 3+1 s tím, že po vstupu do chaty se ocitneme v jídelním prostoru s kuchyňkou, dále je možné vejít do obývacího pokoje a po dřevěných schodech se dostaneme do podkroví se dvěma pokoji. Chata byla v roce 2002 rekonstruovaná. Tato rekonstrukce spočívala ve změně dispozice, výměně vybavení, výměně podlah, nové výmalby, výměně kuchyňské linky. Chata se prodává včetně kompletního vybavení.

Informace o sítích:
Voda je zavedená do koupelny v garáži z vlastního zdroje studny.
Odpad je sveden do jímky.
Ohřev vody zajišťuje elektrický bojler.
Chata je vytápěna jak kamny na tuhá paliva s rozvodem do radiátorů, tak krbem v obývacím pokoji.
Elektřina je do chaty i garáže zavedena o napětí 230 V.

Technické informace:
Okna v chatě jsou původní dřevěná. Střecha je sedlová s plechovou krytinou. Vnitřní omítky jsou vápenocementové. Podlahy jsou prkenné.

Výměry:
Užitná plocha chaty + garáže: 86,29 m2
Zastavěná plocha chaty a garáže: 72 m2
Celková plocha parcely: 321 m2
Výměra zahrady: 249 m2

Hledáte li ideální místo k odpočinku, na hezkém místě, na dosah přírody, kousek od zámku Kozel, hradu Radyně a přitom kousek od Plzně, zavolejte mi nebo napište, chatou Vás ráda provedu.
Pro koupi zajistíme kompletní realitní a právní servis a financování hypotečním úvěrem. Kontaktujte mě, prosím, pro domluvení prohlídky:
Bc. Hana Procházková
TAURUM reality s.r.o.

Uvedené výměry jsou orientační.

Parametry domu

Cena
2 590 000 Kč /za nemovitost Spočítat hypotéku
Aktualizováno
7. 5. 2026
Adresa
Šťáhlavy, okres plzeň-město, Šťáhlavice
ID
250177
Stavba
Cihlová
Stav objektu
Dobrý
Vybaveno
Ano
Typ objektu
Přízemní
Vlastnictví
Osobní
Užitná plocha
86 m2
Zastavěná plocha
72 m2
Podlahová plocha
86 m2
Plocha pozemku
321 m2
Třída energetické náročnosti
G - Mimořádně nehospodárná
Elektřina
230V
Odpad
Jímka
Doprava
Vlak, Silnice
Voda
Místní zdroj vody
Garáž
Výtah

Kontaktovat makléře

Realitní kancelář

TAURUM reality s.r.o.

Americká 1139/1, Plzeň, Jižní Předměstí

Chystáte se prodat nemovitost?
Pomůžeme Vám!

Máte zájem o tento dům?

Tímto, v souladu s nařízením Evropského parlamentu a Rady (EU) 2016/679, v platném znění, prohlašuji, že mi je alespoň 16 let a uděluji tak svůj souhlas se zpracováním zadaných údajů (jméno, telefon, e-mail, ip adresa) společnosti B3 Technology, s.r.o., IČ: 07330600, se sídlem Novostavby 126/23, 435 11 Lom (správce dat), za účelem předání dotazu z tohoto formuláře Vámi vybranému inzerentovi a zpětného kontaktování mé osoby. Osobní údaje bude správce zpracovávat manuálně i automaticky přímo prostřednictvím svých zaměstnanců. Informace předané tímto formulářem budou uloženy v databázi správce maximálně po dobu 10 let. Odvolání souhlasu s uložením a zpracováním poskytnutých dat lze e-mailem na info@vitio.cz. V případě podezření na neoprávněné použití Vámi poskytnutých údajů máte právo předat podnět k šetření Úřadu pro ochranu osobních údajů. Více informací
Chystáte se prodat nemovitost?
Pomůžeme Vám!
Theleadway banner

Inzerát si prohlédlo 16 lidí

Prodejce

Bc. Hana Procházková

Bc. Hana Procházková

Hlídací pes

Chcete dostávat emailem podobné nabídky prodeje chat v Šťáhlavech?

Top nabídky

Podobné nemovitosti