Prodej rodinného domu, Žeravice, Žeravice, 270 m2

9 330 000 Kč /za nemovitost HYPOTÉKA od 41 699 Kč /za měsíc
Exkluzivní partneři v Žeravicích

Pojištění a finance

Informace k domu

V klidné obci Žeravice u Kyjova nabízíme k prodeji rodinný dům, který zaujme nejen svou velikostí a dispozicí, ale především variabilitou využití a atmosférou skutečného domova. Jedná se o nemovitost, která dává prostor představám – ať už hledáte místo pro rodinu, více generací pod jednou střechou, nebo dům s investičním potenciálem.

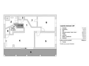
Dům je rozdělen do tří samostatných bytových jednotek, díky čemuž nabízí naprostou flexibilitu využití. V přízemí se nachází dvě bytové jednotky o dispozici 2+1, které poskytují dostatek prostoru a soukromí. V patře je pak nově vybudovaný byt 3+kk, který působí moderně, vzdušně a je připraven stát se plnohodnotným rodinným bydlením.

Nemovitost prošla postupnou rekonstrukcí, přičemž většina zásadních prací je již hotová. K dokončení zbývá pouze minimum úprav, které si nový majitel může přizpůsobit podle vlastního vkusu a potřeb – a dát tak domu osobní rukopis.

Velkou předností domu je udržovaná zahrada, která nabízí příjemné soukromí a prostor pro odpočinek, rodinná setkání i každodenní relax. K domu dále náleží prostorná garáž až pro tři auta, praktická dílna a také sklep ideální pro skladování ovoce a zeleniny.

Základní informace:

užitná plocha domu: 270 m²

plocha pozemku: 1551 m²

počet bytových jednotek: 3

Tento dům je ideální volbou pro ty, kteří hledají klidné bydlení s možností dalšího využití, ať už formou pronájmu, podnikání z domova nebo vícegeneračního soužití. Spojuje v sobě praktičnost, prostor a potenciál, který se jen tak nevidí.

Projděte si nemovitost pomocí 3D scanu.

Pro více informací nebo domluvení osobní prohlídky mě neváhejte kontaktovat.
Ráda vám dům představím osobně a ukážu vám, co všechno může nabídnout.

Parametry domu

Cena
9 330 000 Kč /za nemovitost Spočítat hypotéku
Aktualizováno
31. 3. 2026
Adresa
ID
169
Stavba
Cihlová
Stav objektu
Velmi dobrý
Vybaveno
Částečně
Typ objektu
Přízemní
Druh objektu
Rohový
Lokalita objektu
Klidná část obce
Užitná plocha
270 m2
Zastavěná plocha
195 m2
Plocha pozemku
1551 m2
Elektřina
230V, 400V
Plyn
Plynovod
Odpad
Veřejná kanalizace
Topení
Ústřední plynové, Jiné
Komunikace
Asfaltová
Voda
Vodovod, Studna
Topné těleso
Radiátory
Zdroj topení
Plynový kondenzační kotel
Zdroj teplé vody
Bojler - elektro, Bojler - plyn
Sklep
Výtah

Kontaktovat makléře

Máte zájem o tento dům?

Tímto, v souladu s nařízením Evropského parlamentu a Rady (EU) 2016/679, v platném znění, prohlašuji, že mi je alespoň 16 let a uděluji tak svůj souhlas se zpracováním zadaných údajů (jméno, telefon, e-mail, ip adresa) společnosti B3 Technology, s.r.o., IČ: 07330600, se sídlem Novostavby 126/23, 435 11 Lom (správce dat), za účelem předání dotazu z tohoto formuláře Vámi vybranému inzerentovi a zpětného kontaktování mé osoby. Osobní údaje bude správce zpracovávat manuálně i automaticky přímo prostřednictvím svých zaměstnanců. Informace předané tímto formulářem budou uloženy v databázi správce maximálně po dobu 10 let. Odvolání souhlasu s uložením a zpracováním poskytnutých dat lze e-mailem na info@vitio.cz. V případě podezření na neoprávněné použití Vámi poskytnutých údajů máte právo předat podnět k šetření Úřadu pro ochranu osobních údajů. Více informací
Chystáte se prodat nemovitost?
Pomůžeme Vám!
Theleadway banner

Inzerát si prohlédlo 10 lidí

Prodejce

Pavla Šimková

Pavla Šimková

Hlídací pes

Chcete dostávat emailem podobné nabídky prodeje rodinných domů v Žeravicích?

Podobné nemovitosti