Pronájem bytu 2+1, Kladno - Kročehlavy, Havanská, 51 m2 (ID: 2571417)

Havanská, Kladno, Kročehlavy

16 000 Kč /za měsíc Získejte výhodnou HYPOTÉKU

(kauce 30.000.-, služby 4.000.-/ měs. provize 16.000 + DPH)

Exkluzivní partneři v Kladně

Informace k bytu

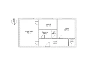
Nabízíme k dlouhodobému pronájmu byt 2+1 v 5. patře panelového domu v ulici Havanská v Kladně. Jednotka prošla kompletní a zdařilou rekonstrukcí, má dřevěné interiérové dveře a zárubně, plovoucí podlahy a v celém bytě žaluzie.

Obytné místnosti jsou světlé, orientované na jih a poskytují hezký výhled do okolní zeleně; přímo za domem je dětské hřiště. Byt se pronajímá kompletně vybavený. V ložnici se nachází manželská postel a velká vestavěná skříň, v předsíni další vestavěná skříň. Obývací pokoj je zařízen sedací soupravou, konferenčním stolkem, PC stolem a úložnými skříňkami. Kuchyně je vybavena lednicí, vestavnou troubou, indukční varnou deskou, mikrovlnnou troubou, digestoří a kuchyňskou linkou na míru. Koupelna má vanu a pračku. WC je samostatné. Vstup do bytu zajišťují bezpečnostní dveře. Součástí bytu je sklepní kóje o rozloze 2 m2.

Dům je po celkové revitalizaci – má nová plastová okna, modernizované výtahy, zateplenou fasádu a střechu a vyměněné stoupací vedení. Lokalita patří k vyhledávané části Kladna směrem na Prahu a nabízí výbornou dopravní dostupnost do metropole. V bezprostředním okolí je kompletní občanská vybavenost včetně školy, školky a obchodů, zároveň je blízko do lesa a k trasám pro volnočasové aktivity. K bytu lze pronajmout samostatnou garáž v bezprostřední blízkosti, byt je připraven k okamžitému nastěhování.

Parametry bytu

Cena
16 000 Kč /za měsíc
Poznámka k ceně
kauce 30.000.-, služby 4.000.-/ měs. provize 16.000 + DPH
Aktualizováno
2. 2. 2026
Adresa
Havanská, Kladno, Kročehlavy
ID
18653
Stavba
Panelová
Stav objektu
Velmi dobrý
Patro
6. z 7
Vybaveno
Ano
Lokalita objektu
Sídliště
Vlastnictví
Osobní
Užitná plocha
51 m2
Zastavěná plocha
1235 m2
Třída energetické náročnosti
D - Méně úsporná
Ukazatel energetické náročnosti
70 kWh/m2 za rok
Plyn
Plynovod
Odpad
Veřejná kanalizace
Doprava
Vlak, Dálnice, Silnice, MHD, Autobus
Voda
Vodovod
Sklep
Výtah

Kontaktovat makléře

Realitní kancelář

Logo QARA, s.r.o.

QARA, s.r.o.

Šafaříkova 201/17, Praha

Chystáte se prodat nemovitost?
Pomůžeme Vám!

Máte zájem o tento byt?

Tímto, v souladu s nařízením Evropského parlamentu a Rady (EU) 2016/679, v platném znění, prohlašuji, že mi je alespoň 16 let a uděluji tak svůj souhlas se zpracováním zadaných údajů (jméno, telefon, e-mail, ip adresa) společnosti B3 Technology, s.r.o., IČ: 07330600, se sídlem Novostavby 126/23, 435 11 Lom (správce dat), za účelem předání dotazu z tohoto formuláře Vámi vybranému inzerentovi a zpětného kontaktování mé osoby. Osobní údaje bude správce zpracovávat manuálně i automaticky přímo prostřednictvím svých zaměstnanců. Informace předané tímto formulářem budou uloženy v databázi správce maximálně po dobu 10 let. Odvolání souhlasu s uložením a zpracováním poskytnutých dat lze e-mailem na info@vitio.cz. V případě podezření na neoprávněné použití Vámi poskytnutých údajů máte právo předat podnět k šetření Úřadu pro ochranu osobních údajů. Více informací
Chystáte se prodat nemovitost?
Pomůžeme Vám!

Inzerát si prohlédlo 0 lidí

Prodejce

Ing. Marek Kotík

Ing. Marek Kotík

Hlídací pes

Chcete dostávat emailem podobné nabídky pronájmu bytů 2+1 v Kladně?

Podobné nemovitosti