Pronájem bytu 2+kk, Uherské Hradiště, Nad Žlebem, 116 m2

Nad Žlebem, Uherské Hradiště, Sady

20 000 Kč /za měsíc Získejte výhodnou HYPOTÉKU

(+ 3.000 Kč záloha na služby)

Exkluzivní partneři v Uherském Hradišti

Informace k bytu

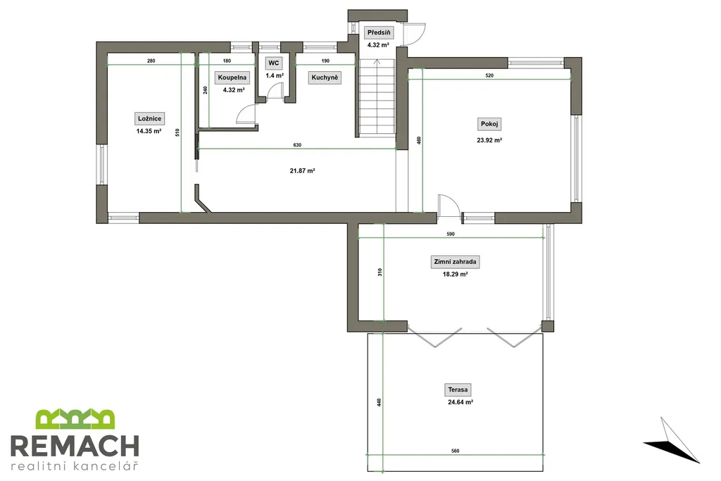
Pronájem bytu 2+kk s terasou, zimní zahradou a dvěma parkovacími místy – Uherské Hradiště

Nabízíme k pronájmu moderní a prostorný byt o dispozici 2+kk v klidné části Uherského Hradiště. Samotný byt má podlahovou plochu 73 m² a jeho velkou předností je zimní zahrada o výměře 18,3 m² a prostorná terasa o velikosti 24,64 m², které výrazně rozšiřují obytný prostor a nabízejí komfortní bydlení po celý rok.

Byt disponuje světlým obývacím pokojem s kuchyňským koutem, samostatnou ložnicí, koupelnou a odděleným WC. Z obývací části je přímý vstup do zimní zahrady, na kterou navazuje terasa orientovaná do klidného prostředí – ideální místo pro relaxaci, posezení nebo grilování.

K bytu náleží dvě parkovací místa, což zajišťuje bezproblémové parkování pro nájemce i návštěvy. Byt je vhodný pro jednotlivce, pár nebo menší rodinu, kteří hledají komfortní bydlení s nadstandardním venkovním prostorem.

Lokalita Uherské Hradiště nabízí kompletní občanskou vybavenost, dobrou dostupnost do centra města a zároveň klidné bydlení.

Byt je k nastěhování ihned.

Parametry bytu

Cena
20 000 Kč /za měsíc
Poznámka k ceně
+ 3.000 Kč záloha na služby
Aktualizováno
27. 1. 2026
Adresa
Nad Žlebem, Uherské Hradiště, Sady
ID
03443
Stavba
Cihlová
Stav objektu
Velmi dobrý
Patro
2. z 2
Vybaveno
Částečně
Vlastnictví
Osobní
Užitná plocha
116 m2
Třída energetické náročnosti
G - Mimořádně nehospodárná
Elektřina
230V
Plyn
Plynovod
Odpad
Veřejná kanalizace
Komunikace
Betonová, Asfaltová
Doprava
Vlak, Dálnice, Silnice, MHD, Autobus
Voda
Vodovod
Sklep
Lodžie
Terasa
Parkování

Kontaktovat makléře

Realitní kancelář

Logo REMACH s.r.o.

REMACH s.r.o.

Palackého náměstí 175, Uherské Hradiště

Chystáte se prodat nemovitost?
Pomůžeme Vám!

Máte zájem o tento byt?

Tímto, v souladu s nařízením Evropského parlamentu a Rady (EU) 2016/679, v platném znění, prohlašuji, že mi je alespoň 16 let a uděluji tak svůj souhlas se zpracováním zadaných údajů (jméno, telefon, e-mail, ip adresa) společnosti B3 Technology, s.r.o., IČ: 07330600, se sídlem Novostavby 126/23, 435 11 Lom (správce dat), za účelem předání dotazu z tohoto formuláře Vámi vybranému inzerentovi a zpětného kontaktování mé osoby. Osobní údaje bude správce zpracovávat manuálně i automaticky přímo prostřednictvím svých zaměstnanců. Informace předané tímto formulářem budou uloženy v databázi správce maximálně po dobu 10 let. Odvolání souhlasu s uložením a zpracováním poskytnutých dat lze e-mailem na info@vitio.cz. V případě podezření na neoprávněné použití Vámi poskytnutých údajů máte právo předat podnět k šetření Úřadu pro ochranu osobních údajů. Více informací
Chystáte se prodat nemovitost?
Pomůžeme Vám!

Inzerát si prohlédlo 0 lidí

Prodejce

Ing. Michal Macháček

Ing. Michal Macháček

Hlídací pes

Chcete dostávat emailem podobné nabídky pronájmu bytů 2+kk v Uherském Hradišti?

Podobné nemovitosti