Prodej bytu 2+kk, Kladno, Váňova, 43 m2 (ID: 2565593)

Váňova, Kladno

4 200 000 Kč /za nemovitost HYPOTÉKA od 18 771 Kč /za měsíc

(Včetně provize RK a právních služeb)

Exkluzivní partneři v Kladně

Informace k bytu

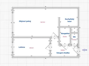
Nabízíme k prodeji hezký a útulný byt v osobním vlastnictví o dispozici 2+kk a podlahové ploše 43 m², nacházející se ve 2. patře bytového domu z roku 1994 ve velmi vyhledávané lokalitě města Kladna.
Bytová jednotka se skládá z obývacího pokoje s kuchyňským koutem, jehož součástí je kuchyňská linka, elektrický sporák, digestoř a lednice. Dále je zde ložnice, koupelna a samostatné WC. Ve vstupní chodbě se nachází prostorná vestavěná skříň. Na podlahách je plovoucí podlaha a linoleum. Okna jsou plastová s dvojskly, orientovaná na západní stranu.
K bytové jednotce náleží sklepní kóje a je zde možnost využití společné kočárkárny, kolárny.
Na domě proběhla v roce 2022 výměna stoupaček a v roce 2025 rekonstrukce střechy. Výtah a bezpečnostní samo otvírací dveře do domu ovládány čipem, pod kamerovým systémem. Správu nemovitosti zajišťuje SBD Ocelář Kladno.
V místě je vynikající občanská vybavenost – školy, úřady, restaurace, obchody a nedaleko se nachází OC Central. Lokalita nabízí velmi dobrou dopravní dostupnost, autobusové zastávky a spojení do Prahy.
V případě zájmu o prohlídku nebo více informací mě neváhejte kontaktovat. První prohlídkový den je plánován od 3. 2. 2026

Parametry bytu

Cena
4 200 000 Kč /za nemovitost Spočítat hypotéku
Poznámka k ceně
Včetně provize RK a právních služeb
Náklady na bydlení
4125,- Kč
Aktualizováno
26. 1. 2026
Adresa
Váňova, Kladno
ID
202601
Stavba
Panelová
Stav objektu
Velmi dobrý
Patro
3. z 8
Vybaveno
Částečně
Lokalita objektu
Centrum obce
Vlastnictví
Osobní
Užitná plocha
43 m2
Podlahová plocha
46 m2
Třída energetické náročnosti
C - Úsporná
Elektřina
230V
Odpad
Veřejná kanalizace
Komunikace
Betonová, Asfaltová
Doprava
Vlak, Dálnice, Silnice, MHD, Autobus
Voda
Místní zdroj vody, Vodovod
Topné těleso
Radiátory
Zdroj topení
Ústřední dálkové
Zdroj teplé vody
Centrální dálkový ohřev
Sklep
Výtah
Bezbarierový přístup

Kontaktovat makléře

Realitní kancelář

Belšan reality

Cyrila Boudy 1444, Kladno

Chystáte se prodat nemovitost?
Pomůžeme Vám!

Máte zájem o tento byt?

Tímto, v souladu s nařízením Evropského parlamentu a Rady (EU) 2016/679, v platném znění, prohlašuji, že mi je alespoň 16 let a uděluji tak svůj souhlas se zpracováním zadaných údajů (jméno, telefon, e-mail, ip adresa) společnosti B3 Technology, s.r.o., IČ: 07330600, se sídlem Novostavby 126/23, 435 11 Lom (správce dat), za účelem předání dotazu z tohoto formuláře Vámi vybranému inzerentovi a zpětného kontaktování mé osoby. Osobní údaje bude správce zpracovávat manuálně i automaticky přímo prostřednictvím svých zaměstnanců. Informace předané tímto formulářem budou uloženy v databázi správce maximálně po dobu 10 let. Odvolání souhlasu s uložením a zpracováním poskytnutých dat lze e-mailem na info@vitio.cz. V případě podezření na neoprávněné použití Vámi poskytnutých údajů máte právo předat podnět k šetření Úřadu pro ochranu osobních údajů. Více informací
Chystáte se prodat nemovitost?
Pomůžeme Vám!

Inzerát si prohlédlo 0 lidí

Prodejce

Jan Belšán

Jan Belšán

Hlídací pes

Chcete dostávat emailem podobné nabídky prodeje bytů 2+kk v Kladně?

Podobné nemovitosti