Prodej vícegeneračního domu, Veletov, 822 m2

Veletov

9 900 000 Kč /za nemovitost HYPOTÉKA od 44 247 Kč /za měsíc
Exkluzivní partneři v Veletově

Informace k domu

POVODÍ LABE,STÁTNÍ PODNIK VYHLAŠUJE VÝBĚROVÉ ŘÍZENÍ č. VŘ/4/2024/9 - VI. KOLO_OBÁLKOVÁ METODA. VEŠKERÉ PODMÍNKY VÝBĚROVÉHO ŘÍZENÍ JSOU UVEDENY V DOKUMENTU "OZNÁMENÍ O VÝBĚROVÉM ŘÍZENÍ Č. VŘ/4/N/2024/9 - VI. kolo, který je umístěn na webových stránkách Povodí Labe, státní podnik, včetně dokumentace k podání nabídky.

TERMÍN PRO PŘEDLOŽENÍ CENOVÉ NABÍDKY:
23.01.2026 – 23.02.2026 do 11:00 hodin

OTEVŘENÍ OBÁLEK PROBĚHNE:
24.02.2026 v 10:00 hodin

PŘEDMĚT KOUPĚ:
Pozemek evidovaný jako stavební parcela č. 157 o výměře 208 m2, v druhu zastavěná plocha a nádvoří, jehož součástí je stavba s číslem popisným 39, rodinný dům, adresní místo: Veletov 39, 280 02 Veletov a s pozemkem evidovaným jako parcela č. 721/33 o výměře 813 m2, v druhu ostatní plocha, vše v katastrálním území a obci Veletov, zapsané na listu vlastnictví č. 29 u Katastrálního úřadu pro Středočeský kraj, Katastrálního pracoviště Kolín, včetně všech součástí a příslušenství. Rodinný dům obsahuje 5 bytových jednotek, z toho jsou 4 byty obsazené a 1 byt je volný.

PROHLÍDKA PŘEDMĚTU KOUPĚ:
04.02.2026 od 10:00 do 12:00 hodin
18.02.2026 od 13:00 do 15:00 hodin.
Sraz účastníků prohlídky je před rodinným domem na adresním místě: Veletov 39, 280 02 Kolín.

Upozorňujeme, že bez souhlasu nájemce nelze prohlídky pronajatých bytů uskutečnit. Prohlídka bude provedena za účasti oprávněných osob vyhlašovatele.

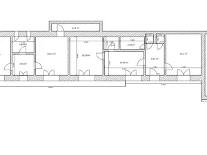
Dům č.p. 39 byl postavený v sedmdesátých letech minulého století a užívaný od roku 1976. Je postavený na základových pasech s izolacemi proti zemní vlhkosti. Je plně podsklepený s přízemím, patrem a podkrovím. Dům č.p. 39 obsahuje pět bytů:
byt č. 1, velikost 3+1 o výměře 75,67 m2, situovaný v I.NP, byt je pronajat,
byt č. 2, velikost 3+1 o výměře 77,08 m2, situovaný v I.NP, byt je pronajat,
byt č. 3, velikost 3+1 o výměře 69,97 m2, situovaný v II.NP, byt je pronajat,
byt č. 4, velikost 3+1 o výměře 78,26 m2, situovaný v II.NP, byt je pronajat,
byt č. 5, velikost 3+1 o výměře 91,51 m2, situovaný v podkroví, byt je volný.
Byty jsou vytápěny centrálním kotlem na tuhá paliva, který se nachází v suterénu domu. Vytápění je s rozvodem do jednotlivých bytů, ve kterých jsou osazeny litinové radiátorové články s poměrovými měřidly na jednotlivých radiátorech. V domě je instalován nový kotel na tuhá paliva splňující emisní limity. Výměra jednotlivých bytů vychází ze znaleckého posudku.
Obvodové nosné konstrukce domu jsou zděné z cihelného zdiva, bez zateplení. Stropní konstrukce nad suterénem, přízemím a patrem jsou ze železobetonových panelů, strop nad podkrovím je dřevěný. Zastřešení je provedeno sedlovým vázaným krovem s ryzalitem. Střešní krytina je plechová, ze šablon, provedená cca před 15 - 20 lety. Klempířské prvky byly vyměněny, jsou z titanzinku. Venkovní omítky jsou břízolitové, škrabané, soklové zdivo je upraveno tvrdou cementovou omítkou s kamínky. Vnitřní omítky jsou vápenné, štukové, doplněné v sociálních zařízeních a kuchyních běžnými keramickými obklady. Podlahové konstrukce v suterénu jsou z betonové mazaniny upravené nátěrem, v přízemí je na chodbě keramická dlažba, v bytech pak PVC v kombinaci s keramickými dlažbami. Okna jsou osazena plastová, výměna za dřevěná proběhla cca před 13 lety. Dveře v bytech a suterénu jsou zabudovány do ocelových zárubní, dveře jsou hladké a prosklené. Vstupní dveře do objektu byly vyměněny společně s okny, portál je plastový. Elektroinstalace zavedena 230/400V v běžném rozsahu, hromosvod na domě je instalovaný. Rozvody vody teplé a studené provedeny v běžném rozsahu. Ohřev teplé užitkové vody zajištěn v jednotlivých bytech elektrickými boilery. Kanalizace provedena v běžném rozsahu se svedením do ČOV. Vybavení jednotlivých bytů zařizovacími předměty je ve standardním provedení - umývadla, vany, sprchový kout, běžné WC combi. Kuchyně jsou vybaveny elektrickými sporáky, kuchyňskými linkami, digestoře jsou osazeny. Na objektu je osazena STA s rozvodem do jednotlivých bytů. V suterénu domu se nacházejí sklepní koje pro jednotlivé byty a společné prostory - prádelna sušárna, kotelna, sklad paliva. V sušárně se nachází starý mandl, který je dlouhodobě mimo provoz. Celkový stav objektu je dobrý, bez viditelných závad, v běžném opotřebení.

Parametry domu

Cena
9 900 000 Kč /za nemovitost Spočítat hypotéku
Aktualizováno
24. 1. 2026
Adresa
Veletov
Stavba
Cihlová
Stav objektu
Dobrý
Užitná plocha
822 m2
Plocha pozemku
1021 m2
Sklep
Parkování

Kontaktovat makléře

Realitní kancelář

Povodí Labe

Víta Nejedlého 951/8, Hradec Králové

Chystáte se prodat nemovitost?
Pomůžeme Vám!

Máte zájem o tento dům?

Tímto, v souladu s nařízením Evropského parlamentu a Rady (EU) 2016/679, v platném znění, prohlašuji, že mi je alespoň 16 let a uděluji tak svůj souhlas se zpracováním zadaných údajů (jméno, telefon, e-mail, ip adresa) společnosti B3 Technology, s.r.o., IČ: 07330600, se sídlem Novostavby 126/23, 435 11 Lom (správce dat), za účelem předání dotazu z tohoto formuláře Vámi vybranému inzerentovi a zpětného kontaktování mé osoby. Osobní údaje bude správce zpracovávat manuálně i automaticky přímo prostřednictvím svých zaměstnanců. Informace předané tímto formulářem budou uloženy v databázi správce maximálně po dobu 10 let. Odvolání souhlasu s uložením a zpracováním poskytnutých dat lze e-mailem na info@vitio.cz. V případě podezření na neoprávněné použití Vámi poskytnutých údajů máte právo předat podnět k šetření Úřadu pro ochranu osobních údajů. Více informací
Chystáte se prodat nemovitost?
Pomůžeme Vám!

Inzerát si prohlédlo 0 lidí

Prodejce

Monika Voňková

Monika Voňková

Hlídací pes

Chcete dostávat emailem podobné nabídky prodeje vícegeneračních domů v Veletově?

Podobné nemovitosti