Prodej pozemku, Bílovice nad Svitavou, 681 m2

Bílovice nad Svitavou

Cena na vyžádání Získejte výhodnou HYPOTÉKU

(včetně provize RK)

Exkluzivní partneři v Bílovicích nad Svitavou

Informace k pozemku

Prodej stavebního pozemku 681 m², Bílovice nad Svitavou

Se souhlasem majitele nabízíme k prodeji atraktivní stavební pozemek na prestižní adrese Bílovice nad Svitavou, okres Brno-venkov. Pozemek o celkové výměře 661 m² , zastavěná plocha 17m² a velkorysé uliční šíři 17 metrů představuje ideální místo pro realizaci moderního bydlení.

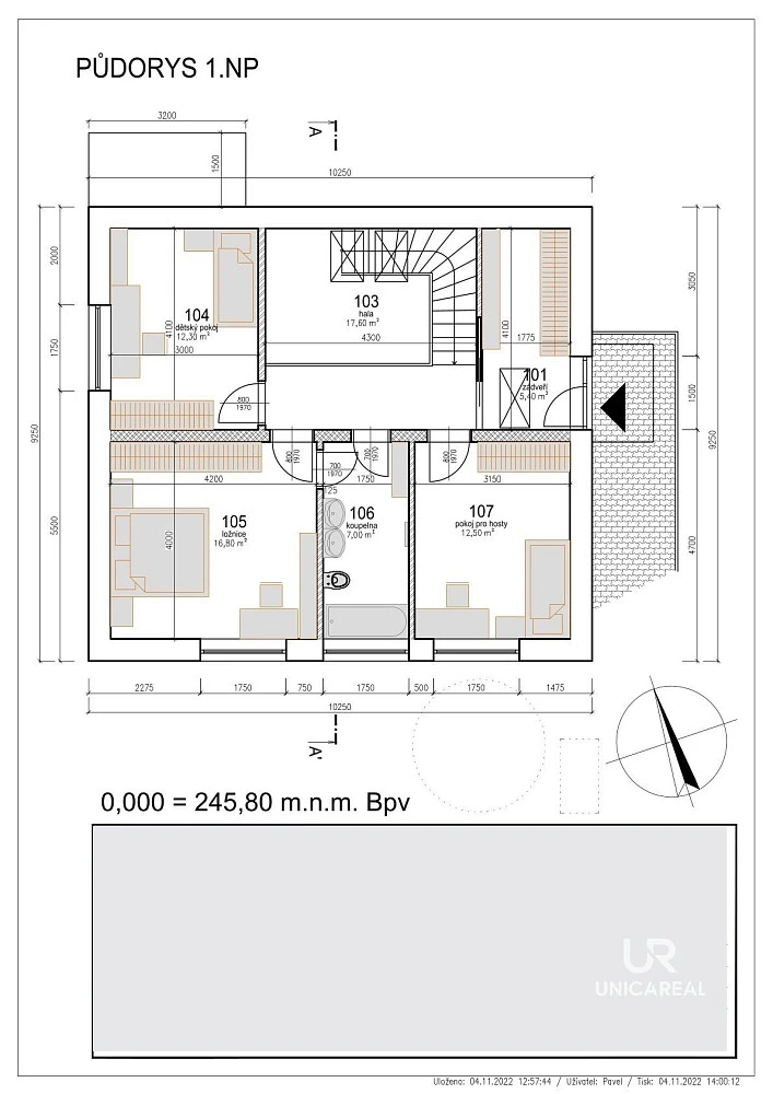
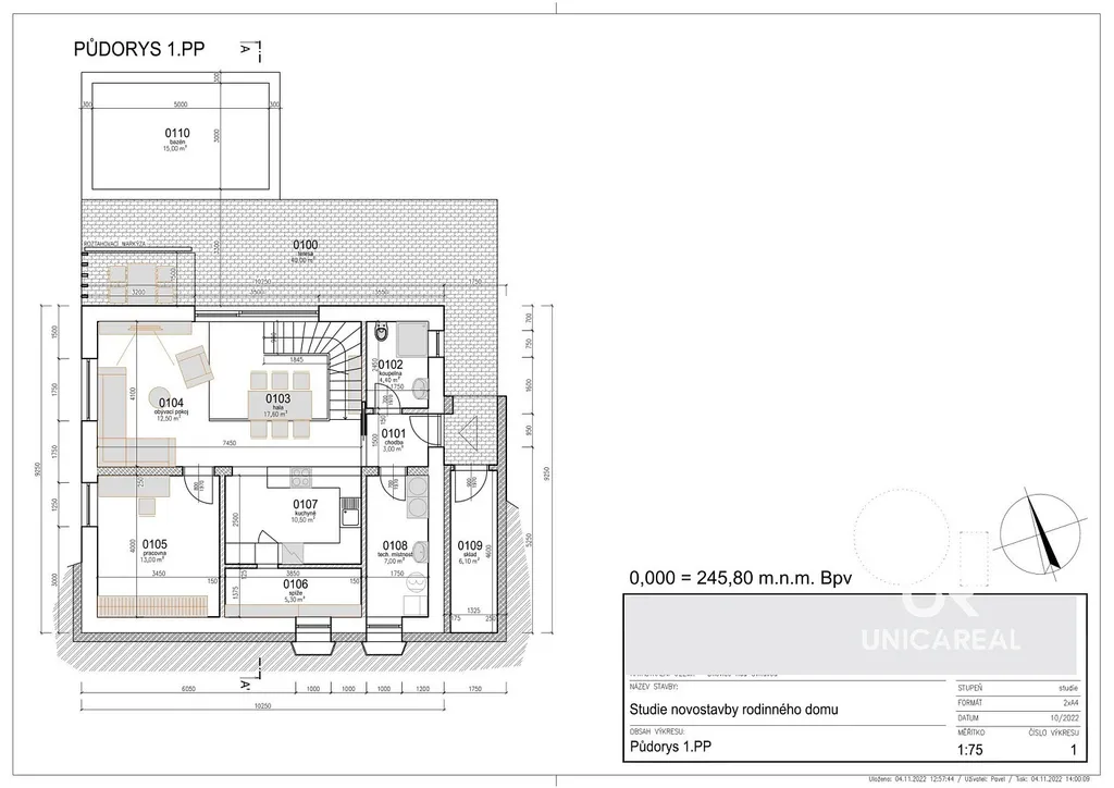
Tato nabídka je unikátní svou připraveností. Součástí prodeje je kompletní projektová dokumentace pro stavbu moderního rodinného domu se sedlovou střechou, který byl navržen tak, aby maximálně využil potenciál svažitého terénu. Dům je koncipován s jedním podzemním a jedním nadzemním podlažím, což umožňuje citlivé zasazení do krajiny a zároveň otevírá prostor pro nádherný panoramatický výhled do okolí.

Veškeré inženýrské sítě jsou přivedeny na hranici pozemku a přístup je zajištěn po obecní asfaltové komunikaci, což zaručuje komfortní dojezd v každém ročním období. Současný stav pozemku doplňují vzrostlé stromy, které vytvářejí jedinečnou atmosféru soukromé zahrady. Na pozemku se nachází garáž 17 m² která vám poslouží jako bezpečné úložiště materiálu a nářadí během stavby.

Bílovice nad Svitavou jsou vyhlášené svou občanskou vybaveností, vyhlášenými cyklostezkami podél řeky a rychlým spojením do Brna (vlakem do centra za 10 minut). Pokud hledáte místo pro klidné bydlení v okolí přírody , tento pozemek v Bílovicích čeká právě na vás.

Parametry pozemku

Cena
Cena na vyžádání Spočítat hypotéku
Poznámka k ceně
včetně provize RK
Aktualizováno
20. 1. 2026
Adresa
Bílovice nad Svitavou
ID
02729
Plocha pozemku
681 m2

Kontaktovat makléře

Máte zájem o tento pozemek?

Tímto, v souladu s nařízením Evropského parlamentu a Rady (EU) 2016/679, v platném znění, prohlašuji, že mi je alespoň 16 let a uděluji tak svůj souhlas se zpracováním zadaných údajů (jméno, telefon, e-mail, ip adresa) společnosti B3 Technology, s.r.o., IČ: 07330600, se sídlem Novostavby 126/23, 435 11 Lom (správce dat), za účelem předání dotazu z tohoto formuláře Vámi vybranému inzerentovi a zpětného kontaktování mé osoby. Osobní údaje bude správce zpracovávat manuálně i automaticky přímo prostřednictvím svých zaměstnanců. Informace předané tímto formulářem budou uloženy v databázi správce maximálně po dobu 10 let. Odvolání souhlasu s uložením a zpracováním poskytnutých dat lze e-mailem na info@vitio.cz. V případě podezření na neoprávněné použití Vámi poskytnutých údajů máte právo předat podnět k šetření Úřadu pro ochranu osobních údajů. Více informací
Chystáte se prodat nemovitost?
Pomůžeme Vám!

Inzerát si prohlédlo 16 lidí

Prodejce

Ivana Slavíčková

Ivana Slavíčková

Hlídací pes

Chcete dostávat emailem podobné nabídky prodeje pozemků v Bílovicích nad Svitavou?