Prodej rodinného domu, Zlatá Olešnice, 130 m2

Zlatá Olešnice

3 300 000 Kč /za nemovitost HYPOTÉKA od 14 749 Kč /za měsíc

(Kupní cena vč. provize RK a právního servisu.)

Exkluzivní partneři v Zlaté Olešnici

Informace k domu

Prodej rodinného domku s pozemkem

Exkluzivní nabídka prodeje rodinného domku v klidné lokalitě obce Zlatá Olešnice, který je jen 7 km od centra okresního města Trutnov. Jedné se o domek se sedlovou střechou a obytným podkrovím. Domek je ve stavu zahájené, ale nedokončené rekonstrukce, aktuálně dispozičně 2 + 1 s příslušenstvím, s možností vestavby nejméně jednoho dalšího pokoje.

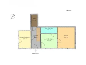
Z prostorného zádveří se vpravo vstupuje do obytné části v prvním nadzemním podlaží, konkrétně do kuchyně o výměře 14 m2, která je vybavena malou kuchyňskou linkou. Z kuchyně vlevo lze vstoupit do společné koupelny s vanou a WC. V této místnosti je také technický koutek s elektrickým bojlerem zajištujícím rozvody teplé vody i do kuchyně a expanzní nádoba pro regulaci centrálního vytápění. Tato místnost má podlahovou plochu o výměře 6 m2. Z kuchyně se také vchází do obytné místnosti o výměře 22,4 m2. V této místnosti jsou krbová kamna, kterými je přes výměník a rozvody do deskových radiátorů zajišťováno vytápění všech obytných místností a také vstupní chodby.

Ze vstupního zádveří přímo lze po dřevěném schodišti vystoupat do druhého nadzemního podlaží, kde je na obývacím pokojem další obytná místnost o výměře necelých 21 m2. Tato místnost má po obou stranách částečně sešikmené stropy. Mezí schodištěm a touto místností je prostor o výměře téměř 35 m2, kde by bylo možné dobudovat nejméně jednu další obývací místnost. Je zde také schodiště na půdu, která je ve středové části vysoká 1,8 metrů. Ze vstupního zádveří vlevo lze projít do zděného přístavku o výměře 13 m2, který sloužil jako skladiště palivového dřeva. Z tohoto přístavku lze také vyjít ven z domu. Ze vstupního zádveří přímo, ale vlevo od schodiště lze dojít do klenbového sklípku o výměře 6,5m2. Tento sklípek je pod zeminou a je tak dobře odizolován pro ideální uskladňování zeleniny a potravin.

V rámci zahájené rekonstrukce byly provedeny nové rozvody elektroinstalace, rozvody teplé vody a rozvody topení. V kuchyni a v koupelně je na podlaze keramická dlažba. V obytné místnosti je plovoucí podlaha. Výška stropů ve všech obývacích místnostech je 2,5 m. Na domku jsou původní dvojitá dřevěná okna. Střešní krytina je eternit, který je původní s potřebou drobných oprav.

Společně s domkem se nabízejí také pozemky o celkové výměře více jak 1500 m2. Část z těchto pozemků je svahovitá, ale ta část pozemků, která je situována na jižní stranu byla prodávajícím srovnána a nabízí dostatečný prostor pro venkovní aktivity a odpočinek. V tomto roce by mělo dojít i vykácení vzrostlých smrků podél příjezdové cesty, což ještě více prosluní tuto část pozemků. Domek je cca 80 m od současné silnice I. třídy, ale vzhledem k tomu, že je odstíněn jinou nemovitostí a také je nejméně 10 m nad touto silnicí, jedná se o klidnou lokalitu bez významnější hlukové zátěže. Po dokončení výstavby dálnice se provoz na této silnici významně sníží.

Domek je na samém okraji obce Zlatá Olešnice, nejbližší autobusové zastávka je přibližně 300 metrů od domu, ale také pouze 2 km od konečné zastávky MHD Trutnov ve městské části Trutnov Libeč, 6,5 km od nákupní domu Lidl a 7 km od centra města Trutnov. Dům je napojen na veřejný vodovod, odpadové vody jsou svedeny do septiku. Lokalita je dobře pokryta signálem mobilních operátorů.

Domek je ideální volbou pro toho, kdo hledá klidné bydlení venkovského typu, ale v blízkosti okresního města s dostupností všech služeb. Pro dokončení rekonstrukce a uzpůsobení si bydlení svým představám a požadavkům se nabízí využití čerpání dotací, které mohou být významným finančním příspěvkem pro budoucí spokojené bydlení.

Právní služby, úschova kupní ceny a další rozsáhlé služby RK Evoluce jsou pro kupujícího zdarma. Jsme připraveni pomoci vám také se zajištěním financování.

Parametry domu

Cena
3 300 000 Kč /za nemovitost Spočítat hypotéku
Poznámka k ceně
Kupní cena vč. provize RK a právního servisu.
Aktualizováno
19. 1. 2026
Adresa
Zlatá Olešnice
ID
OND26156
Stavba
Cihlová
Stav objektu
V rekonstrukci
Vybaveno
Částečně
Typ objektu
Patrový
Druh objektu
Samostatný
Užitná plocha
130 m2
Zastavěná plocha
128 m2
Podlahová plocha
130 m2
Plocha pozemku
1733 m2
Plocha zahrady
1500 m2
Třída energetické náročnosti
G - Mimořádně nehospodárná
Elektřina
230V
Odpad
Septik
Topení
Ústřední tuhá paliva
Komunikace
Zpevněná
Doprava
Silnice, MHD, Autobus
Voda
Vodovod
Topné těleso
Krbová kamna
Zdroj topení
Krbová kamna
Sklep
Bezbarierový přístup
Parkování

Kontaktovat makléře

Máte zájem o tento dům?

Tímto, v souladu s nařízením Evropského parlamentu a Rady (EU) 2016/679, v platném znění, prohlašuji, že mi je alespoň 16 let a uděluji tak svůj souhlas se zpracováním zadaných údajů (jméno, telefon, e-mail, ip adresa) společnosti B3 Technology, s.r.o., IČ: 07330600, se sídlem Novostavby 126/23, 435 11 Lom (správce dat), za účelem předání dotazu z tohoto formuláře Vámi vybranému inzerentovi a zpětného kontaktování mé osoby. Osobní údaje bude správce zpracovávat manuálně i automaticky přímo prostřednictvím svých zaměstnanců. Informace předané tímto formulářem budou uloženy v databázi správce maximálně po dobu 10 let. Odvolání souhlasu s uložením a zpracováním poskytnutých dat lze e-mailem na info@vitio.cz. V případě podezření na neoprávněné použití Vámi poskytnutých údajů máte právo předat podnět k šetření Úřadu pro ochranu osobních údajů. Více informací
Chystáte se prodat nemovitost?
Pomůžeme Vám!

Inzerát si prohlédlo 0 lidí

Prodejce

Dr. Zdeněk  Ondráček

Dr. Zdeněk Ondráček

Hlídací pes

Chcete dostávat emailem podobné nabídky prodeje rodinných domů v Zlaté Olešnici (okr. Trutnov)?

Podobné nemovitosti