Prodej rodinného domu, Chlistov, 426 m2 (ID: 2558118)

Chlistov

1 749 000 Kč /za nemovitost HYPOTÉKA od 7 817 Kč /za měsíc
Exkluzivní partneři v Chlistově

Podlahy

Stěhovací služby

Informace k domu

Představuji Vám k prodeji jedinečnou nemovitost a zároveň INVESTIČNÍ
PŘÍLEŽITOST – rodinný dům s podnikatelským potenciálem v turisticky oblíbeném Chlistově, v okrese Klatovy.

Ucelenou prezentaci domu můžete shlédnout na odkaze, který je součástí video prohlídky.

Podívejte se níže na video prohlídku, fotografie a 3D virtuální prohlídku.

Základní parametry:
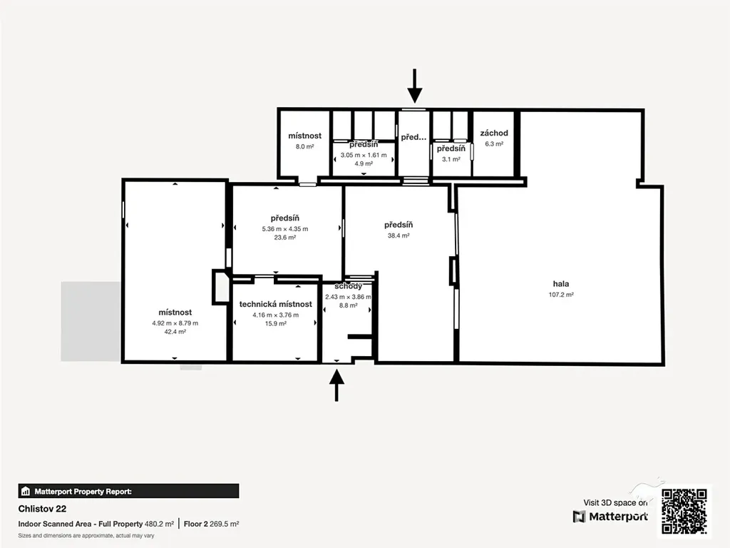
> 1. NP – 254 m² užitné plochy (v minulosti využíváno jako hospoda, sál s pódiem, toalety pro muže/ženy)
> Podkroví – 172 m² (již dva zbudované pokoje, možnost rozšíření)
> Sklep – 28,6 m²
> Pozemek 812 m²
> Napojeno na vodovod a elektřinu (400 V)
> Odpad: nutno řešit ČOV/septik
> Energetický štítek není v tuto chvíli zpracován, proto je uvedena energetická třída G

Možnosti využití:
> Zřízení až 3 samostatných bytových jednotek (návrh půdorysu k dispozici)
> Provozovna, menší výroba nerušící okolí (územní plán umožňuje)
> Kombinace bydlení a podnikání (např. obchod, gastro, služby)

Výhody lokality:
> Centrum obce (obecní úřad, zastávka, moderní hřiště vše v pěší dostupnosti)
> Přírodní koupaliště, rybník, louky a lesy v okolí – turisticky atraktivní oblast
> Dojezd do Klatov cca 10 minut (kompletní občanská vybavenost)
> Oblíbená destinací turistů i chatařů, v lokalitě je kolem 80 chat celoroční návštěvnost

Územní plán určení plochy:
Plochy smíšené obytné – venkovské (SV)
1) Plochy jsou určeny pro bydlení venkovského charakteru spojené s hospodářským využitím pozemků a objektů
2) V plochách je přípustné umísťovat:
    obytné nízkopodlažní objekty
    garáže a další vedlejší objekty pro obsluhu tohoto území
    zařízení občanské vybavenosti a sportu
    veřejná prostranství
    zařízení dopravní a technické infrastruktury pro obsluhu těchto ploch
    pozemky pro individuální rekreaci splňující podmínky § 20, odst. 4 a 5 vyhlášky č. 501/2006 Sb.

Pokud hledáte spojení domova a podnikání v jednom, v obci obklopené přírodou a v dobré dojezdovosti do Klatov, pak mi zavolejte nebo napište, domluvíme si prohlídku.

Pro koupi domu Vám zajistím kompletní realitní a právní servis a v případě potřeby i výhodné financování hypotečním úvěrem.

Uvedené výměry jsou orientační.

Parametry domu

Cena
1 749 000 Kč /za nemovitost Spočítat hypotéku
Aktualizováno
17. 1. 2026
Adresa
Chlistov
ID
250191
Stavba
Cihlová
Stav objektu
Před rekonstrukcí
Vybaveno
Ne
Druh objektu
Samostatný
Užitná plocha
426 m2
Zastavěná plocha
268 m2
Podlahová plocha
426 m2
Plocha pozemku
812 m2
Plocha zahrady
297 m2
Třída energetické náročnosti
G - Mimořádně nehospodárná
Elektřina
230V
Komunikace
Asfaltová
Doprava
Silnice, Autobus
Voda
Vodovod
Topné těleso
Radiátory
Zdroj topení
Kotel na tuhá paliva
Sklep

Kontaktovat makléře

Realitní kancelář

TAURUM reality s.r.o.

Americká 1139/1, Plzeň, Jižní Předměstí

Chystáte se prodat nemovitost?
Pomůžeme Vám!

Máte zájem o tento dům?

Tímto, v souladu s nařízením Evropského parlamentu a Rady (EU) 2016/679, v platném znění, prohlašuji, že mi je alespoň 16 let a uděluji tak svůj souhlas se zpracováním zadaných údajů (jméno, telefon, e-mail, ip adresa) společnosti B3 Technology, s.r.o., IČ: 07330600, se sídlem Novostavby 126/23, 435 11 Lom (správce dat), za účelem předání dotazu z tohoto formuláře Vámi vybranému inzerentovi a zpětného kontaktování mé osoby. Osobní údaje bude správce zpracovávat manuálně i automaticky přímo prostřednictvím svých zaměstnanců. Informace předané tímto formulářem budou uloženy v databázi správce maximálně po dobu 10 let. Odvolání souhlasu s uložením a zpracováním poskytnutých dat lze e-mailem na info@vitio.cz. V případě podezření na neoprávněné použití Vámi poskytnutých údajů máte právo předat podnět k šetření Úřadu pro ochranu osobních údajů. Více informací
Chystáte se prodat nemovitost?
Pomůžeme Vám!

Inzerát si prohlédlo 0 lidí

Prodejce

Jana Krohová

Jana Krohová

Hlídací pes

Chcete dostávat emailem podobné nabídky prodeje rodinných domů v Chlistově (okr. Klatovy)?

Podobné nemovitosti