Soccer reality

Pronájem skladu, Praha - Malešice, 205 m2

Praha, Malešice

53 000 Kč /za měsíc Získejte výhodnou HYPOTÉKU
Exkluzivní partneři v Praze 9

Stěhovací služby

Výkup a prodej starého nábytku

Informace k nemovitosti

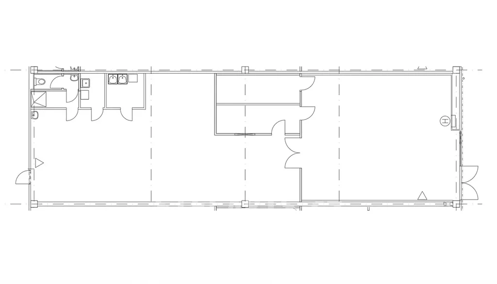
Exkluzivně nabízíme k pronájmu jednotku v zavedeném komerčním areálu v Praze 10 – Malešicích, v bezprostřední blízkosti Jižní a Štěrboholské spojky. Jednotka je vhodná pro výrobní nebo obchodně-skladové využití.

K dispozici celkem 205 m²:

- možnost kombinace showroomu, skladu a kanceláří, případně výroby
- vhodná i pro gastro výrobní provoz
- výška stropu 7 m
- energeticky úsporná (tepelně izolováno)
- plynové vytápění
- střešní světlíky, EPS, EZS, internet
- prosklené výkladce
- bezprašná zátěžová podlaha s nosností 5 t/m²
- veškerá občanská vybavenost v okolí
- plně vybavený areál (ostraha 24/7, kamerový systém, parkovací systém)
- parkovaní přímo před jednotkou
- výborná dostupnost MHD (bus 171, 181, 182, 183, metro A)

- k jednání ihned, volné od 1. 2. 2026
- některé fotografie jsou staršího data. Prostor je aktuálně vyklízen.

Finanční podmínky:
• nájemné: 53 000 Kč / měsíc + DPH
• poplatky za areál: 8 610 Kč / měsíc + DPH
• energie (plyn, voda, elektřina) dle reálné spotřeby

Pro více informací nás neváhejte kontaktovat, rádi zodpovíme Vaše dotazy.

Parametry nemovitosti

Cena
53 000 Kč /za měsíc
Aktualizováno
13. 1. 2026
Adresa
Praha, Malešice
ID
00263
Stavba
Smíšená
Stav objektu
Velmi dobrý
Užitná plocha
205 m2
Třída energetické náročnosti
G - Mimořádně nehospodárná
Plyn
Plynovod
Telekomunikace
Internet
Doprava
Vlak, Dálnice, Silnice, MHD, Autobus
Parkování

Kontaktovat makléře

Máte zájem o tuto nemovistost?

Tímto, v souladu s nařízením Evropského parlamentu a Rady (EU) 2016/679, v platném znění, prohlašuji, že mi je alespoň 16 let a uděluji tak svůj souhlas se zpracováním zadaných údajů (jméno, telefon, e-mail, ip adresa) společnosti B3 Technology, s.r.o., IČ: 07330600, se sídlem Novostavby 126/23, 435 11 Lom (správce dat), za účelem předání dotazu z tohoto formuláře Vámi vybranému inzerentovi a zpětného kontaktování mé osoby. Osobní údaje bude správce zpracovávat manuálně i automaticky přímo prostřednictvím svých zaměstnanců. Informace předané tímto formulářem budou uloženy v databázi správce maximálně po dobu 10 let. Odvolání souhlasu s uložením a zpracováním poskytnutých dat lze e-mailem na info@vitio.cz. V případě podezření na neoprávněné použití Vámi poskytnutých údajů máte právo předat podnět k šetření Úřadu pro ochranu osobních údajů. Více informací
Chystáte se prodat nemovitost?
Pomůžeme Vám!

Inzerát si prohlédlo 0 lidí

Prodejce

Mária Kačeriaková

Mária Kačeriaková

Hlídací pes

Chcete dostávat emailem podobné nabídky pronájmu skladů v Praze 9?

Podobné nemovitosti