Pronájem bytu 3+kk, Praha - Kobylisy, Bořanovická, 50 m2

Bořanovická, Praha, Kobylisy

22 000 Kč /za měsíc Získejte výhodnou HYPOTÉKU
Exkluzivní partneři v Praze 8

Stěhovací služby

Výkup a prodej starého nábytku

Informace k bytu

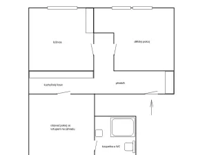
Nabízíme k pronájmu pěkný byt 3+kk ve zvýšeném přízemí cihlového domu v ulici Bořanovická, cca 5 minut chůze od metra Kobylisy. V bytě jsou tři neprůchozí pokoje, dva mají okna do klidné ulice, jeden má vstup na uzavřenou zahradu a samostatný kuchyňský kout, na podlahách je lino a dlažba, koupelna je s velkou rohovou rohovou vanou. Topení a ohřev vody je zajištěn vlastním plynovým kotlem, zařízený je kuchyňskou linkou se sporákem a dvěma skříněmi. Byt je nově vymalován. Výborná lokalita, v okolí je veškerá občanská vybavenost.

Parametry bytu

Cena
22 000 Kč /za měsíc
Náklady na bydlení
služby 800Kč/osoba/měsíc, el. 1000 Kč/měsíc, plyn cca 2000 Kč/měsíc
Aktualizováno
9. 1. 2026
Adresa
Bořanovická, Praha, Kobylisy
Stavba
Cihlová
Stav objektu
Dobrý
Patro
1.
Vlastnictví
Osobní
Užitná plocha
50 m2

Kontaktovat makléře

Realitní kancelář

PROFI-TEN

Vodičkova 682/20, Praha

Chystáte se prodat nemovitost?
Pomůžeme Vám!

Máte zájem o tento byt?

Tímto, v souladu s nařízením Evropského parlamentu a Rady (EU) 2016/679, v platném znění, prohlašuji, že mi je alespoň 16 let a uděluji tak svůj souhlas se zpracováním zadaných údajů (jméno, telefon, e-mail, ip adresa) společnosti B3 Technology, s.r.o., IČ: 07330600, se sídlem Novostavby 126/23, 435 11 Lom (správce dat), za účelem předání dotazu z tohoto formuláře Vámi vybranému inzerentovi a zpětného kontaktování mé osoby. Osobní údaje bude správce zpracovávat manuálně i automaticky přímo prostřednictvím svých zaměstnanců. Informace předané tímto formulářem budou uloženy v databázi správce maximálně po dobu 10 let. Odvolání souhlasu s uložením a zpracováním poskytnutých dat lze e-mailem na info@vitio.cz. V případě podezření na neoprávněné použití Vámi poskytnutých údajů máte právo předat podnět k šetření Úřadu pro ochranu osobních údajů. Více informací
Chystáte se prodat nemovitost?
Pomůžeme Vám!

Inzerát si prohlédlo 1 lidí

Prodejce

František Cakl

František Cakl

Hlídací pes

Chcete dostávat emailem podobné nabídky pronájmu bytů 3+kk v Praze 8?

Podobné nemovitosti