Prodej vícegeneračního domu, Český Těšín, Ropická, 387 m2

Ropická, Český Těšín

10 490 000 Kč /za nemovitost HYPOTÉKA od 46 884 Kč /za měsíc
Exkluzivní partneři v Českém Těšíně

Informace k domu

Rodinný dům se dvěma bytovými jednotkami, samostatné vstupy, terasy, zahrada, garáž a parkování – Dolní Žukov, Český Těšín.

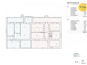
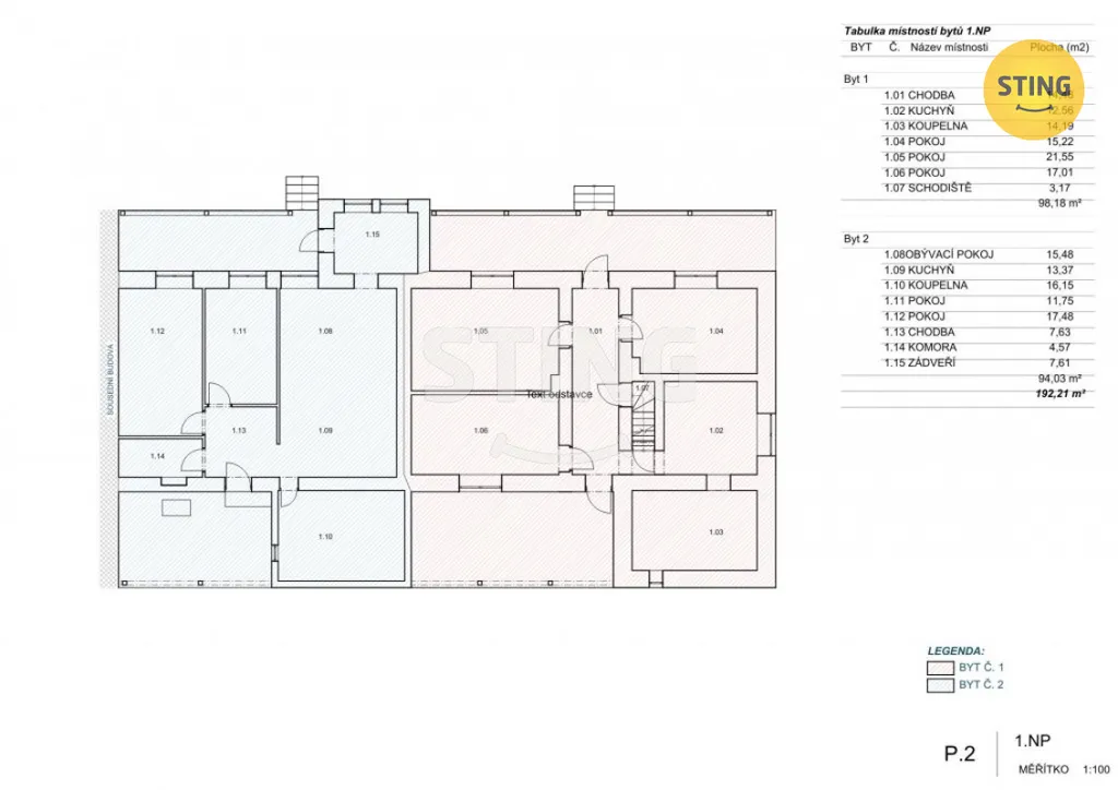
Nabízíme k prodeji rodinný dům o celkové obytné ploše 192 m² se dvěma samostatnými bytovými jednotkami, situovaný v klidné části Dolního Žukova. Dům nabízí výjimečnou kombinaci soukromí, prostoru a flexibility využití – ideální jak pro vícegenerační bydlení, tak jako investice k pronájmu.

V domě se nachází pouze dvě bytové jednotky, každá s vlastním vstupem, což zajišťuje vysoký komfort a nezávislost bydlení. Pozemek o velikosti 1952 m².

Byt 3+1 o užitné ploše 98 m² nabízí dvě zastřešené terasy, půdní prostor, garáž, parkovací stání, velmi prostornou koupelnu a pozemek o výměře 416 m² určený k užívání k této jednotce.

Byt 3+kk o užitné ploše 94,2 m² disponuje dvěma zastřešenými terasami, dvěma vstupy, půdním prostorem, přístřeškem pro dvě vozidla, zahradním domkem a venkovním zázemím před i za domem.

Rodinný dům i obě bytové jednotky prošly kompletní rekonstrukcí v roce 2025, která zahrnovala nové rozvody, podlahy, omítky, modernizaci koupelen, novou fasádu, plastová okna i plechovou střešní krytinu.

Nemovitost nabízí široké možnosti využití – komfortní rodinné bydlení, vícegenerační soužití, kombinaci vlastního bydlení a pronájmu, případně čistě investiční záměr. Lokalita poskytuje klidné prostředí s výbornou dostupností a kompletní občanskou vybaveností v dosahu.

Tento dům je ideální volbou pro klienty, kteří hledají nemovitost s nadstandardním prostorem, soukromím a variabilitou využití, a zároveň chtějí zůstat v rámci města.

Pro více informací nebo domluvení prohlídky mě neváhejte kontaktovat. Do konce února 2026 nabízíme prostřednictvím našeho partnera úrokové sazby od 4,29 % p.a. Více informací Vám sdělí náš specialista na prohlídce.

Parametry domu

Cena
10 490 000 Kč /za nemovitost Spočítat hypotéku
Aktualizováno
16. 2. 2026
Adresa
Ropická, Český Těšín
ID
134268
Stavba
Cihlová
Stav objektu
Velmi dobrý
Typ objektu
Přízemní
Druh objektu
Řadový
Lokalita objektu
Okraj obce
Užitná plocha
387 m2
Zastavěná plocha
257 m2
Podlahová plocha
192 m2
Plocha pozemku
1952 m2
Třída energetické náročnosti
G - Mimořádně nehospodárná
Garáž

Kontaktovat makléře

Máte zájem o tento dům?

Tímto, v souladu s nařízením Evropského parlamentu a Rady (EU) 2016/679, v platném znění, prohlašuji, že mi je alespoň 16 let a uděluji tak svůj souhlas se zpracováním zadaných údajů (jméno, telefon, e-mail, ip adresa) společnosti B3 Technology, s.r.o., IČ: 07330600, se sídlem Novostavby 126/23, 435 11 Lom (správce dat), za účelem předání dotazu z tohoto formuláře Vámi vybranému inzerentovi a zpětného kontaktování mé osoby. Osobní údaje bude správce zpracovávat manuálně i automaticky přímo prostřednictvím svých zaměstnanců. Informace předané tímto formulářem budou uloženy v databázi správce maximálně po dobu 10 let. Odvolání souhlasu s uložením a zpracováním poskytnutých dat lze e-mailem na info@vitio.cz. V případě podezření na neoprávněné použití Vámi poskytnutých údajů máte právo předat podnět k šetření Úřadu pro ochranu osobních údajů. Více informací
Chystáte se prodat nemovitost?
Pomůžeme Vám!

Inzerát si prohlédlo 7 lidí

Prodejce

Monika Gorná

Monika Gorná

Hlídací pes

Chcete dostávat emailem podobné nabídky prodeje vícegeneračních domů v Českém Těšíně?

Podobné nemovitosti