Pronájem bytu 3+kk, Benešov, Křižíkova, 62 m2

Křižíkova, Benešov

15 000 Kč /za měsíc Získejte výhodnou HYPOTÉKU

(+popl. 4213, cena měsíčního pronájmu nezahrnuje poplatky za užívání bytu (vodné, teplo, energie))

Exkluzivní partneři v Benešově

Informace k bytu

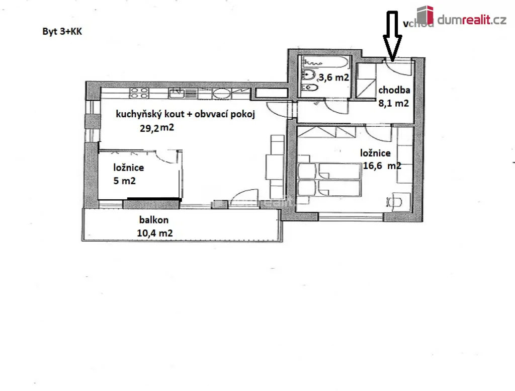
Dumrealit.cz Vám zprostředkuje pronájem bytu 3 + KK, 62 m² +10 m² balkón, v ul. Křižíkova, v Benešově. Bytová jednotka se nachází v cihlovém domě z r. 20210, v 2.NP. Dispozice: ze vstupní chodby je samostatný vstup do ložnice s vestavěnou skříní, koupelny osazené vanou, umyvadlem a WC, dále do obývacího pokoje s kuchyňským koutem se spotřebiči (el. varná deska, el. trouba, digestoř). Z této centrální části bytu je vstup do maličké ložnice a na balkón. Součástí pronájmu je koje (cca 2 m²) a nekryté parkovací stání pro jeden automobil před domem. Měsíční nájemné činí15.000 Kč + 4.213 Kč poplatky. Zálohy na spotřebu elektrické energie si nájemce převede u dodavatele na sebe. Vratná kauce činí 30.000 Kč. Při podpisu nájemní smlouvy je třeba uhradit odměnu RK ve výši jednoho nájemného. Byt bude připravený k pronájmu od 2/2026. Lokalita je klidná, v okolí bytové domy, 10 min. pěší chůze na nádraží BUS, vlak. Benešov poskytuje plnou občanskou vybavenost. Pro více informací, volejte na uvedené telefonní číslo. Ráda Vám byt osobně představím. Ev. číslo: 650275.

Parametry bytu

Cena
15 000 Kč /za měsíc
Poznámka k ceně
+popl. 4213, cena měsíčního pronájmu nezahrnuje poplatky za užívání bytu (vodné, teplo, energie)
Aktualizováno
7. 1. 2026
Adresa
Křižíkova, Benešov
ID
650889
Stavba
Cihlová
Stav objektu
Dobrý
Patro
2. z 3
Vlastnictví
Osobní
Užitná plocha
62 m2
Podlahová plocha
62 m2
Třída energetické náročnosti
E - Nehospodárná
Ukazatel energetické náročnosti
109 kWh/m2 za rok
Topení
Ústřední dálkové
Balkon
Sklep

Kontaktovat makléře

Máte zájem o tento byt?

Tímto, v souladu s nařízením Evropského parlamentu a Rady (EU) 2016/679, v platném znění, prohlašuji, že mi je alespoň 16 let a uděluji tak svůj souhlas se zpracováním zadaných údajů (jméno, telefon, e-mail, ip adresa) společnosti B3 Technology, s.r.o., IČ: 07330600, se sídlem Novostavby 126/23, 435 11 Lom (správce dat), za účelem předání dotazu z tohoto formuláře Vámi vybranému inzerentovi a zpětného kontaktování mé osoby. Osobní údaje bude správce zpracovávat manuálně i automaticky přímo prostřednictvím svých zaměstnanců. Informace předané tímto formulářem budou uloženy v databázi správce maximálně po dobu 10 let. Odvolání souhlasu s uložením a zpracováním poskytnutých dat lze e-mailem na info@vitio.cz. V případě podezření na neoprávněné použití Vámi poskytnutých údajů máte právo předat podnět k šetření Úřadu pro ochranu osobních údajů. Více informací
Chystáte se prodat nemovitost?
Pomůžeme Vám!

Inzerát si prohlédlo 1 lidí

Prodejce

Martina Kavková, MBA

Martina Kavková, MBA

Hlídací pes

Chcete dostávat emailem podobné nabídky pronájmu bytů 3+kk v Benešově?

Podobné nemovitosti