Pronájem bytu 3+kk, Praha - Vinohrady, Balbínova, 126 m2 (ID: 2547001)

Balbínova, Praha, Vinohrady

52 900 Kč /za měsíc Získejte výhodnou HYPOTÉKU

(Poplatky za služby a energie se hradí zvlášť.)

Exkluzivní partneři v Praze 2

Stěhovací služby

Výkup a prodej starého nábytku

Informace k bytu

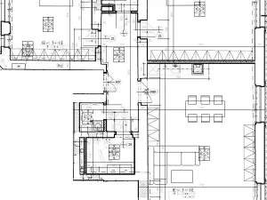
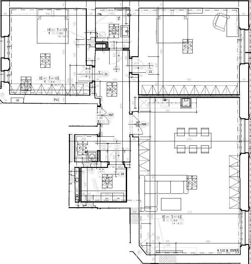
Reprezentativní prostorný zrekonstruovaný, byt 3+kk (2 ložnice, 2 koupelny), o celkové obytné ploše 125,89 m2, je situován ve 4. patře reprezentativního rezidenčního domu s výtahem, v oblíbené historické lokalitě Vinohrady na Praze 2, ulice Balbínova.

Interiér bytu je zařízený. Byt dispozičně nabízí vstupní chodbu (11,7m2), prostorný obývací pokoj (52,12m2) s moderním kuchyňským koutem vybaveným vestavěnými spotřebiči (lednice, mrazák, elektrická varná deska, trouba, digestoř, myčka), dvě samostatné ložnice (28,73m2 a 22m2), dvě stylové koupelny (jedna (5,12m2) s vanou, dvěma umyvadly a toaletou, druhá (4,17m2) se sprchovým koutem, umyvadlem a toaletou), a technickou místnost s pračkou a sušičkou. K bytu náleží sklep.

Příjemné bydlení v pěší docházce do centra Prahy s veškerou občanskou vybaveností. Dům se nachází poblíž Riegrových sadů, v okolí jsou restaurace, kavárny, obchody, MHD. Tramvajová zastávka Italská je jen 3 minuty chůzi od domu, stanice metra Muzeum (linka A/C) cca 5 minut chůze.

Možnost pronájmu parkovacího stání v garáží za poplatek v blízkém okolí, dle volné kapacity.
Zálohové poplatky za služby a energie (včetně topení) spojené s užíváním bytu činí 6.000, Kč/měsíčně. Elektřinu za byt hradí nájemce přímo dodavateli. Vratná kauce 2 platby nájmů včetně poplatků. Provize RK 1 nájem + 21ĎPH.

Parametry bytu

Cena
52 900 Kč /za měsíc
Poznámka k ceně
Poplatky za služby a energie se hradí zvlášť.
Aktualizováno
8. 1. 2026
Adresa
Balbínova, Praha, Vinohrady
ID
971748
Stavba
Cihlová
Stav objektu
Velmi dobrý
Patro
5.
Vybaveno
Ano
Vlastnictví
Osobní
Užitná plocha
126 m2
Podlahová plocha
125 m2
Třída energetické náročnosti
G - Mimořádně nehospodárná
Elektřina
230V
Plyn
Plynovod
Telekomunikace
Telefon
Doprava
Vlak, Silnice, MHD, Autobus
Voda
Vodovod
Garáž
Sklep
Výtah

Kontaktovat makléře

Máte zájem o tento byt?

Tímto, v souladu s nařízením Evropského parlamentu a Rady (EU) 2016/679, v platném znění, prohlašuji, že mi je alespoň 16 let a uděluji tak svůj souhlas se zpracováním zadaných údajů (jméno, telefon, e-mail, ip adresa) společnosti B3 Technology, s.r.o., IČ: 07330600, se sídlem Novostavby 126/23, 435 11 Lom (správce dat), za účelem předání dotazu z tohoto formuláře Vámi vybranému inzerentovi a zpětného kontaktování mé osoby. Osobní údaje bude správce zpracovávat manuálně i automaticky přímo prostřednictvím svých zaměstnanců. Informace předané tímto formulářem budou uloženy v databázi správce maximálně po dobu 10 let. Odvolání souhlasu s uložením a zpracováním poskytnutých dat lze e-mailem na info@vitio.cz. V případě podezření na neoprávněné použití Vámi poskytnutých údajů máte právo předat podnět k šetření Úřadu pro ochranu osobních údajů. Více informací
Chystáte se prodat nemovitost?
Pomůžeme Vám!

Inzerát si prohlédlo 1 lidí

Prodejce

Eva Cinculová

Eva Cinculová

Hlídací pes

Chcete dostávat emailem podobné nabídky pronájmu bytů 3+kk v Praze 2?

Podobné nemovitosti