Pronájem bytu 3+1, Praha - Nové Město, Na Poříčí, 92 m2 (ID: 2544979)

Na Poříčí, Praha, Nové Město

Rezervováno
34 000 Kč /za měsíc Získejte výhodnou HYPOTÉKU

(+ poplatky na osobu/měsíc: 1750 Kč + převod na nájemce: elektřina + plyn + internet)

Exkluzivní partneři v Praze 1

Stěhovací služby

Výkup a prodej starého nábytku

Informace k bytu

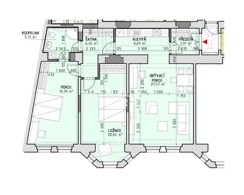
Prostorný byt 3+1 k pronájmu se nachází ve 3. nadzemním podlaží nově zrekonstruované rezidenční budovy s výtahem a moderním čipovým přístupovým systémem, přímo v atraktivní lokalitě Praha 1 – Nové Město. Budova nabízí vysoký standard bydlení a lokalita zajišťuje veškerou občanskou vybavenost a skvělou dopravní dostupnost, díky čemuž se jedná o ideální místo pro komfortní a pohodlný život v centru města.


Byt se skládá ze vstupní chodby, samostatné kuchyně, obývacího pokoje, 2 ložnic a koupelna se sprchou.


Byt je nezařízený a nabízí prostorné vestavěné skříně a plně vybavený kuchyňský kout s lednicí, mrazákem, troubou, varnou deskou, mikrovlnkou a myčkou. Podlahy tvoří parkety a dlažba a koupelna je vybavena sprchovým koutem.


Zrekonstruovaná rezidenční budova se nachází na prestižní adrese Na Poříčí v atraktivní části Prahy 1 – Nové Město. Lokalita Nového Města je známá svou nezaměnitelnou atmosférou a nabízí pohodlné bydlení v samotném centru města. Stanice metra B – Náměstí Republiky i tramvajové zastávky jsou vzdáleny jen pár kroků. Obchodní centrum Palladium je dostupné do 1 minuty pěšky. Z Hlavního nádraží (cca 10 minut) je zajištěno přímé spojení na letiště Václava Havla. V ulici Na Poříčí a jejím okolí se nachází množství obchodů, restaurací, kaváren i veškerá občanská vybavenost.



Výše měsíčních poplatků činí 1.750 Kč na osobu + převod elektřiny a plynu. 


Poptávající klient je srozuměn s úhradou provize ve výši 1 měsíčního nájmu plus DPH.


Nabízíme Vám videoprohlídku této nemovitosti z pohodlí Vašeho domova v reálném čase přes Messenger, WhatsApp a další komunikační platformy.

Parametry bytu

Stav
Rezervováno
Cena
34 000 Kč /za měsíc
Poznámka k ceně
+ poplatky na osobu/měsíc: 1750 Kč + převod na nájemce: elektřina + plyn + internet
Aktualizováno
16. 4. 2026
Adresa
Na Poříčí, Praha, Nové Město
ID
522938
Stavba
Cihlová
Stav objektu
Velmi dobrý
Patro
3. z 5
Vybaveno
Ne
Vlastnictví
Osobní
Užitná plocha
92 m2
Třída energetické náročnosti
G - Mimořádně nehospodárná
Výtah
Převod do OV

Kontaktovat makléře

Máte zájem o tento byt?

Tímto, v souladu s nařízením Evropského parlamentu a Rady (EU) 2016/679, v platném znění, prohlašuji, že mi je alespoň 16 let a uděluji tak svůj souhlas se zpracováním zadaných údajů (jméno, telefon, e-mail, ip adresa) společnosti B3 Technology, s.r.o., IČ: 07330600, se sídlem Novostavby 126/23, 435 11 Lom (správce dat), za účelem předání dotazu z tohoto formuláře Vámi vybranému inzerentovi a zpětného kontaktování mé osoby. Osobní údaje bude správce zpracovávat manuálně i automaticky přímo prostřednictvím svých zaměstnanců. Informace předané tímto formulářem budou uloženy v databázi správce maximálně po dobu 10 let. Odvolání souhlasu s uložením a zpracováním poskytnutých dat lze e-mailem na info@vitio.cz. V případě podezření na neoprávněné použití Vámi poskytnutých údajů máte právo předat podnět k šetření Úřadu pro ochranu osobních údajů. Více informací
Chystáte se prodat nemovitost?
Pomůžeme Vám!

Inzerát si prohlédlo 8 lidí

Prodejce

Adéla Bukovská - recepce

Adéla Bukovská - recepce

Hlídací pes

Chcete dostávat emailem podobné nabídky pronájmu bytů 3+1 v Praze 1?

Podobné nemovitosti