Pronájem bytu 4+kk, Praha - Ruzyně, Dědinská, 90 m2

Dědinská, Praha, Ruzyně

29 000 Kč /za měsíc Získejte výhodnou HYPOTÉKU

(+ poplatky)

Exkluzivní partneři v Praze 6

Stěhovací služby

Výkup a prodej starého nábytku

Informace k bytu

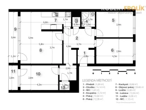
Hledáte prostorný byt pro Vaší rodinu, kde každý člen domácnosti bude mít svůj koutek? To by se Vám mohl líbit tento byt 4+kk se dvěmi lodžiemi! Najdete ho ve 3. patře panelového domu bez výtahu, v ulici Dědinská, v Praze 6 - Ruzyni, jen kousek od konečné stanice tram.

Byt o výměře cca 90 m2 (+ lodžie cca 6 a 3 m2) Vám nabídne velkou vstupní halu, ze které jsou přístupné všechny ostatní místnosti, obývací pokoj s jídelnou, kuchyňský kout, 3 samostatné pokoje, koupelnu se sprchovým koutem, 2 samostatné WC a 2 lodžie.

Je kompletně zařízený a připravený k pronájmu, takže se můžete ihned nastěhovat. A bydlet se Vám tu bude určitě dobře! Nebudete mít žádné sousedy nad hlavou, sousední byt sdílí s tímto bytem jen jednu zeď, ulice není rušná, takže si tu určitě užijete klid a pohodu.

Kromě nájemného budete platit zálohy na všechny energie a služby v částce 7.000 Kč/měs.. Poplatky se nepřevádějí na nájemce, majitel je 1x ročně vyúčtuje dle skutečných spotřeb. Jistota je jedno nájemné + poplatky, provize jedno nájemné.

Byt je připravený k nastěhování.
PENB třída D.

Parametry bytu

Cena
29 000 Kč /za měsíc
Poznámka k ceně
+ poplatky
Náklady na bydlení
7 000
Aktualizováno
29. 12. 2025
Adresa
Dědinská, Praha, Ruzyně
ID
RF 0568
Stavba
Panelová
Stav objektu
Dobrý
Patro
4. z 4
Vybaveno
Ano
Lokalita objektu
Klidná část obce
Vlastnictví
Osobní
Užitná plocha
90 m2
Podlahová plocha
99 m2
Třída energetické náročnosti
D - Méně úsporná
Ukazatel energetické náročnosti
158 kWh/m2 za rok
Elektřina
230V
Plyn
Plynovod
Odpad
Veřejná kanalizace
Komunikace
Asfaltová
Telekomunikace
Telefon, Internet, Kabelová televize, Kabelové rozvody
Doprava
Vlak, Silnice, MHD
Voda
Vodovod
Topné těleso
Radiátory
Zdroj topení
Ústřední dálkové
Lodžie

Kontaktovat makléře

Máte zájem o tento byt?

Tímto, v souladu s nařízením Evropského parlamentu a Rady (EU) 2016/679, v platném znění, prohlašuji, že mi je alespoň 16 let a uděluji tak svůj souhlas se zpracováním zadaných údajů (jméno, telefon, e-mail, ip adresa) společnosti B3 Technology, s.r.o., IČ: 07330600, se sídlem Novostavby 126/23, 435 11 Lom (správce dat), za účelem předání dotazu z tohoto formuláře Vámi vybranému inzerentovi a zpětného kontaktování mé osoby. Osobní údaje bude správce zpracovávat manuálně i automaticky přímo prostřednictvím svých zaměstnanců. Informace předané tímto formulářem budou uloženy v databázi správce maximálně po dobu 10 let. Odvolání souhlasu s uložením a zpracováním poskytnutých dat lze e-mailem na info@vitio.cz. V případě podezření na neoprávněné použití Vámi poskytnutých údajů máte právo předat podnět k šetření Úřadu pro ochranu osobních údajů. Více informací
Chystáte se prodat nemovitost?
Pomůžeme Vám!

Inzerát si prohlédlo 0 lidí

Prodejce

Robert Frolík

Robert Frolík

Hlídací pes

Chcete dostávat emailem podobné nabídky pronájmu bytů 4+kk v Praze 6?

Podobné nemovitosti